Новости компании
Выполнен проект электрики для дома 171 м.кв.
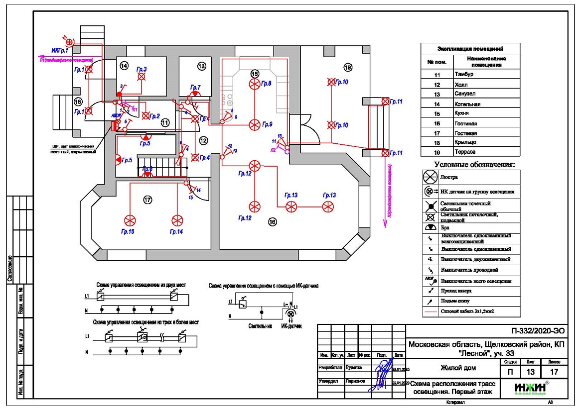
Выполнен проект электрики (электропроводки) для кирпичного дома площадью 171 кв.м., расположенного в КП "Лесной" Московской области.
Проект электрики дома в КП "Лесной" содержит следующие технические решения:
- Выполнен расчет схемы электроснабжения, электрическая мощность дома составила 15,88 кВт, с учетом коэффициента спроса 0,8, принятого согласно СП 256.1325800.2016;
- Автоматические выключатели (УЗО) в количестве 28 шт., которые размещены в распределительном щите ABB;
- Электропроводка предусмотрена скрытым способом в конструкции пола и стен дома;
- Общая протяженность скрытой электропроводки 740 метров;
- Резервное электропитание не предусмотрено.
Цена проекта электрики – 14 261 руб. со скидкой 10%, объем проекта – 17 листов.
Подробное описание выполненного проекта электрики кирпичного дома в КП "Лесной".

Заказать проект электрики дома дистанционно.
30 марта 2020 года
- Информация о материале
- Просмотров: 2475














