Предлагаем проекты электрики для частных домов по современным технологиям
Что включает в себя проект электрики?
Пояснительная записка.
Сведения о строении, общих технических решениях и результатах расчетов.Однолинейные схемы
Расчетные схемы электрической распределительной сети.Планы силовых электрических сетей
Поэтажные планы с указанием электрических розеток и кабельных линий.Планы групповых осветительных сетей
Поэтажные планы с указанием элементов освещения, выключателей и кабельных линий.Чертежи слаботочных линий
Поэтажные планы дома с указанием линий слаботочных систем (сигнализация, телевидение, Интернет, видеонаблюдение)Заземление и уравнивание потенциалов
Расчет и чертежи системы уравнивания потенциалов и контура заземления.Спецификация оборудования
Содержит перечень основного оборудования, расходные материалы указываются комплектами.Как мы проектируем электрику?
Выясняем потребности Заказчика по вопросам проекта электрики, предоставляем информацию о возможных вариантах и ее стоимости.
Заполняем опросный лист.
Проект электрики частного дома (электроснабжения и освещения), выполняемого нашей компанией - подробно о составе и содержании
Пояснительная записка проекта электрики
Содержит сведения об основных технических решениях, принятых в проекте электрики (электроснабжения и освещения) частного дома.
Общие данные и основные показатели по электроснабжению и освещению.
Указывается объект проектирования электроснабжения (электрики) – жилой дом индивидуальной застройки или таунхаус (секция блокированного жилого дома).
Таблица с основными показателями проекта электрики:
- наименование вводов основного и резервного электроснабжения;
- установленная электрическая мощность, кВт;
- расчетная электрическая мощность, кВт;
- расчетный электрический ток, А.
Основное питание - питание всех потребителей дома подключенных к внешней электрической сети.
Аварийное питание - питание потребителей дома подключенных к аварийному источнику ( дизель-, бензо-, газо- генератору) при отключении основного питания.
Стабилизированное питание - питание потребителей дома подключенных к стабилизатору.
Бесперебойное питание - никогда не отключаемое питание, которое обеспечивает электричеством основные потребители систем жизнеобеспечения дома (инвертор с комплектом аккумуляторных батарей либо источник бесперебойного питания ИБП).
Установленная мощность - суммарная номинальная электрическая мощность всех электрических потребителей установленных на объекте.
Расчетная (выделенная) мощность – максимальное суммарное потребление электроэнергии в любой момент времени с учетом коэффициента спроса (установленная мощность умножается на коэффициенты спроса).
Расчетный ток - ток в электрической цепи при нормальных условиях эксплуатации.
Электроснабжение (электрика) частного дома.
Указывается категория надежности по классификации ПУЭ, источник электропитания, его расположение, количество электрических кабельных вводов и схема распределения водимой электроэнергии (однофазная трехпроводная, трехфазная пятипроводная). Приводится модель и расположение прибора учета электроэнергии (счетчика).
Коэффициент спроса электроснабжения.
Определяется для объекта в соответствии с СП 31-110-2003 и указывается в разделе проекта.
На заметку: подробнее о коэффициенте спроса можно прочесть в статье «Предварительный расчет потребляемой электрической мощности дома. Советы потребителю»
Электрические сети (электропровода).
Указывается тип и марка электрических кабелей, назначение жил по цветам изоляции.
Основные решения по освещению.
Принципы организации электроосвещения (общее, локальное), рекомендации по типу светильников и степени их защиты. Типы используемых электрических кабелей и защитных оболочек.
Основные решения по силовому электрооборудованию.
Указания по использованию распределительных электрических щитов, их обозначения, степень защиты и места расположения в помещениях дома.
Прокладка силовых кабельных линий (электропроводка).
Указываются способы прокладки электропроводки (открыто, скрыто, в конструкции полов, стен), типы защитной оболочки (гофрированная труба ПВХ, металлорукав, кабель-канал) и монтажных (подрозетных) коробок.
Защита от поражения электрическим током.
Перечисляются защитные мероприятия, включая изоляцию кабеля, использование устройств защитного отключения, системы уравнивания потенциалов и заземления.
Указания мо монтажу.
Перечислены основные требования по монтажу электрики (электропроводки) в частном доме, включая маркировку кабелей и распределительных щитов, в том числе:
- электрощитовые помещения, а также ВУ, ВРУ, ГРЩ не допускается располагать под санузлами, ванными комнатами, душевыми, кухнями (кроме кухонь квартир), мойками, моечными и парильными помещениями бань и другими помещениями, связанными с мокрыми технологическими процессами, за исключением случаев, когда приняты специальные меры по надежной гидроизоляции, предотвращающие попадание влаги в помещения, где установлены распределительные устройства;
- трубопроводы (водопровод, отопление) прокладывать через электрощитовые помещения не рекомендуется, трубопроводы (водопровод, отопление), вентиляционные и прочие короба, прокладываемые через электрощитовые помещения, не должны иметь ответвлений в пределах помещения (за исключением ответвления к отопительному прибору самого щитового помещения), а также люков, задвижек, фланцев, вентилей и т.п.;
- прокладка через эти помещения газо- и трубопроводов с горючими жидкостями, канализации и внутренних водостоков не допускается (ПУЭ 7 раздел п.7.1.29);
- выполнение электропроводки в вентиляционных каналах и шахтах запрещается, допускается пересечение этих каналов и шахт одиночными проводами и кабелями, заключенными в стальные трубы (ПУЭ 7 раздел п.2.1.67);
- изолированные провода допускается прокладывать только в трубах, коробах и на изоляторах. Не допускается прокладывать изолированные провода скрыто под штукатуркой, в бетоне, в кирпичной кладке, в пустотах строительных конструкций, а также открыто по поверхности стен и потолков, на лотках, на тросах и других конструкциях;
- электропроводку в помещениях следует выполнять сменяемой: скрыто — в каналах строительных конструкций, замоноличенных трубах; открыто — в электротехнических плинтусах, коробах и т.п. (ПУЭ 7 раздел п.7.1.37);
- в технических этажах, подпольях электропроводку рекомендуется выполнять открыто.
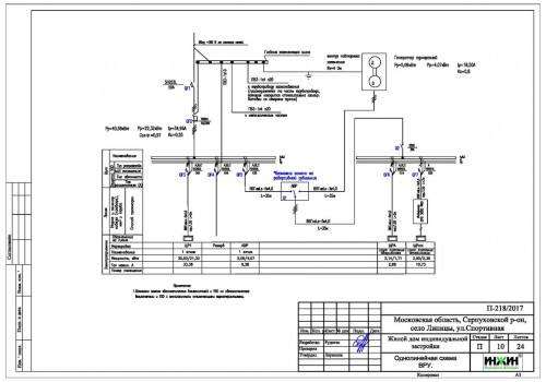
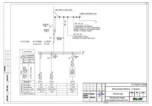
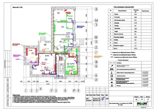
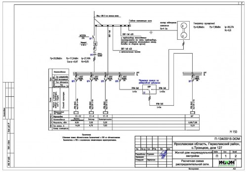
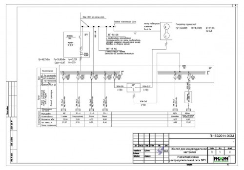
Чертежи основного комплекта однолинейных схем электроснабжения.
Расчетные схемы распределительной сети (однолинейные схемы), включающие; группы питания/освещения, группы аварийного (резервного) питания, их обозначения и нагрузки.
Чертежи основного комплекта проекта электрики
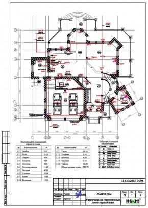
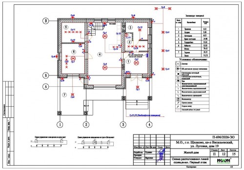
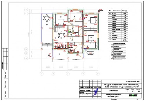
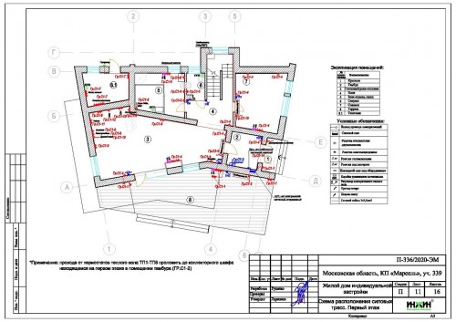
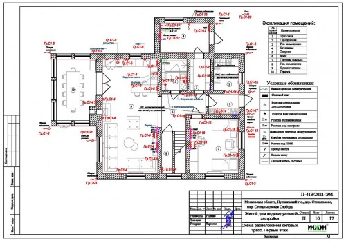
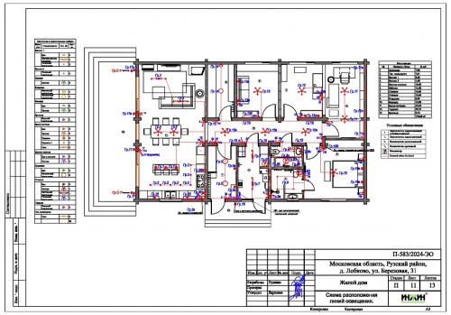
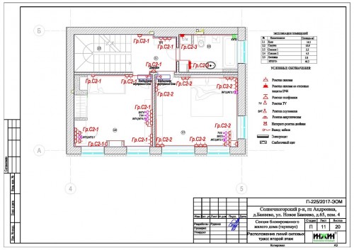
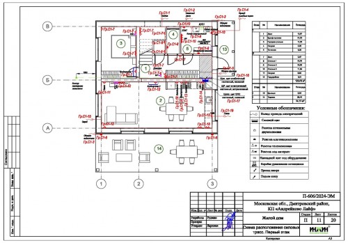
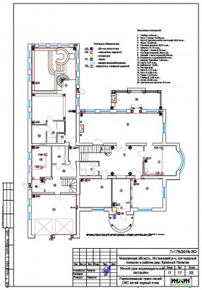
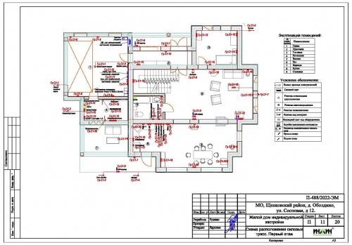
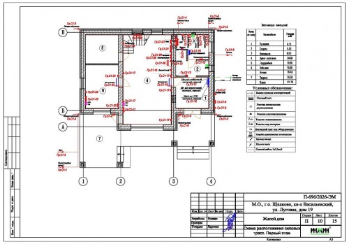
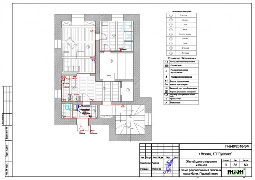
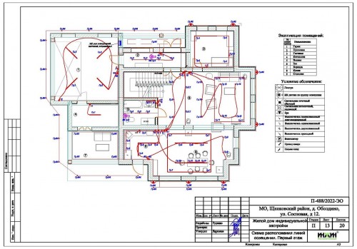
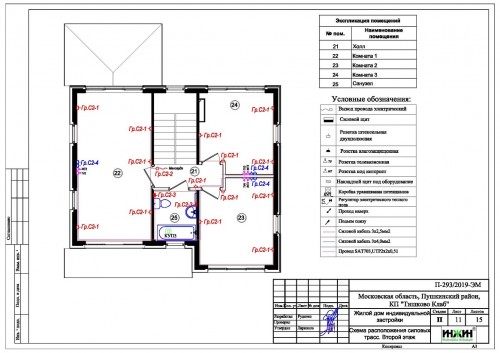
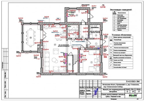
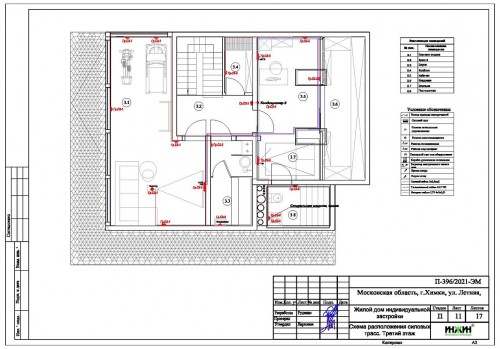
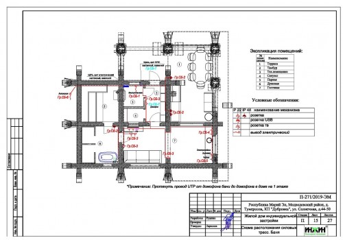
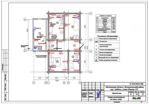
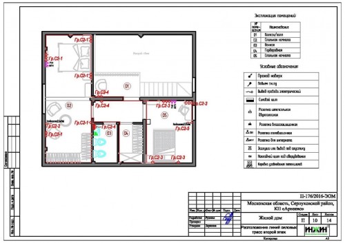
Чертежи силовых линий (электропроводка частного дома).
Содержат:
- изображения кабельных трасс электропроводки для розеточных групп;
- места размещения распределительных электрических щитов;
- изображения мест расположения электрических розеток с обозначением групп;
- указание групп аварийного питания (розеток);
- схему системы уравнивания потенциалов.
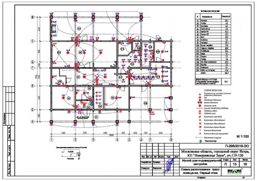
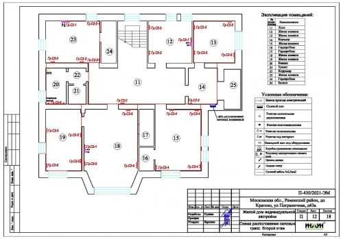
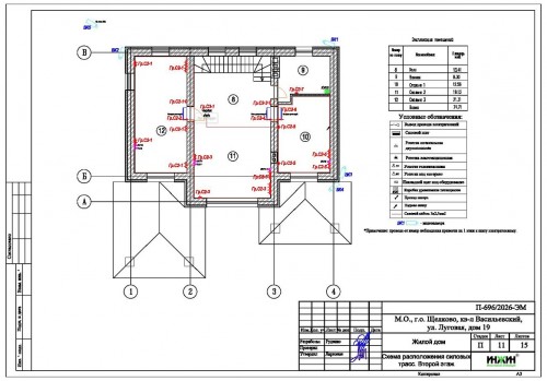
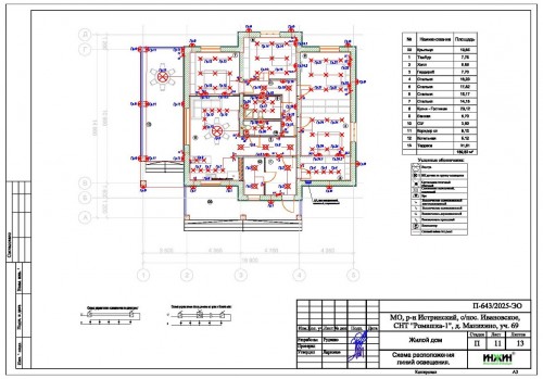
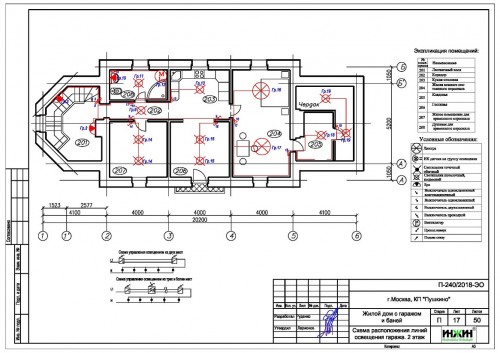
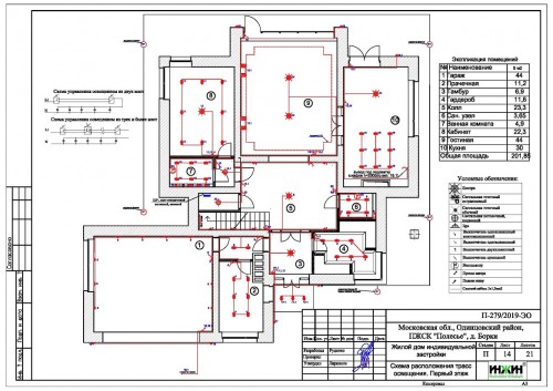
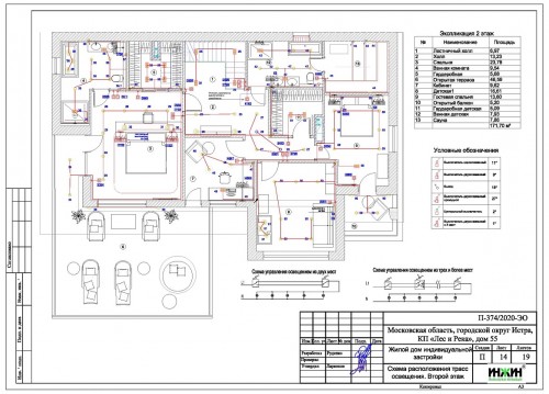
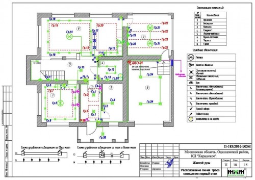
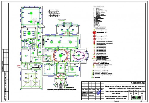
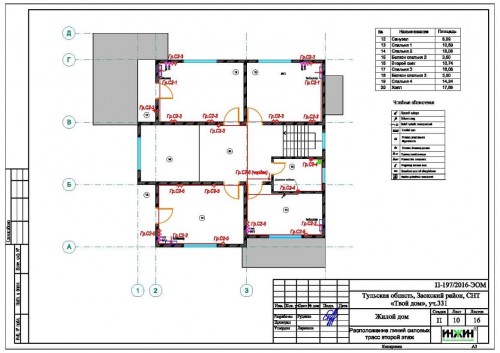
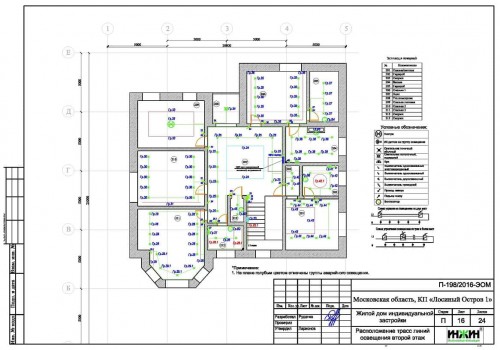
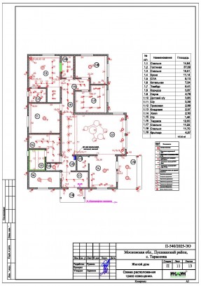
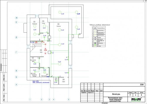
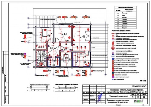
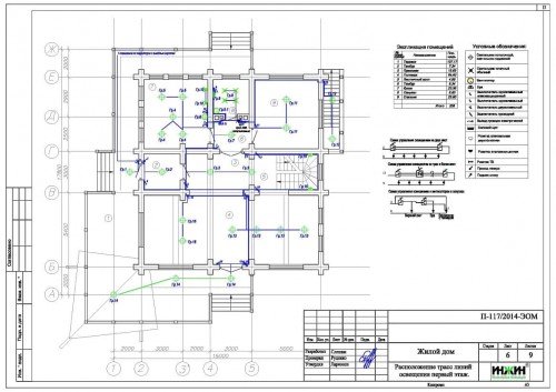
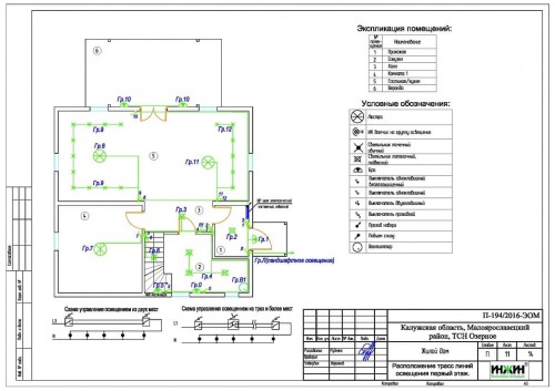
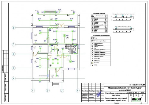
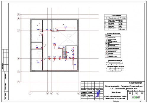
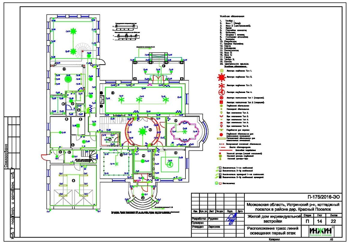
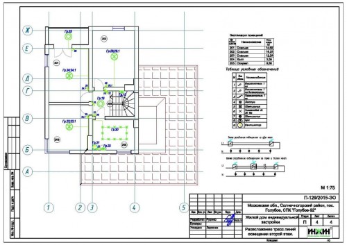
Чертежи линий освещения.
Поэтажные планы, на которых указываются;
- места размещения и типы элементов освещения (настенные, напольные светильники, подсветка);
- места размещения вентиляторов в санузлах;
- кабельные трассы (электропроводка) освещения, способ их прокладки;
- расположение выключателей света, с обозначением групп освещения;
- группы аварийного освещения;
- схемы управления освещением из 2-х и более мест;
- размещение устройств автоматического включения освещения (по датчикам движения и освещения).
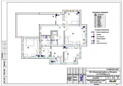
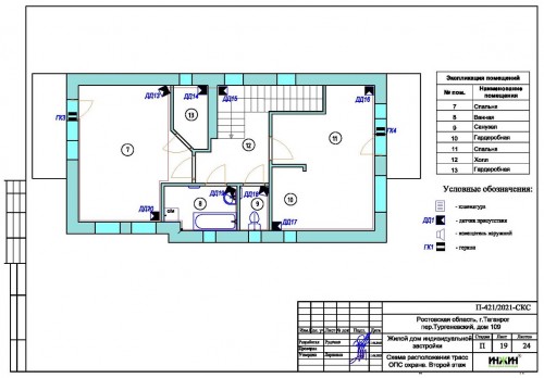
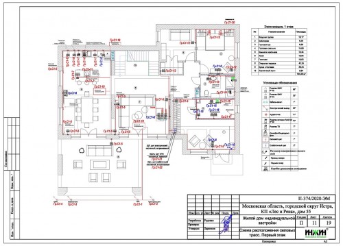
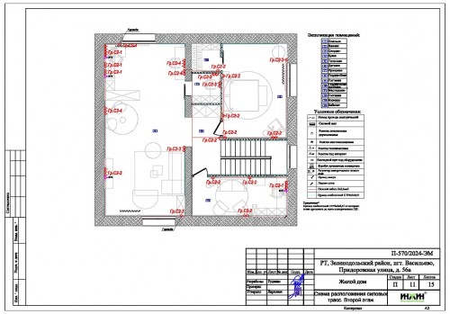
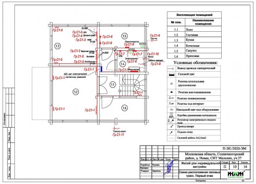
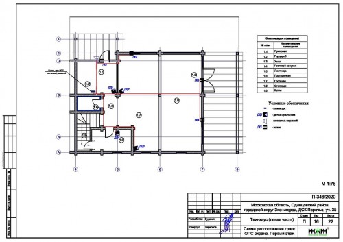
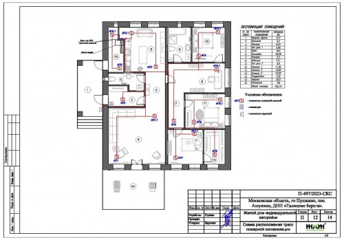
Чертежи слаботочных линий (при наличии).
Поэтажные планы с размещением элементов слаботочных систем:
- кабелей телевизионных, сетевых, сигнальных;
- датчиков и пультов охранно-пожарных сигнализаций;
- камер наружного и внутреннего видеонаблюдения;
- извещателей световых и звуковых.
Схема устройства заземления.
Содержит расчет сопротивления заземления и собственно схему расположения одиночного глубинного вертикального заземлителя (комплект Ezetek).
Спецификация оборудования.
Содержит перечень оборудования и материалов системы электроснабжения с указанием производителя, артикулов и количества, в том числе:
- перечень автоматических выключателей, дифференциальных автоматов и УЗО;
- рубильники, контакторы;
- корпуса электрических щитов;
- кабели электрические и слаботочные;
- защитные гофротрубы, металлорукава и кабель-каналы;
- установочные и распаячные коробки;
- соединительные клеммы;
- комплект заземления;
- расходные материалы указываются комплектами.
Полезные статьи по проекту электрики
Что нужно знать об электрике Вашего дома? Пояснения к опросному листу по проекту электрики.
Предварительный расчет потребляемой электрической мощности дома. Советы потребителю.
Что нужно знать о резервном электроснабжении частного дома? Советы потребителю.
-
Проект электрики дома в ДНТ "Лесная поляна"
03 марта 26
-
Проект электрики дома в Домодедово
11 февраля 26
-
Проект электрики бани из бруса в СНТ «Март»
20 октября 25
-
Проект электрики дома в Воронежской области (130 м.кв.)
02 октября 25
-
Электрика газобетонного дома в Ленинградской области, проект
22 сентября 25
-
Электрика каркасного в дома 140 м.кв., проект
18 августа 25
-
Проект электрики газоблочного дома в СНТ «Кубасово»
15 апреля 26
-
Проект электрики дома в Щёлково (152 м.кв.)
02 апреля 26
-
Проект электрики дома в Калужской области (брус)
23 января 26
-
Проект электрики газоблочного дома 252 м.кв.
26 августа 25
-
Проект электрики дома площадью 301 м.кв.
13 января 26
-
Проект электрики дома 401 м.кв. в Одинцовском г.о.
24 ноября 25
-
Проект электрики газоблочного дома площадью 365 м.кв.
09 сентября 25
-
Электрика газобетонного дома 337 м.кв., проект
15 ноября 24
-
Проект электрики дома в КП "Вешки"
09 июля 24
-
Электрика дома с бассейном (650 м.кв.), проект
14 декабря 23
-
Проект электрики дома в мкр Сходня
05 мая 21
-
Проект электрики частного дома с баней и гаражом
21 ноября 18
-
Проект электроснабжения дома площадью 650 м.кв.
15 января 17
-
Проект электрики дома пример 1206
16 апреля 2026 -
Проект электрики дома пример 1207
16 апреля 2026 -
Проект электрики дома пример 1208
16 апреля 2026 -
Проект электрики дома пример 1209
16 апреля 2026
-
Проект электрики дома пример 994
17 декабря 2024 -
Проект электрики дома пример 1142
13 октября 2025 -
Проект электрики дома пример 668
28 мая 2021 -
Проект электрики дома пример 882
07 ноября 2023
-
Проект электрики частного дома пример 357
18 декабря 2018 -
Проект электрики дома, пример 45
19 января 2016 -
Проект электрики дома пример 1108
27 августа 2025 -
Проект электрики дома пример 960
09 сентября 2024














