Новости компании
Выполнен проект электрики для дома в Новосибирской области
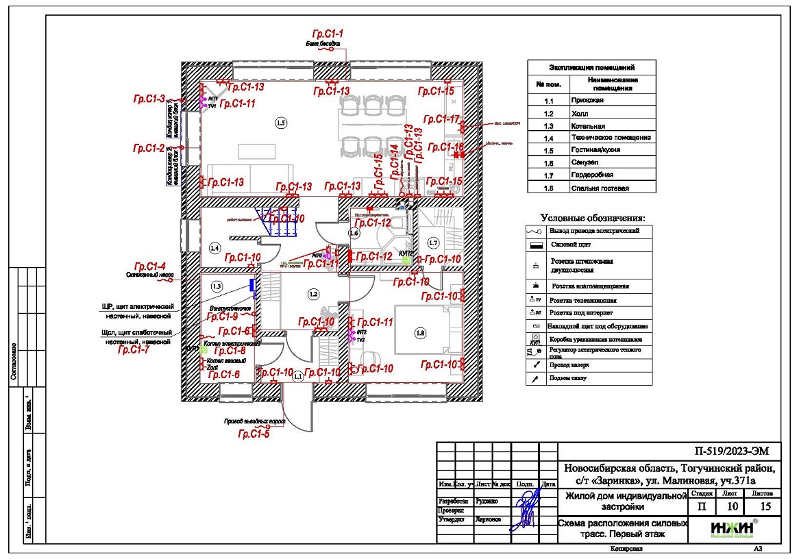
Разработан проект электрики (электропроводки) для дома площадью 148 м.кв., расположенного в с/т «Заринка» Тогучинского района Новосибирской области.
Проект электрики дома в Новосибирской области содержит следующие технические решения:
- Выполнен расчет схемы электроснабжения, электрическая мощность дома составила 15,49 кВт, с учетом коэффициента спроса 0,5, принятого согласно СП 256.1325800.2016;
- Автоматические выключатели (УЗО) в количестве 27 шт., которые размещены в распределительном щите ABB;
- Электропроводка предусмотрена скрытым способом в стенах и полу помещений дома;
- Общая протяженность скрытой электропроводки 920 метров, слаботочных линий - 250 метров.
Цена проекта электрики – 17 716 руб. со скидкой 10%, объем проекта – 15 листов.
Подробное описание выполненного проекта электрики дома в Новосибирской области.
Заказать проект электрики частного дома дистанционно.
23 августа 2023 года
- Информация о материале
- Просмотров: 3730















