Новости компании
Выполнен проект электрики для дома 190 м.кв.
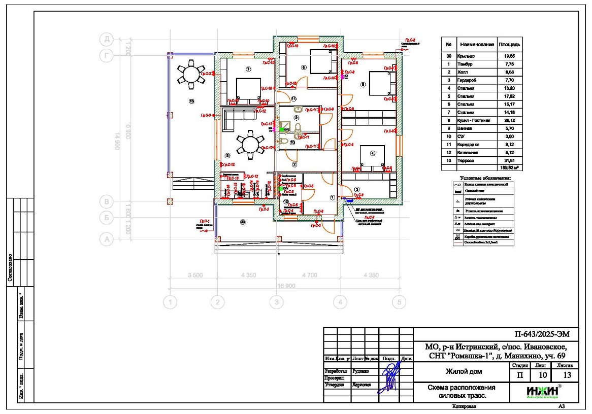
Разработан проект электрики (электропроводки) для газобетонного дома площадью 190м.кв., расположенного в СНТ "Ромашка-1", Истринского района Московской области.
Проект электрики брусового дома в СНТ "Ромашка-1"содержит следующие технические решения:
- Выполнен расчет схемы электроснабжения, электрическая мощность дома составила 14,72 кВт, с учетом коэффициента спроса 0,5, принятого согласно СП 256.1325800.2016;
- Автоматические выключатели (УЗО) в количестве 23 шт., которые размещены в распределительном щите ABB;
- Электропроводка предусмотрена скрытым способом на стенах и стяжке пола;
- Общая протяженность электропроводки 950 метров, слаботочных линий - 100 метров.
Цена проекта электрики – 24 795руб. со скидкой 10%, объем проекта – 13 листов.
Подробное описание выполненного проекта электрики дома в СНТ "Ромашка-1" Московской области.
Заказать проект электрики частного дома дистанционно.
13 мая 2025 года
- Информация о материале
- Просмотров: 4048
Поделиться :















