Новости компании
Проект электрики разработан для дома в КП «Европейский квартал»
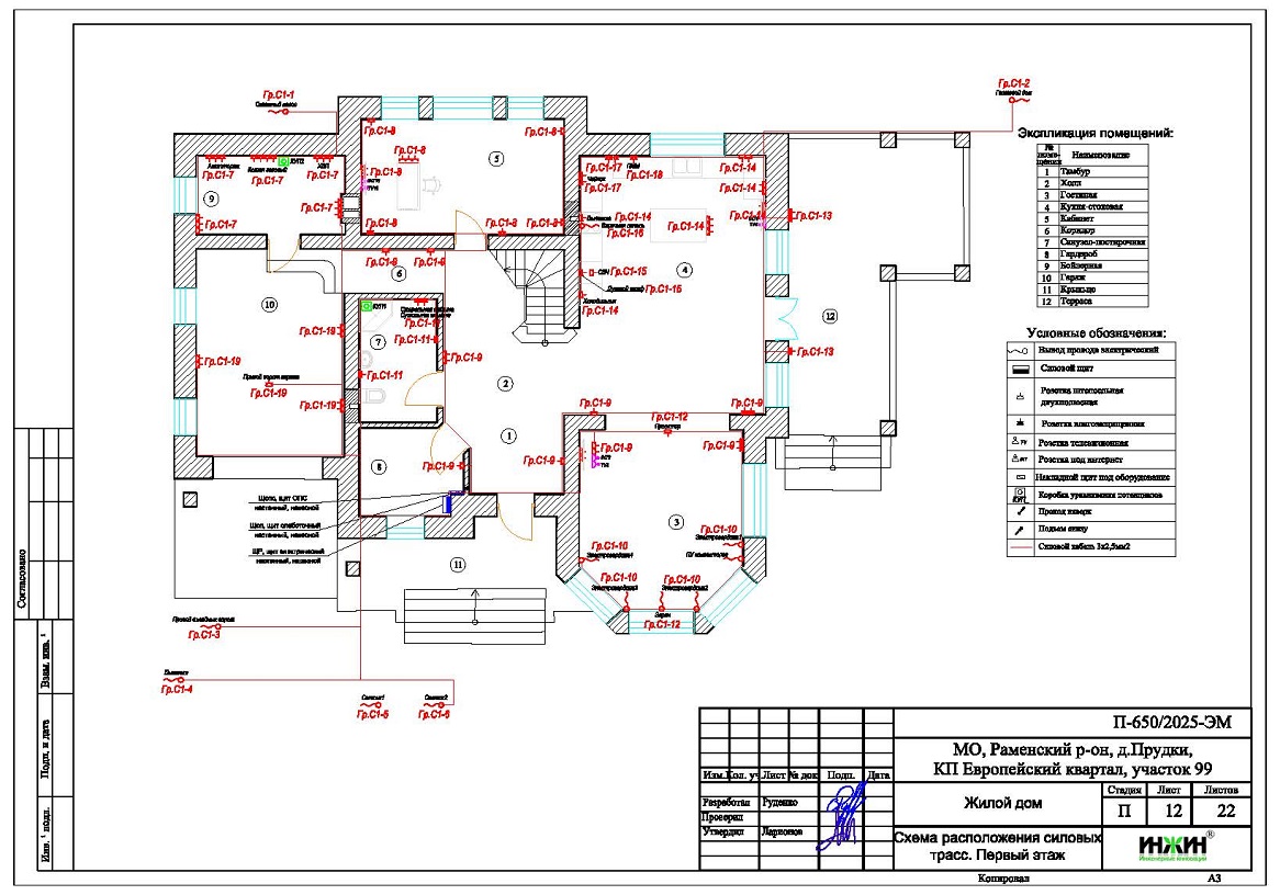
Разработан проект электрики (электропроводки) для газобетонного дома площадью 252м.кв., расположенного в КП «Европейский квартал» Раменского района Московской областисодержит следующие технические решения:
- Выполнен расчет схемы электроснабжения, электрическая мощность дома составила 15,7 кВт, с учетом коэффициента спроса 0,45 принятого согласно СП 256.1325800.2016;
- Автоматические выключатели (УЗО) в количестве 30 шт., которые размещены в двух распределительных щитах ABB;
- Электропроводка предусмотрена скрытым способом на стенах и стяжке пола;
- Общая протяженность электропроводки 1870 метров, слаботочных линий - 500 метров.
Цена проекта электрики – 33 147руб. со скидкой 10%, объем проекта – 22 листа.
Подробное описание выполненного проекта электрики дома в КП «Европейский квартал».
Заказать проект электрики частного дома в КП «Европейский квартал» дистанционно.
26 августа 2025 года
- Информация о материале
- Просмотров: 5042
Поделиться :















