Новости компании
Разработан проект электрики для дома 130 м.кв.
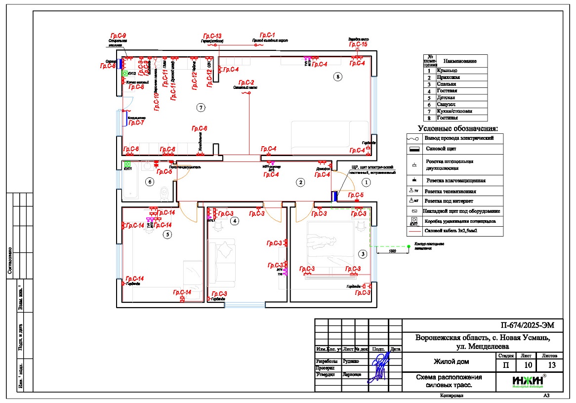
Разработан проект электрики (электропроводки) для газобетонного дома площадью 365м.кв., расположенного в с. Новая Усмань Воронежской области содержит следующие технические решения:
- Выполнен расчет схемы электроснабжения, электрическая мощность дома составила 15,63 кВт, с учетом коэффициента спроса 0,65, принятого согласно СП 256.1325800.2016;
- Автоматические выключатели (УЗО) в количестве 19 шт., которые размещены в одном распределительном щите ABB;
- Электропроводка предусмотрена скрытым способом на стенах и стяжке пола;
- Общая протяженность электропроводки 750 метров, слаботочных линий - 170 метров.
Цена проекта электрики – 16 965руб. со скидкой 10%, объем проекта – 13 листов.
Подробное описание выполненного проекта электрики дома в с. Новая Усмань Воронежской области.
Заказать проект электрики частного дома в Барвихе дистанционно.
03 октября 2025 года
- Информация о материале
- Просмотров: 5140
Поделиться :















