Выполненные проекты
Проект электрики дома с гостевым домом общей площадью 325 м.кв.
Объект: жилой дом с гостевым домом общей площадью 325 кв.м. в Московской области
Стоимость проекта электрики: 35 750 руб., проект резервного питания бесплатно.
Проект электроснабжения и освещения выполнен: 28.05.2014
Состав проекта электрики частного дома:
Пояснительная записка. Общие данные
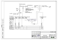
Однолинейные схемы вводного распределительного устройства и распределительных щитов основного и гостевого дома.
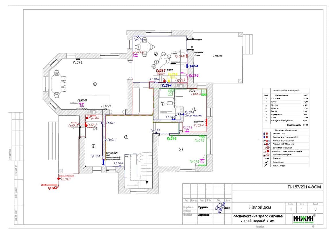
Поэтажные планы силовых электрических сетей основного дома.
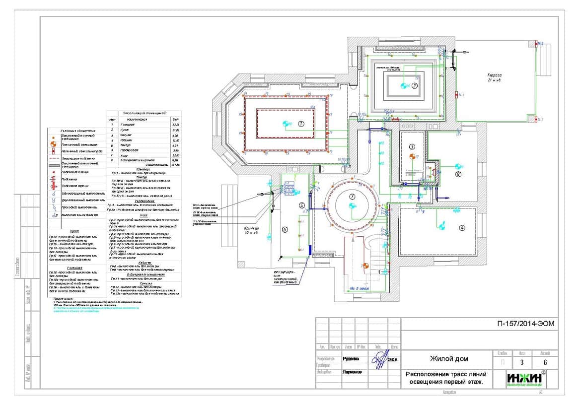
Поэтажные планы групповых осветительных сетей основного дома.
Поэтажные планы силовых электрических сетей гостевого дома.
Поэтажные планы групповых осветительных сетей гостевого дома.
Схема системы уравнивания потенциалов.
Спецификация материалов и оборудования.
Объем проекта: 20 листов.
Основные технические решения проекта электроснабжения и освещения (электрики), в соответствии с заданием Заказчика.
Электрические распределительные щиты.
o Проектом предусмотрено ВРУ и 2 распределительных щита (для каждого строения), оснащенные 41-им автоматом;
o Автоматические выключатели, дифференциальные автоматы и УЗО в щитах - Hager;
o Предусмотрены группы аварийного электропитания с 17-ю автоматами, размещенными в ЩР основного дома;
o Корпус щита - Hager.

Электропроводка - электрическая кабельная сеть.
o Проектом предусмотрено использование кабелей ВВГ нг -LS (Конкорд) с медными жилами в тройной изоляции;
o Общая протяженность линий электроснабжения и освещения – 4 530 метров;
o Прокладка силовых линий предусмотрена скрытым способом, в ПВХ-гофротрубе.
Резервное электропитание.
Проектом предусмотрено аварийное электропитание (бензогенератор), к которому подключены группы дежурного освещения и розеток.
На вводе в здание проектом предусмотрена система уравнивания потенциалов, а также контур повторного заземления.
Заказать проект электрики частного дома в нашей компании.
Для этого дома в КП "Апрелевка Парк" выполнен проект отопления, водоснабжения и канализации.













