Выполненные проекты
Проект электрики дома площадью 210 м.кв. в Нижегородской области
![]() |
![]() |
![]() |
![]() |
![]() |
Объект: загородный дом площадью 210 кв.м. в Нижегородской области
Стоимость проекта электрики: 31 400 руб., включая проект электроснабжения периметра участка.
Проект аварийного и стабилизированного питания бесплатно.
Проект электрики выполнен: 01.08.2014
Состав проекта электрики дома:
Пояснительная записка. Общие данные по электрике дома
Однолинейные схемы вводного распределительного устройства и распределительных щитов.
Поэтажные планы силовых электрических сетей дома.
Поэтажные планы групповых осветительных сетей дома.
Поэтажные планы. Рольставни.
Планы участка с расположением трасс ландшафтного освещения и видеонаблюдения.
Схема системы уравнивания потенциалов.
Схема контура заземления.
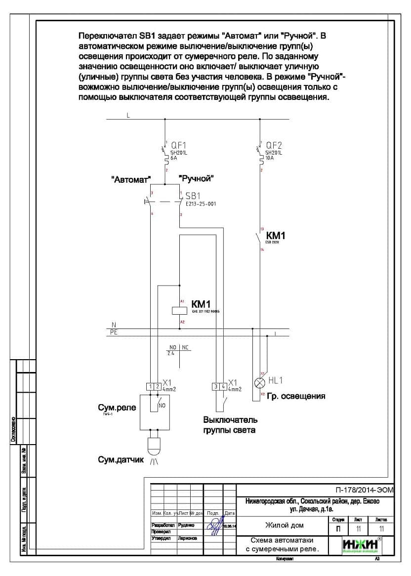
Схемы автоматики с фотореле.
Спецификация материалов и оборудования.
Объем проекта: 25 листов.
Основные технические решения проекта электроснабжения и освещения (электрики), в соответствии с заданием Заказчика.
Электрические щиты.
o Проектом предусмотрено ВРУ и 2 распределительных щита (для каждого этажа), оснащенные 55-ю автоматами и контакторами;
o Автоматические выключатели, дифференциальные автоматы и УЗО в щитах - ABB;
o Предусмотрены группы аварийного электропитания с 12-ю автоматами, размещенными в ЩЭО-1;
o Корпуса щитов - ABB.
Электрическая кабельная сеть (электропроводка).
o Проектом предусмотрено использование кабелей ВВГ нг -LS (Конкорд) с медными жилами в тройной изоляции;
o Общая протяженность линий электроснабжения и освещения – 3 629 метров;
o Прокладка силовых линий предусмотрена скрытым способом, в ПВХ-гофротрубе.


















