Выполненные проекты
Проект электрики загородного дома площадью 165 м.кв. в Звездном Городке
![]() |
![]() |
![]() |
![]() |
![]() |
![]() |
Объект: частный дом площадью 165 кв.м. в пос. Звездный Городок Щелковского района Московской области
Стоимость проекта электрики: 18 150 руб.
Проект электроснабжения и освещения выполнен: 28.11.2014
Состав проекта электрики:
Пояснительная записка. Общие данные по электрике дома.
Однолинейная схема вводного распределительного устройства.
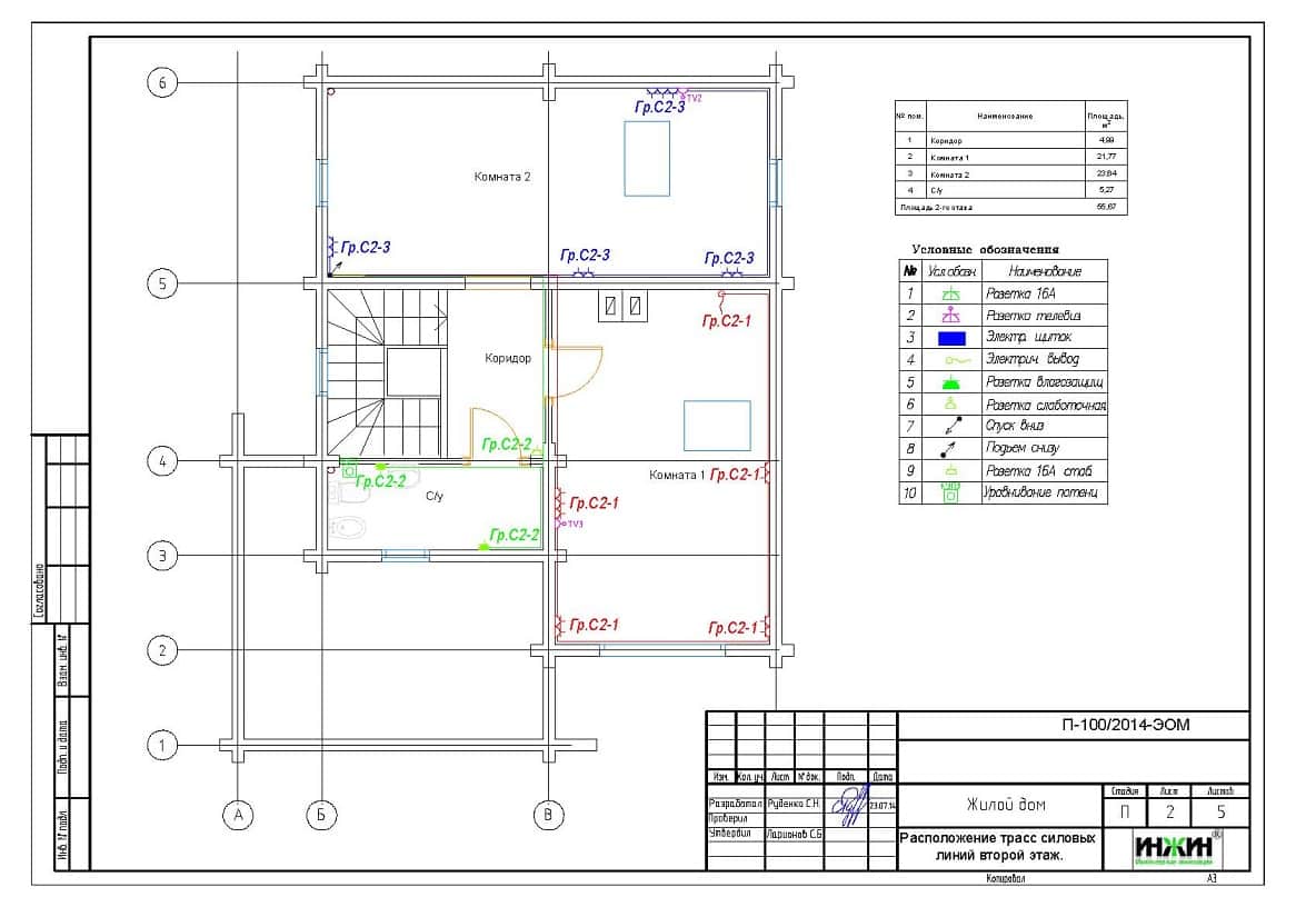
Поэтажные планы силовых электрических сетей.
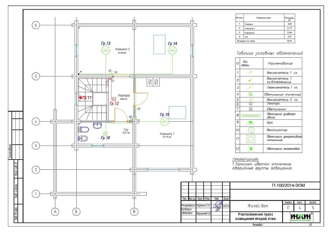
Поэтажные планы групповых осветительных сетей.
Схема системы уравнивания потенциалов.
Спецификация материалов и оборудования.
Объем проекта: 15 листов.
Основные технические решения проекта электроснабжения и освещения (электрики), в соответствии с заданием Заказчика.
Электрические распределительные щиты.
o Проектом предусмотрен 1 электрический щит, оснащенный 35-ю автоматами;
o Автоматические выключатели, дифференциальные автоматы и УЗО в щитах - Hager;
o Корпус щита - Hager.
Электрическая кабельная сеть (электропроводка).
o Проектом предусмотрено использование для электропроводки кабелей ВВГ нг -LS (Конкорд) с медными жилами в ПВХ-оболочке;
o Общая протяженность линий электроснабжения и освещения – 2 650 метров;
o Прокладка силовых линий предусмотрена скрытым способом, в гофротрубе.
На вводе в здание проектом предусмотрена система уравнивания потенциалов.
Предусмотрена система заземления.
Для этого дома выполнен проект отопления, водоснабжения, канализации.



















