Выполненные проекты
Проект комфортной вентиляции Zehnder Comforsystems дома площадью 370 м.кв.
![]() |
![]() |
|
Проект комфортной вентиляции Zehnder Comforsystems: выполнен 29.12.2014
Объект: жилой дом индивидуальной застройки площадью 370 кв.м. в Раменском районе Московской области
Стоимость проекта вентиляции: 28 050 руб.
Состав проекта вентиляции:
1. Пояснительная записка.
2. Комплект чертежей приточной вентиляции дома.
3. Комплект чертежей вытяжной вентиляции дома.
4. Спецификация материалов и оборудования.
Объем проекта: 13 листов.
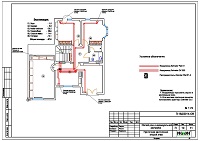
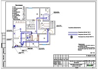
Основные проектные решения по вентиляции.
В соответствие с техническим заданием была разработана система комфортной приточно-вытяжной вентиляции на основе оборудования Zehnder Comforsystems, в составе:
- Вентиляционной установки Zehnder ComfoAir 550 R Luxe производительностью 550 куб.м./час, энтальпийным перекрестным теплообменником, обеспечивающим утилизацию 95% тепла и 65% влажности удаляемого воздуха в холодный период года;
- Блока охлаждения Zehnder ComfoCool;
- Воздухораспределительной системы Zehnder OnFloor на основе шумоизолирующих пластиковых воздуховодов;
- Оконечных устройств – универсальных распределителей Zehnder CLF, в количестве 21 шт.;
- Выносной панели управления ComfoControl Luxe, с помощью которой производится регулирование всех пользовательских параметров работы вентиляционной установки.
Расход воздуха через одно оконечное устройство принят на уровне 45 куб.м./час. Балансировка системы воздухораспределения предусматривается при помощи дроссельных регуляторов потока на отводах распределителей flat51.
Для защиты от шума проектом предусмотрена установка шумоглушителей на приточных воздуховодах.
Для этого дома выполнен проект котельной, отопления, теплого пола, водоснабжения и канализации.
![]() |
По этому проекту выполнен монтаж системы вентиляции |




















