Выполненные проекты
Проект электрики частного дома площадью 161 м.кв. в пос. Мартьяново
![]() |
![]() |
![]() |
Объект: частный дом площадью 161 кв.м. в пос. Мартьяново Серпуховского района Московской области
Стоимость проекта электрики: 17 710 руб.
Проект электрики выполнен: 12.10.2015
Состав проекта:
1. Пояснительная записка. Общие данные
2. Однолинейная схема ВРУ и распределительного щита.
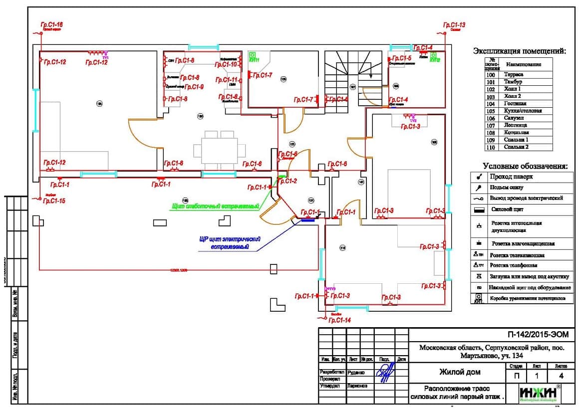
3. Поэтажные планы силовых электрических сетей дома.
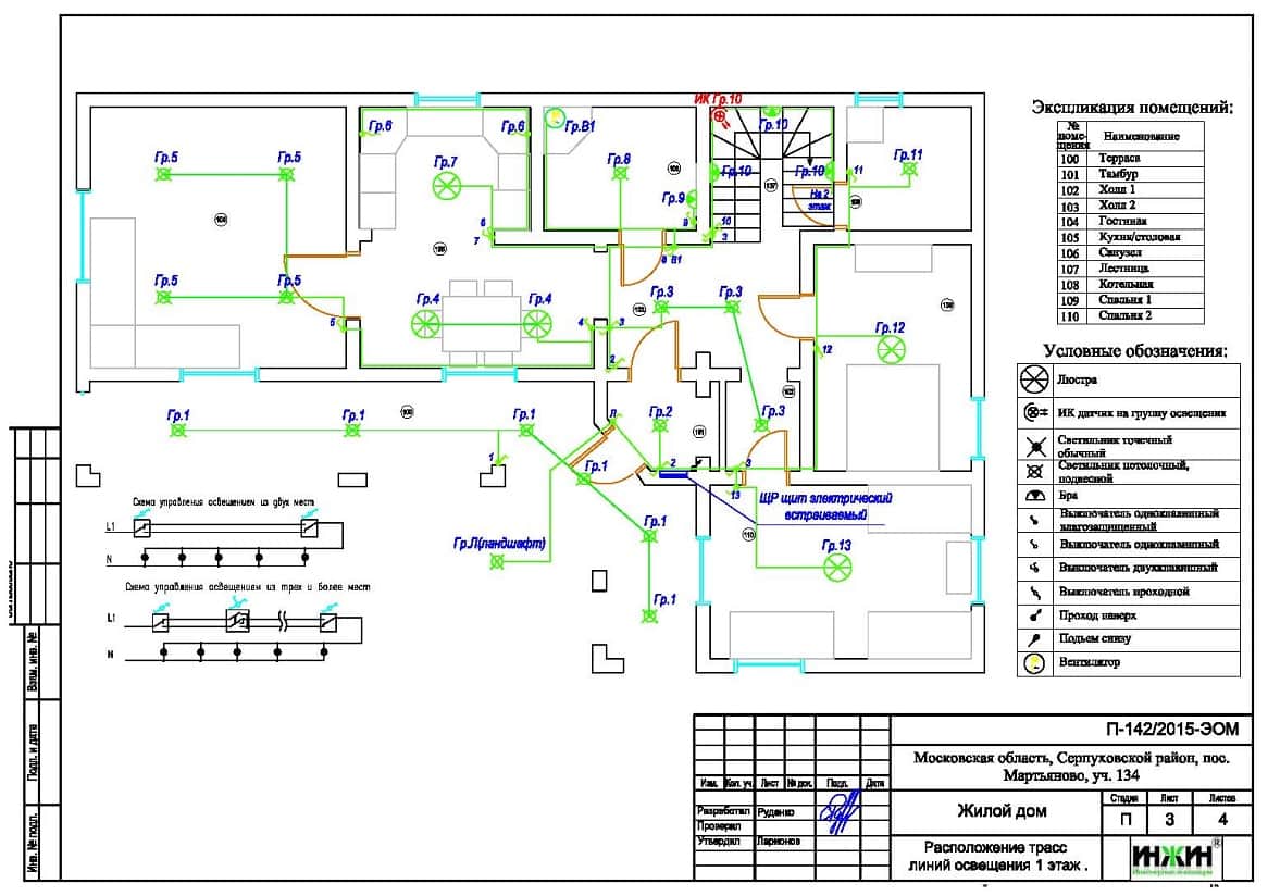
4. Поэтажные планы групповых осветительных сетей дома.
5. Схема системы уравнивания потенциалов.
6. Схема системы заземления.
7. Спецификация материалов и оборудования.
Объем проекта: 14 листов.
Основные технические решения проекта электроснабжения и освещения (электрики), принятые в соответствии с заданием Заказчика.
Распределительные электрические щиты.
o Проектом предусмотрено ВРУ и распределительный щит, оснащенные 31-м автоматом;
o Автоматические выключатели, дифференциальные автоматы и УЗО в щитах - Hager;
o Счетчик электрической энергии трехфазный, однотарифный Меркурий 231AM-01;
o Корпуса щитов - Hager.
Силовая кабельная сеть (электропроводка).
o Схема прокладки и трассировки кабельных линий классическая, без распаячных коробок, коммутации в щите и подрозетных коробках;
o Проектом предусмотрено использование кабелей ВВГ нг -LS (Конкорд) с медными жилами в тройной изоляции;
o Общая протяженность линий электроснабжения и освещения – 1 809 метров;
o Прокладка силовых линий предусмотрена скрытым способом, в ПВХ-гофротрубе и металлорукаве в ПВХ-оболочке.
Заземление.
Проектом предусмотрен комплект системы заземления Ezetec EZ 6.
Заказать проект электрики дома со скидкой.
![]() |
Для этого дома разработан проект отопления, водоснабжения и канализации |

















