Новости компании
Разработан проект отопления дома из бруса 103 м.кв.
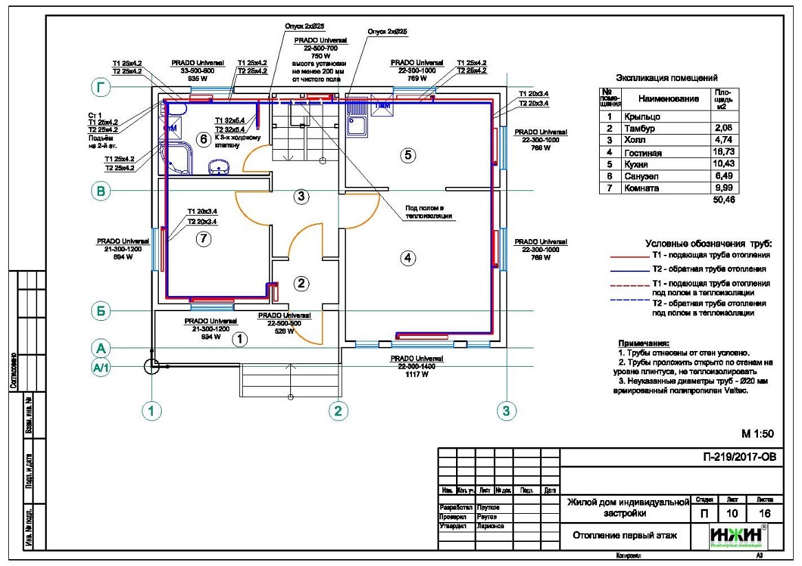
Для двухэтажного дома из бруса площадью 103 м.кв., расположенного в с.Введенское Домодедовского района Московской области, разработан проект котельной, отопления, водоснабжения и канализации.
Проектом котельной отопления, водоснабжения и канализации предусмотрены следующие основные технические решения:
- Вариант отопления «Базовый+», с погодозависимой автоматикой газового котла;
- Индивидуальная котельная размещена под лестницей (газовый котел на кухне), использовано два котла - основной газовый настенный Baxi ECO Four мощностью 14 кВт и резервный электрический Protherm Скат KR, мощностью 6 кВт;
- В индивидуальной котельной предусмотрено два контура: отопление дома и горячее водоснабжение (внешний бойлер);
- Приготовление горячей воды предусмотрено при помощи внешнего бойлера Baxi PREMIER Plus, объемом 100 литров, с комплектом ТЭНов мощностью 2,7 кВт;
- Выполнен расчет отопления, расход тепла на отопление дома составил 9,52 кВт;
- Отопление деревянного дома спроектировано по двухтрубной тройниковой схеме, трубопроводы из армированного полипропилена Valtec;
- Приборы отопления - стальные панельные радиаторы Prado Universal;
- Запорно-регулирующая арматура Valtec;
- Внутренний водопровод запроектирован по тройниковой тупиковой схеме с использованием трубопроводов из полипропилена Valtec;
- Система канализации безнапорная, трубопроводы раструбные SINIKON.
Цена проекта отопления - 22 500 руб. (минимальная стоимость проектирования), проект котельной бесплатно, объем проекта 33 листа.

22 января 2018 года














