Выполненные проекты
Проект отопления, водоснабжения и канализации дома площадью 103 м.кв. в с.Введенское
Объект: двухэтажный дом площадью 103 м.кв., расположенный в с. Введенское Домодедовского района Московской области
Вариант отопления: «Базовый+»
Стоимость проекта отопления, водоснабжения и канализации: 22 500 руб. (проект котельной бесплатно).
Проект выполнен: 22.01.2018
Состав проекта котельной отопления, водоснабжения и канализации дома:
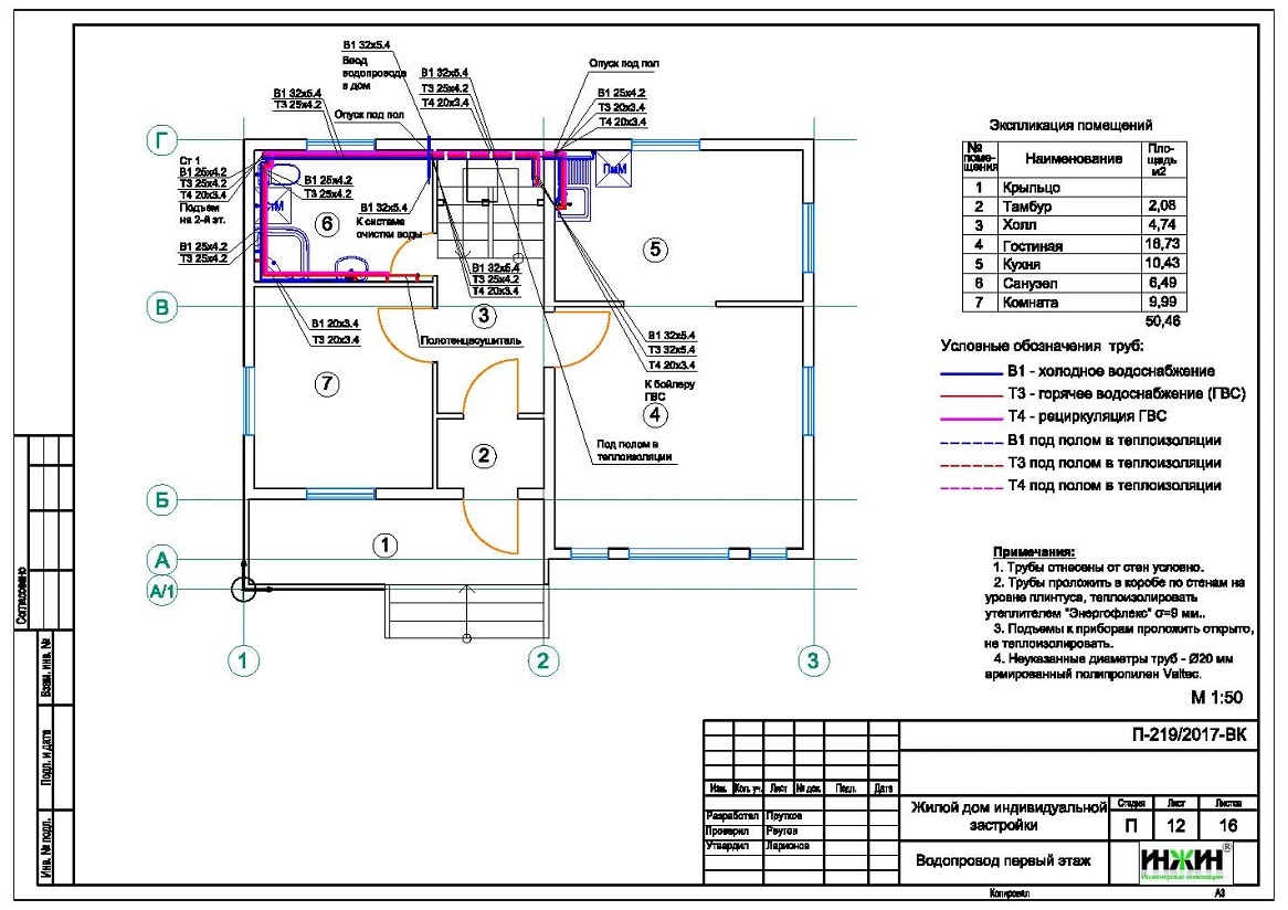
1. Пояснительная записка Общие данные по системам отопления, водоснабжения и канализации дома.
2. Тепломеханическая схема котельной с размещением оборудования в помещении.
3. Комплект поэтажных чертежей радиаторного отопления загородного дома.
4. Комплект чертежей внутреннего водопровода и канализации.
5. Теплотехнический расчет отопления частного дома.
6. Спецификация материалов и оборудования котельной, отопления, водоснабжения и канализации дома.
Объем проекта: 33 листа.
Решения, принятые в проекте, в соответствии с заданием на проектирование систем отопления, водоснабжения и канализации жома в с.Введеннское.
Индивидуальная котельная загородного дома (проект котельной бесплатно).
o Основной котел - газовый настенный Baxi, мощностью 14 кВт, резервный котел - настенный электрический, Protherm Скат KR мощностью 6 кВт;
o Контуры теплоснабжения котельной – радиаторное отопление дома и горячее водоснабжение (бойлер);
o Для приготовления горячей воды предусмотрен накопительный бойлер Baxi PREMIER Plus, объемом 100 литров, с опциональным комплектом ТЭНов мощностью 2,7 кВт;
o Расширительный бак водоснабжения Reflex, бак отопления встроен в котел;
o Насос рециркуляции горячей воды Grundfos, насос отопления встроен в котел;
o Дымоудаление основного котла принудительное, трубы дымоходные Baxi, коаксиальные, в исполнении «через стену»;
o Предусмотрена ручная подпитка отопления;
o Автоматика котельной встроена в основной (резервный) котел.
Автоматизация отопления (вариант «Базовый+»).
o Автоматическое регулирование отопления по наружной температуре (погодное регулирование) при помощи модуля ZONT H-1V;
o Дистанционный контроль работы котла посредством GSM-связи.
Система отопления загородного дома.
o Выполнен теплотехнический расчет отопления, с учетом теплопотерь через ограждающие конструкции (стены, пол, кровля, окна, двери), теплоотдачи отопительных приборов и оборудования в котельной, расчетный расход тепла на отопление дома составил 9,52 кВт;
o Приборы для системы отопления - стальные панельные радиаторы Prado Universal;
o Схема радиаторного отопления двухтрубная, тройниковая;
o Температурный график системы отопления 80/60°С;
o Трубы отопления из армированного полипропилена Valtec;
o Теплоизоляция трубопроводов не предусмотрена;
o Теплоноситель в системе отопления и теплых полов – подготовленная вода.
Водоснабжение дома.
o Схема внутреннего водопровода – тройниковая тупиковая, с рециркуляцией горячей воды через полотенцесушители;
o Выполнен расчет 18-ти точек водопровода, все тупиковые;
o Трубы системы водоснабжения – из армированного полипропилена Valtec.
Система канализации.
o Предусмотрен безнапорный отвод стоков от санитарно-технических приборов;
o Количество точек канализации – 11 шт.













