Новости компании
Разработан проект отопления дома 383 м.кв. в г. Пушкино
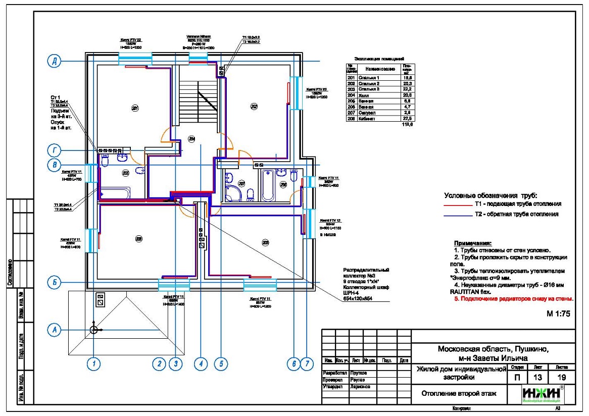
Для дома из кирпича площадью 383 м.кв., расположенного в г. Пушкино Московской области, разработан проект котельной, отопления и водоснабжения, в котором реализованы следующие основные технические решения:
- Вариант котельной и отопления «Комфортный+», с погодозависимой автоматикой котельной и зональным электронным управлением водяным теплым полом по помещениям;
- Индивидуальная котельная размещена на 1 этаже дома, в специально отведенном помещении, использован напольный газовый котел De Dietrich мощностью 54 кВт;
- В индивидуальной котельной предусмотрено четыре контура теплоснабжения – отопления, теплого пола, бойлера и гаража;
- Приготовление горячей воды предусмотрено при помощи бойлера косвенного нагрева De Dietrich, объемом 200 литров;
- Расчетный расход тепла на отопление дома составил 28,5 кВт;
- Отопление дома спроектировано по двухтрубной коллекторно-лучевой схеме, трубопроводы из сшитого полиэтилена Rehau;
- Приборы отопления - стальные панельные радиаторы Kermi и встраиваемый в пол конвектор Varmann Ntherm;
- Запорно-регулирующая арматура Valtec;
- Теплый пол предусмотрен на площади 80 м.кв., 10 петель;
- Внутренний водопровод запроектирован по коллекторной схеме с рециркуляцией горячей воды.
Стоимость проекта отопления - 63 850 руб., проект котельной бесплатно, объем проекта 45 листов.
Подробное описание выполненного проекта котельной, отопления и водопровода дома в г. Пушкино.
Заказать проект котельной, отопления и водопровода частного дома.
20 июля 2018 года














