Выполненные проекты
Проект отопления дома площадью 383 м.кв. в г. Пушкино
Объект: частный дом из кирпича площадью 326 м.кв., расположенный в гор. Пушкино Московской области
Вариант отопления: «Комфортный+»
Стоимость проекта отопления и водоснабжения: 63 850 руб. (проект котельной бесплатно).
Проект котельной, отопления и водоснабжения выполнен: 18.07.2018
Состав проекта котельной, отопления и водоснабжения дома:
1. Пояснительная записка проекта. Общие данные по системам отопления, водоснабжения и котельной частного дома из кирпича.
2. Тепломеханическая схема котельной с размещением оборудования в помещении первого этажа.
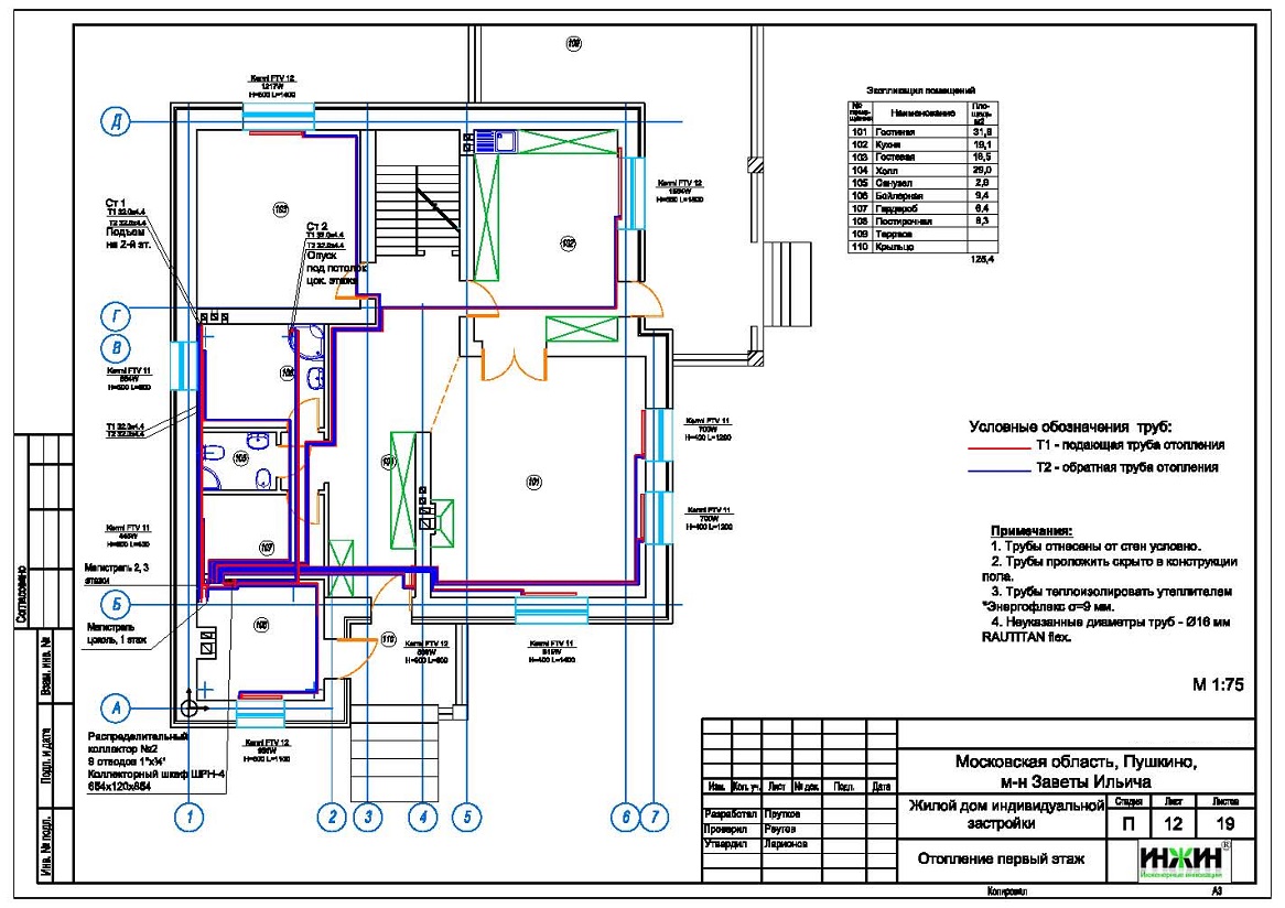
3. Комплект поэтажных чертежей радиаторного отопления дома.
4. Комплект чертежей напольного отопления - водяного теплого пола.
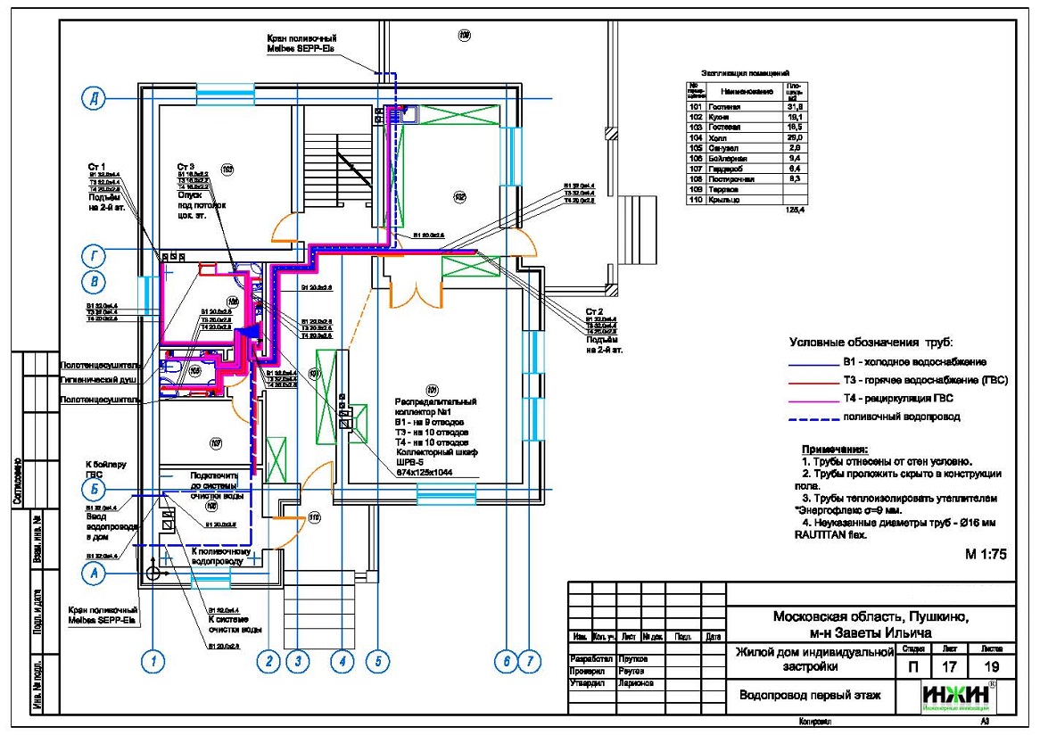
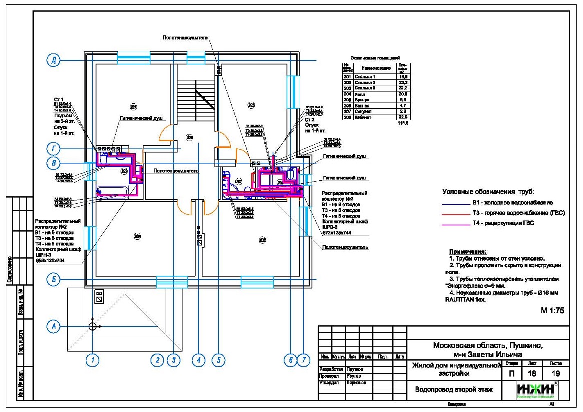
5. Комплект чертежей внутреннего водопровода.
6. Теплотехнический расчет отопления дома.
7. Спецификация материалов и оборудования по котельной, отоплению, теплому полу и водоснабжению.
Объем проекта: 45 листов.
Описание проекта отопления, котельной и водоснабжения частного дома в г.Пушкино.
Котельная дома (проект котельной дома бесплатно).
o Размещена в специально отведенном помещении котельной первого этажа;
o Предусмотрен напольный газовый котел De Dietrich мощностью 54 кВт (в наличии на объекте);
o Контуры теплоснабжения котельной – радиаторное отопление дома, теплоснабжение гаража, водяной теплый пол, горячее водоснабжение (бойлер косвенного нагрева), всего четыре контура;
o Для приготовления горячей воды предусмотрен накопительный бойлер De Dietrich, объемом 200 литров;
o Расширительные баки отопления и водоснабжения Flamco, объемом 50 и 18 литров соответственно;
o Циркуляционные насосы отопления и теплого пола Grundfos, серии Alpha2, с частотным регулированием;
o Дымоудаление естественное, использованы трубы из нержавеющей стали Rosinox, размещение - в строительной шахте;
o Распределительный коллектор - Meibes «Поколение 8» с гидравлической стрелкой и насосными группами;
o Предусмотрена ручная подпитка отопления;
o Автоматика котельной – блок De Dietrich Diematic - m3.
Автоматизация отопления (вариант «Комфортный+»).
o Автоматическое регулирование отопления по наружной температуре (погодное регулирование) и температуре в помещении;
o Автоматическое поддержание заданной температуры в контурах отопления, теплого пола и горячего водоснабжения;
o Зональное электронное управление системой водяного теплого пола.
Система отопления дома (проект отопления).
o Выполнен теплотехнический расчет отопления, с учетом теплопотерь через ограждающие конструкции при наружной температуре -28°С для Московской области (по СП 131.13330.2012), теплоотдачи отопительных приборов, теплого пола, полотенцесушителей (в санузлах) и оборудования в котельной, расчетный расход тепла на отопление дома составил 28,50 кВт;
o Подобраны приборы для системы отопления: панельные стальные радиаторы Kermi и встраиваемый в пол конвектор Varmann Ntherm (на лестнице);
o Схема радиаторного отопления двухтрубная, коллекторно-лучевая, с принудительной циркуляцией теплоносителя;
o Температурный график системы отопления 80/60°С;
o Трубы отопления из сшитого полиэтилена Rehau;
o Коллекторы отопления – Rehau HKV, на 5, 8 и 9 (2 шт.) отводов;
o Шкафы коллекторные Valtec, встраиваемые и пристраиваемые;
o Теплоизоляция трубопроводов отопления Энергофлекс, толщиной 9мм;
o Теплоноситель в системе отопления и теплых полов – подготовленная вода;
o Регулирование отопления при помощи терморегуляторов Rossweiner, устанавливаемых на радиаторах
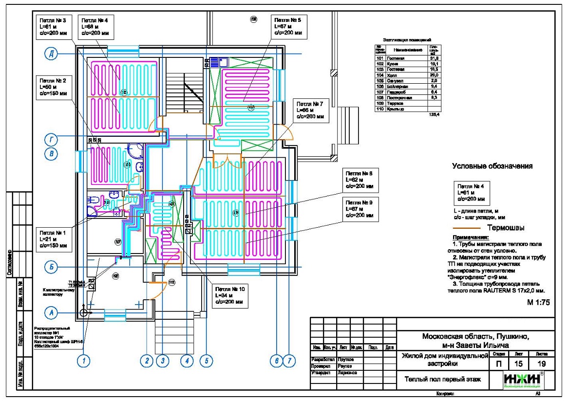
Водяной теплый пол дома (проект теплого пола).
o Водяной теплый пол в доме предусмотрен на площади 80 м.кв., 10 петель;
o Трубопроводы теплого пола - сшитый полиэтилен Rehau RAUTHERM S;
o Коллектор теплого пола Rehau HKV-D с расходомерами на 10 отводов;
o Основание теплого пола – маты из ламинированного пенополистирола Elsen ElM01.50;
o Регулирование температуры теплого пола по помещениям, при помощи электронных комнатных термостатов и сервоприводов Valtec.
Водоснабжение дома.
o Схема внутреннего водопровода – коллекторная, с рециркуляцией горячей воды через проходные водорозетки;
o Коллекторы водопровода – сборные, Valtec VTc.560, с запорными вентилями;
o Выполнен расчет 49-ти точек водопровода, из них 33 тупиковых и 16 проходных;
o Трубы системы водоснабжения – из сшитого полиэтилена Rehau;
o Для наружного использования предусмотрено два крана Meibes SEPP-Eis с защитой от замерзания;
o Теплоизоляция трубопроводов Энергофлекс, толщиной 9мм.



















