Новости компании
Выполнен проект электрики дома 412 м.кв. в Дмитрове
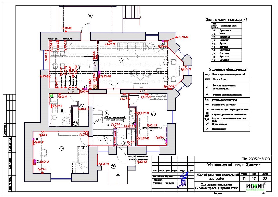
Разработан проект электрики и электропроводки для частного дома с гаражом, общей площадью 412 кв.м., расположенного в г.Дмитров Московской области.
Проект электрики дома в г.Дмитров содержит следующие технические решения:
- Выполнен расчет схемы электроснабжения, электрическая мощность дома и гаража составила 24,15 кВт;
- Автоматические выключатели (УЗО) в количестве 105 шт., которые размещены в 5-и распределительных щитах ABB, в доме и гараже;
- Электропроводка предусмотрена скрытым способом, в конструкции стен и потолков дома и гаража;
- Общая протяженность электропроводки 3834 метра;
- Предусмотрено резервное электропитания, источником которого является дизельный генератор Cummins мощностью 15 кВт (трехфазный), расположенный в гараже.
Цена проекта электрики – 39 140 руб., проект видеонаблюдения и телевидения - бесплатно. Объем проекта – 38 листов.
Подробное описание выполненного проекта электрики дома с гаражом в Дмитрове.

Видеоматериал о городе Дмитров Московской области.
01 февраля 2019 года
- Информация о материале
- Просмотров: 2682














