Выполненные проекты
Проект электрики кирпичного дома 412 м.кв. с гаражом
Объект: трехэтажный дом из кирпича с гаражом, общей площадью 412 м.кв., расположенный в г.Дмитров Московской области
Цена (стоимость) проекта электрики: 39 140 руб. (проект слаботочки и резервного электроснабжения – бесплатно).
Проект электрики выполнен: 30.01.2019
Состав проекта электрики дома с гаражом в г. Дмитров:
1. Пояснительная записка. Общие данные по электроснабжению и освещению двух строений.
2. Однолинейные схемы вводного распределительного устройства и распределительных щитов дома и гаража.
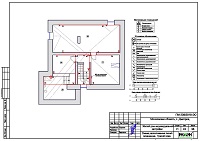
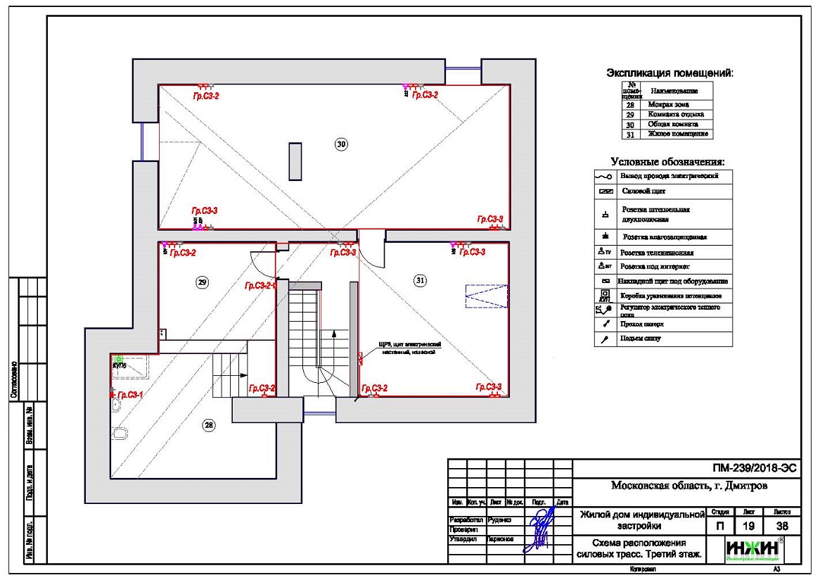
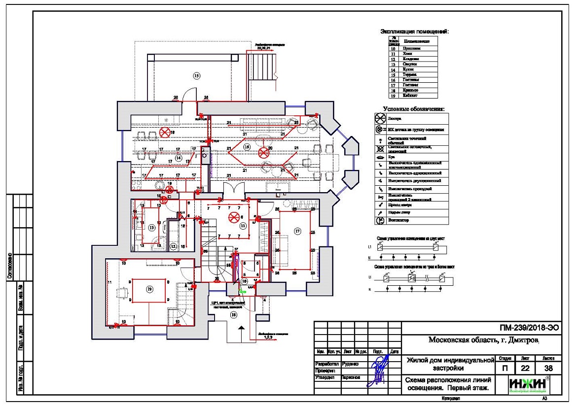
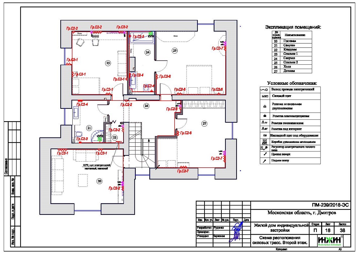
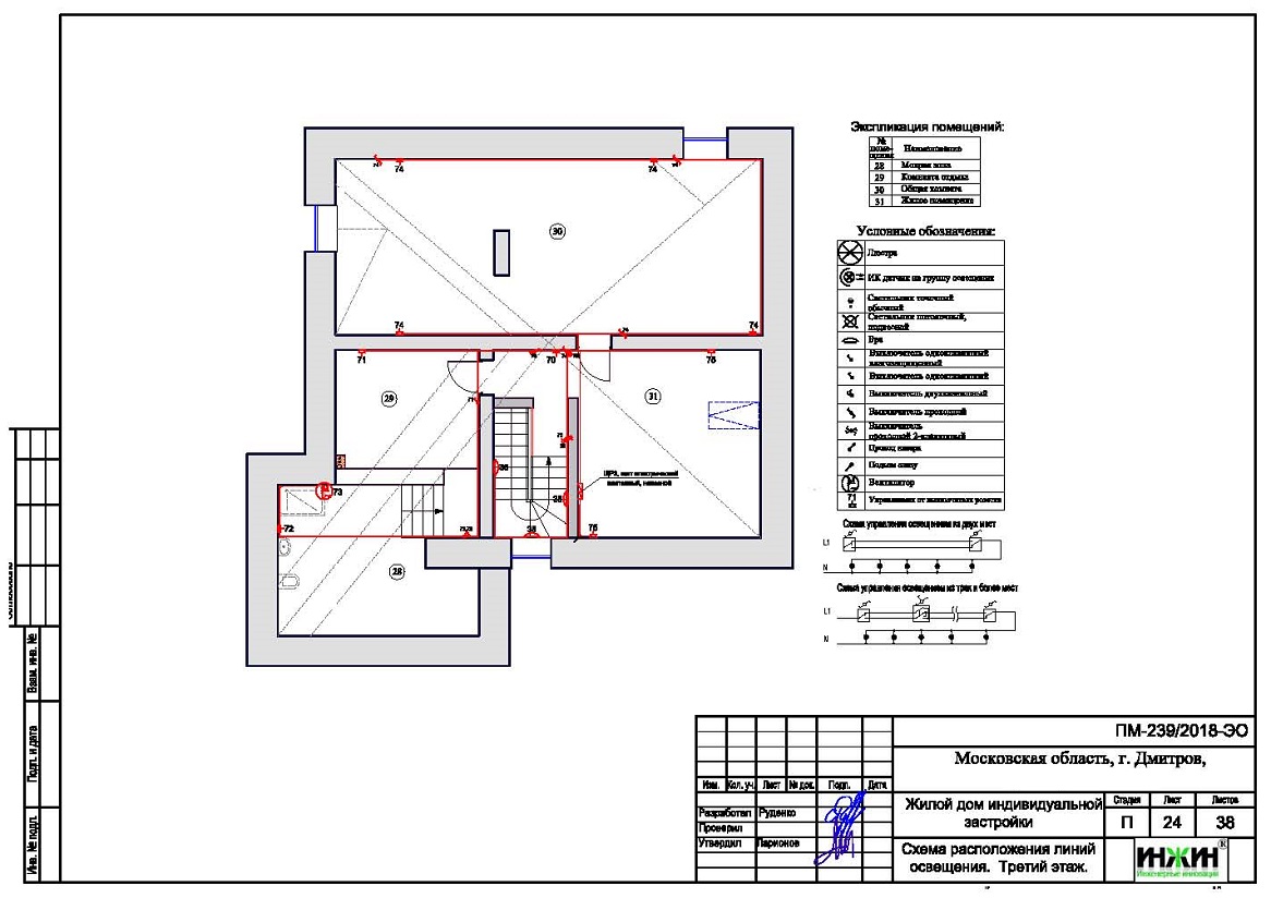
3. Чертежи электропроводки цокольного, первого и второго этажей дома, а также гаража.
4. Чертежи групповых осветительных сетей дома (видеонаблюдения и телевидения) гаража и дома.
5. Спецификация материалов и оборудования по электрике и электропроводке дома с гаражом в г. Дмитров.
Объем проекта электрики дома 412 м.кв.: 38 листов.
Описание проекта электрики частного дома с гаражом площадью 412 м.кв.
Расчетные показатели по электроснабжению и освещению частного дома с баней и гаражом.
o Расчетная электрическая мощность дома и гаража составила 24,15 кВт, с учетом коэффициента спроса 0,45, принятого согласно СП 256.1325800.2016;
o При расчете учтено силовое оборудование: газовый котел, электрический котел, насосы котельной, скважинный насос, духовой шкаф;
o Мощность потребителей резервного электропитания 15,00 кВт.
Распределительные электрические щиты.
o Проектом предусмотрено 5 распределительных щитов, размещенных в доме и гараже и оснащенных 105-ю автоматами;
o Автоматические выключатели, дифференциальные автоматы и УЗО в щитах – ABB, размещены во встроенных и пристроенных корпусах ABB.
Силовая кабельная сеть (электропроводка).
o Электропроводка дома и гаража предусмотрена с использованием кабелей ВВГ нг -LS с медными жилами в ПВХ-оболочке (не поддерживает горение);
o Общая протяженность линий электроснабжения и освещения – 3834 метра;
o Электропроводка предусмотрена скрытым способом, в защитной гофрированной ПВХ-трубе (усиленной конструкции);
o Запроектировано 331 точка подключения розеток и выключателей освещения в доме и гараже;
o Для системы телевидения предусмотрены кабельные трассы с использованием кабеля Cavel SAT 703, в количестве 300 метров
o Для уличного видеонаблюдения предусмотрен кабель КВК-П-2Х0,75 ММ - 100 метров;.
Резервное и стабилизированное электропитание.
Предусмотрено резервное электроснабжение дома, источник - дизельный генератор Cummins мощностью 15 кВт (трехфазный).























По этому проекту выполнен