Новости компании
Выполнен проект электрики для дома площадью 350 м.кв.
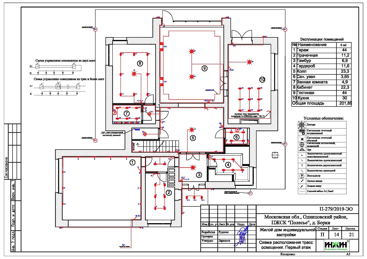
Выполнен проект электрики и электропроводки для частного дома с гаражом, площадью 350 кв.м., расположенного в ПЖСК "Полесье" Одинцовского района Московской области.
Проект электрики дома в ПЖСК "Полесье" содержит следующие технические решения:
- Выполнен расчет схемы электроснабжения, электрическая мощность дома (с электропитанием гаража) составила 14,45 кВт, с учетом коэффициента спроса 0,65, принятого согласно СП 256.1325800.2016;
- Автоматические выключатели (УЗО) в количестве 36 шт., которые размещены в 2-х распределительных щитах ABB;
- Электропроводка предусмотрена скрытым способом, в конструкции стен и пола дома;
- Общая протяженность электропроводки 2 035 метров;
- Предусмотрен контур повторного заземления для дома.
Цена проекта электрики – 29 925 руб., объем проекта – 21 лист.
Подробное описание выполненного проекта электрики дома в ПЖСК "Полесье".

27 июня 2019 года
- Информация о материале
- Просмотров: 3498














