Выполненные проекты
Проект электрики дома 350 м.кв.в ПЖСК "Полесье"
Объект: дом с гаражом площадью 350 м.кв. в ПЖСК "Полесье" Одинцовского района Московской области
Цена (стоимость) проекта электрики (электропроводки): 29 925 руб. со скидкой 10%, проект слаботочных кабельных линий - бесплатно.
Проект электрики выполнен: 25.06.2019
Состав проекта электрики дома в ПЖСК "Полесье":
1. Пояснительная записка. Общие данные по электроснабжению и освещению дома в ПЖСК "Полесье".
2. Однолинейные схемы вводного распределительного устройства и электрических распределительных щитов дома 350 м.кв..
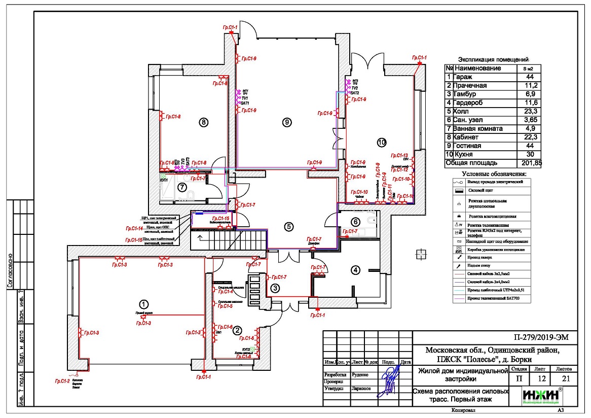
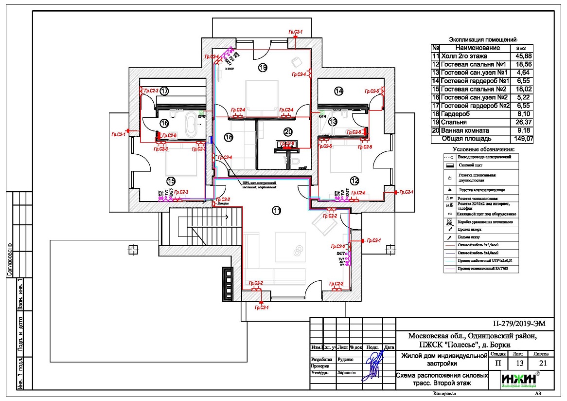
3. Чертежи электропроводки 1 и 2 этажей дома в ПЖСК "Полесье".
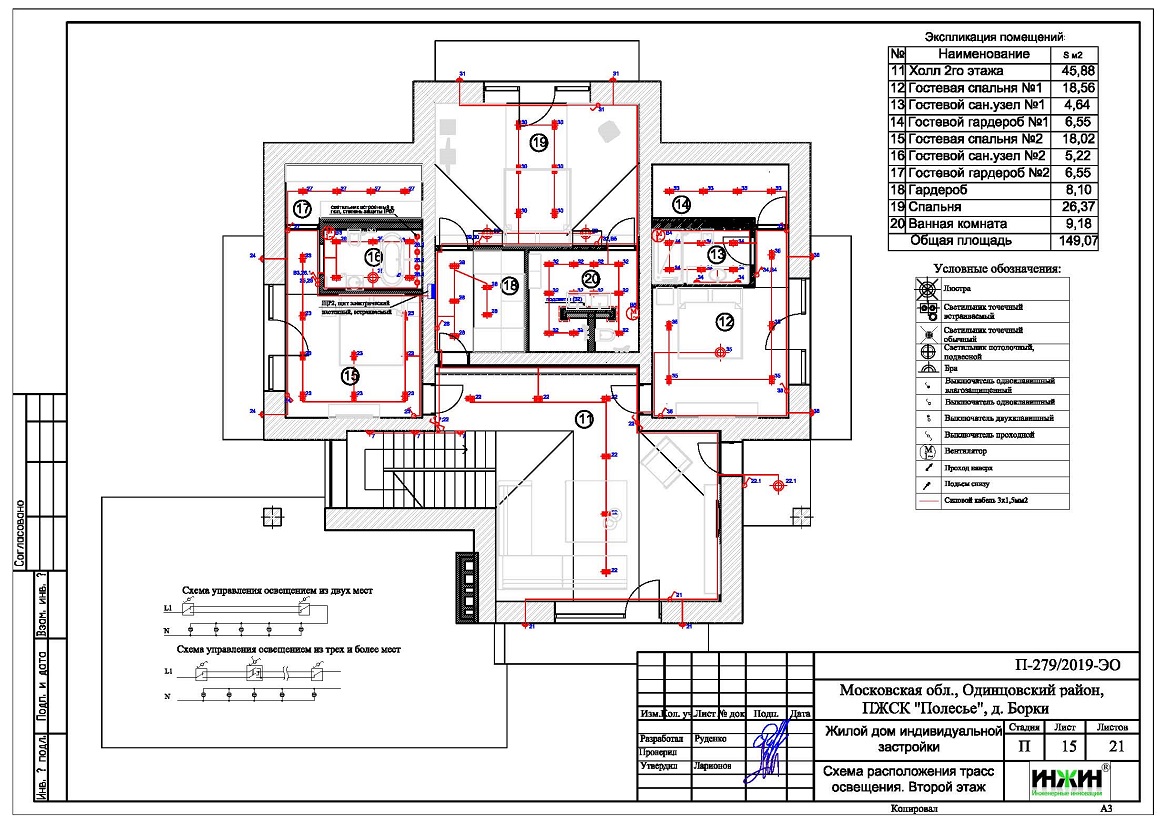
4. Чертежи групповых осветительных сетей дома в ПЖСК "Полесье".
5. Спецификация материалов и оборудования по электрике и электропроводке дома в ПЖСК "Полесье".
Объем проекта электрики дома 350 м.кв.: 21 лист.
Описание проекта электрики частного дома площадью 350 м.кв.
Расчетные показатели по электроснабжению и освещению частного дома в ПЖСК "Полесье".
o Расчетная электрическая мощность дома составила 14,45 кВт, с учетом коэффициента спроса 0,65, принятого согласно СП 256.1325800.2016;
o При расчете учтено силовое оборудование: газовый котел, духовой шкаф.
Распределительные электрические щиты дома площадью 350 м.кв..
o Проектом предусмотрено два распределительных электрических щита, расположенных на каждом этаже доме;
o Автоматические выключатели, дифференциальные автоматы, рубильники и УЗО в щитах – ABB, в количестве 36 шт. размещены в электрических распределительных щитах.
Силовая кабельная сеть (электропроводка) дома в ПЖСК "Полесье".
o Электропроводка дома предусмотрена с использованием кабелей ВВГ нг -LS с медными жилами в ПВХ-оболочке (не поддерживает горение);
o Общая протяженность линий электроснабжения и освещения – 2 035 метров;
o Электропроводка предусмотрена скрытым способом, в защитной гофрированной ПВХ-трубе (усиленной конструкции) и металлорукаве в виниловой оболочке (в стропильной системе кровли);
o Запроектировано 168 точек подключения розеток и выключателей освещения в кирпичном доме.
Предусмотрен контур повторного заземления.
Заказать проект электрики дома.
По этому проекту выполнен монтаж электрики при реконструкции дома в ПЖСК "Полесье".



















