Новости компании
Выполнены проекты инженерных систем для твинхауса
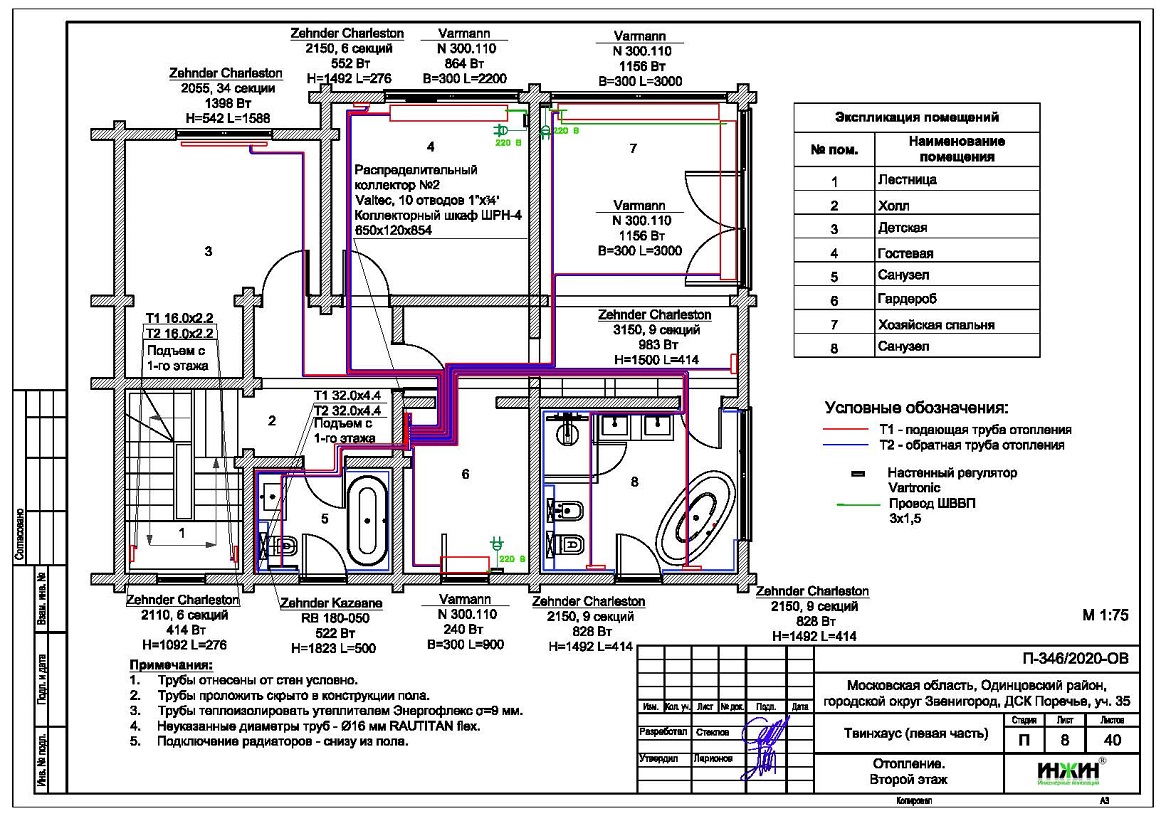
Для левой части твинхауса со стенами из бруса (утеплитель кровли - минеральная вата 200мм), площадью 175 м.кв., расположенного в ДСК "Поречье"Московской области, разработаны проекты внутренних инженерных систем: электрики, отопления, водоснабжения и канализации.
В проекте отопления, водоснабжения и канализации, по заданию Заказчика, предусмотрены следующие основные технические решения:
- Вариант отопления «Комфортный+», с электронным регулированием температуры теплого пола по помещениям;
- Контуры теплоснабжения твинхауса (от ИТП) – радиаторное отопление, теплый пол и горячее водоснабжение;
- Выполнен расчет отопления, расход тепла на отопление составил - 18,91 кВт, удельные теплопотери 99,3 Вт/м.кв.;
- Отопление и водоснабжение дома в ДСК "Поречье" предусмотрены по коллекторно-лучевой схеме, с трубопроводами из полиэтилена Rehau;
- Приборы для системы отопления дома - стальные панельные радиаторы KERMI с нижним подключением (из пола), также встроенные в пол конвекторы Varmann с естественной и принудительной конвекцией, а также стальное трубчатые радиаторы Zehnder;
- Водяной теплый пол проектом предусмотрен на площади 86 м.кв.;
- Водоснабжение предусмотрено с рециркуляцией горячей воды через полотенцесушители, выполнен расчет 30-и точек внутреннего водопровода;
- Внутренняя канализация безнапорная, отвод стоков от санитарно-технических приборов предусмотрен в септик, выполнен расчет 13-и точек канализации.
Стоимость проекта отопления водоснабжения и канализации дома в ДСК "Поречье"- 30 050 руб. со скидкой 10%, объем проекта отопления 40 листов.
Подробное описание выполненного проекта отопления, водоснабжения и канализации твинхауса 175 м.кв.

Проект электрики дома в ДСК "Поречье" содержит следующие технические решения:
- Выполнен расчет схемы электроснабжения, электрическая мощность дома составила 13,86 кВт, с учетом коэффициента спроса 0,6, принятого согласно СП 256.1325800.2016;
- Автоматические выключатели (УЗО) в количестве 32 шт., которые размещены в двух распределительных щитах ABB (навесные корпуса);
- Электропроводка предусмотрена скрытым способом, в конструкции стен и пола дома;
- Общая протяженность электропроводки 1 446 метров;
- Резервное электропитание дома при помощи однофазного инвертора CyberPower мощностью 5 кВт.
Цена проекта электрики – 14 963 руб. со скидкой 10%. Объем проекта электрики – 22 листа.
Подробное описание выполненного проекта электрики дома в ДСК "Поречье".

Заказать проект электрики твинхауса дистанционно.
11 сентября 2020 года
- Информация о материале
- Просмотров: 2149














