Новости компании
Выполнен проект электрики для дома 258 м.кв.
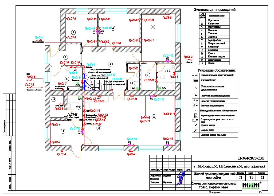
Разработан проект электрики (электропроводки) для кирпичного дома площадью 258 кв.м., расположенного в дер. Каменка, г. Москва.
Проект электрики кирпичного дома в дер. Каменка содержит следующие технические решения:
- Выполнен расчет схемы электроснабжения, электрическая мощность дома составила 17,84 кВт, с учетом коэффициента спроса 0,65, принятого согласно СП 256.1325800.2016;
- Автоматические выключатели (УЗО) в количестве 38 шт., которые размещены в распределительном щите Legrand;
- Электропроводка предусмотрена скрытым способом в стенах и полу помещений дома;
- Общая протяженность скрытой электропроводки 1160 метров;
- Предусмотрено резервное электропитание - однофазный инвертор CyberPower CPS 5500 PRO мощностью 5 кВт.
Цена проекта электрики – 22 059 руб. со скидкой 10%, объем проекта – 21 лист.
Подробное описание выполненного проекта электрики кирпичного дома в дер. Каменка.
Заказать проект электрики кирпичного дома дистанционно.
03 ноября 2020 года
- Информация о материале
- Просмотров: 1448















