Выполненные проекты
Проект электрики дома 258 м.кв. в дер. Каменка
Объект: дом из кирпича общей площадью 258 м.кв. в дер. Каменка, г. Москва
Цена (стоимость) проекта электрики (электропроводки): 22 059 руб. со скидкой 10%, проект слаботочных кабельных линий - бесплатно.
Проект электрики выполнен: 02.11.2020
Состав проекта электрики дома в дер. Каменка:
1. Пояснительная записка. Общие данные по электроснабжению и освещению частного дома в дер. Каменка.
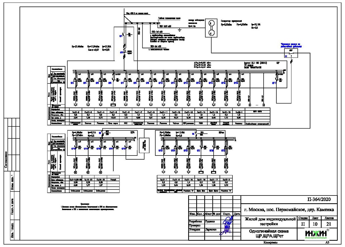
2. Однолинейные схемы вводного распределительного устройства и электрического распределительного щита дома 258 м.кв.
3. Чертежи электропроводки дома в дер. Каменка.
4. Чертежи групповых осветительных сетей дома в дер. Каменка.
5. Спецификация материалов и оборудования по электрике и электропроводке дома в дер. Каменка.
Объем проекта электрики дома 258 м.кв.: 21 лист.
Проект электрики дома площадью 258 м.кв. в дер. Каменка- подробное описание.
Расчетные показатели по электроснабжению и освещению дома в дер. Каменка.
o Расчетная электрическая мощность дома составила 17,84 кВт, с учетом коэффициента спроса 0,65, принятого согласно СП 256.1325800.2016;
o При расчете учтено силовое оборудование: вентустановка, КНС, сауна, газовый котел, скважинный насос.
Распределительные электрические щиты дома площадью 258 м.кв.
o Проектом предусмотрен распределительный электрический щит, размещенный в техническом помещении;
o Автоматические выключатели, дифференциальные автоматы, рубильники и УЗО в щите – Legrand, в количестве 38 шт. размещены в пристраиваемом корпусе.
Силовая кабельная сеть (электропроводка) дома в дер. Каменка.
o Электропроводка дома и бани предусмотрена с использованием кабелей ВВГ нг -LS с медными жилами в ПВХ-оболочке (не поддерживает горение);
o Общая протяженность линий электроснабжения и освещения – 1160 метров, вводные кабельные линии - бронированные кабели (ВБбШв) 100 метров;
o Электропроводка предусмотрена скрытым способом, в гофрированной ПВХ-трубе и металлорукаве в виниловой оболочке;
o Запроектировано 115 точек подключения розеток и выключателей освещения в доме;
o Предусмотрены слаботочные линии локальной вычислительной сети и телевидения, общая протяженность - 1510 метров, а также видеонаблюдение участка с использованием провода КВК-П-2Х0,75 ММ (50 метров).
Предусмотрено резервное электропитание - однофазный инвертор CyberPower CPS 5500 PRO мощностью 5 кВт и генератор однофазный - по выбору Заказчика.






















