Новости компании
Выполнен проект электрики для дома в Киевской области
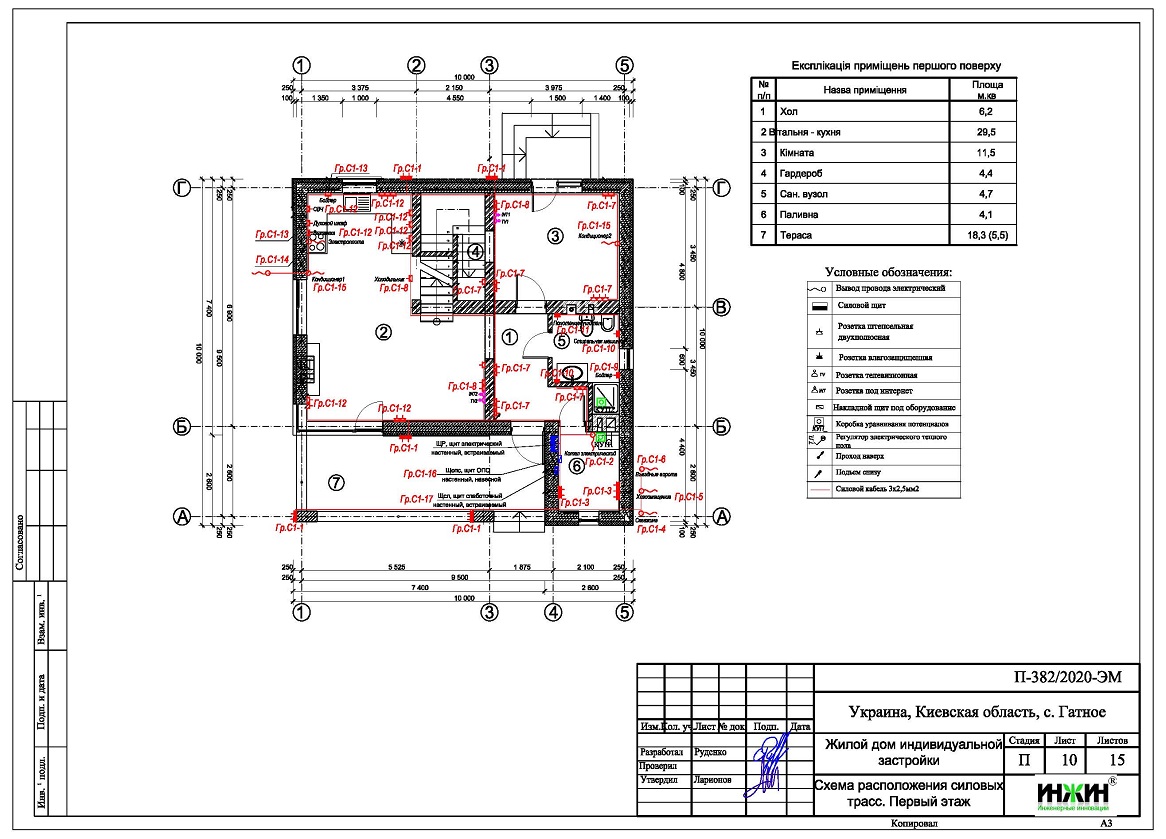
Разработан проект электрики (электропроводки) для газобетонного дома площадью 121 кв.м., расположенного в с. Гатное Киевской области.
Проект электрики дома в с. Гатное Киевской области содержит следующие технические решения:
- Выполнен расчет схемы электроснабжения, электрическая мощность дома составила 17,73 кВт, с учетом коэффициента спроса 0,50, принятого согласно СП 256.1325800.2016;
- Автоматические выключатели (УЗО) в количестве 29 шт., которые размещены в распределительном щите ABB;
- Электропроводка предусмотрена скрытым способом в стенах и полу помещений дома;
- Общая протяженность скрытой электропроводки 890 метров;
- Предусмотрено резервное электропитание - однофазный инвертор CyberPower CPS 1500 PRO мощностью 1,5 кВт.
Цена проекта электрики – 10 246 руб. со скидкой 10%, объем проекта – 15 листов.
Подробное описание выполненного проекта электрики дома в с. Гатное Киевской области.
Заказать проект электрики кирпичного дома дистанционно.
02 декабря 2020 года
- Информация о материале
- Просмотров: 1928















