Выполненные проекты
Электрика дома в с. Гатное Киевской области, проект
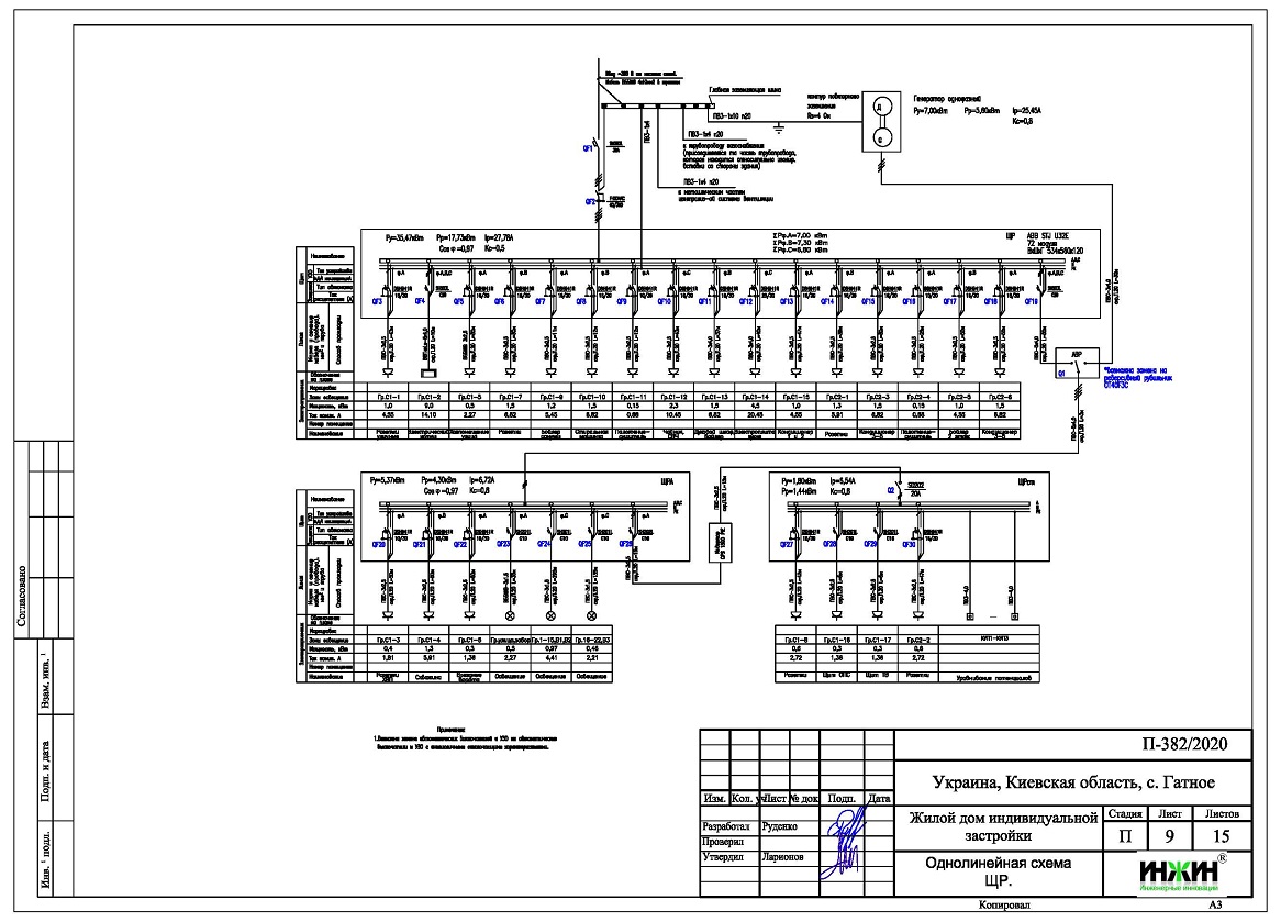
Объект: дом из газобетона общей площадью 121 м.кв. в с. Гатное Киевской области (Украина)
Цена (стоимость) проекта электрики (электропроводки): 10 246 руб. со скидкой 10%, проект слаботочных кабельных линий - бесплатно.
Проект электрики выполнен: 01.12.2020
Состав проекта электрики дома в с. Гатное Киевской области:
1. Пояснительная записка. Общие данные по электроснабжению и освещению частного дома в с. Гатное Киевской области.
2. Однолинейные схемы вводного распределительного устройства и электрического распределительного щита дома 121 м.кв.
3. Чертежи электропроводки дома в с. Гатное Киевской области.
4. Чертежи групповых осветительных сетей дома в с. Гатное Киевской области.
5. Спецификация материалов и оборудования по электрике и электропроводке дома в с. Гатное Киевской области.
Объем проекта электрики дома 121 м.кв.: 15 листов.
Проект электрики дома площадью 121 м.кв. в с. Гатное Киевской области- подробное описание.
Расчетные показатели по электроснабжению и освещению дома в с. Гатное Киевской области.
o Расчетная электрическая мощность дома составила 17,73 кВт, с учетом коэффициента спроса 0,50, принятого согласно СП 256.1325800.2016;
o При расчете учтено силовое оборудование: электроплита, котел электрический, электрические водонагреватели, полотенцесушители, скважинный насос.
Распределительные электрические щиты дома площадью 121 м.кв.
o Проектом предусмотрен распределительный электрический щит, размещенный в помещении котельной;
o Автоматические выключатели, дифференциальные автоматы, рубильники и УЗО в щите – ABB, в количестве 29 шт. размещены во встраиваемом корпусе.
Силовая кабельная сеть (электропроводка) дома в с. Гатное Киевской области.
o Электропроводка дома и бани предусмотрена с использованием кабелей ПВС -LS с медными жилами в ПВХ-оболочке (не поддерживает горение);
o Общая протяженность линий электроснабжения и освещения – 890 метров, вводные кабельные линии - бронированные кабели (ВБбШв) 55 метров;
o Электропроводка предусмотрена скрытым способом, в гофрированной ПВХ-трубе;
o Запроектировано 108 точек подключения розеток и выключателей освещения в доме;
o Предусмотрены слаботочные линии локальной вычислительной сети и телевидения, общая протяженность - 390 метров.
Предусмотрено резервное электропитание - однофазный инвертор CyberPower CPS 1500 PRO мощностью 1,5 кВт.



















