Новости компании
Выполнен проект электрики дома в Нижегородской области
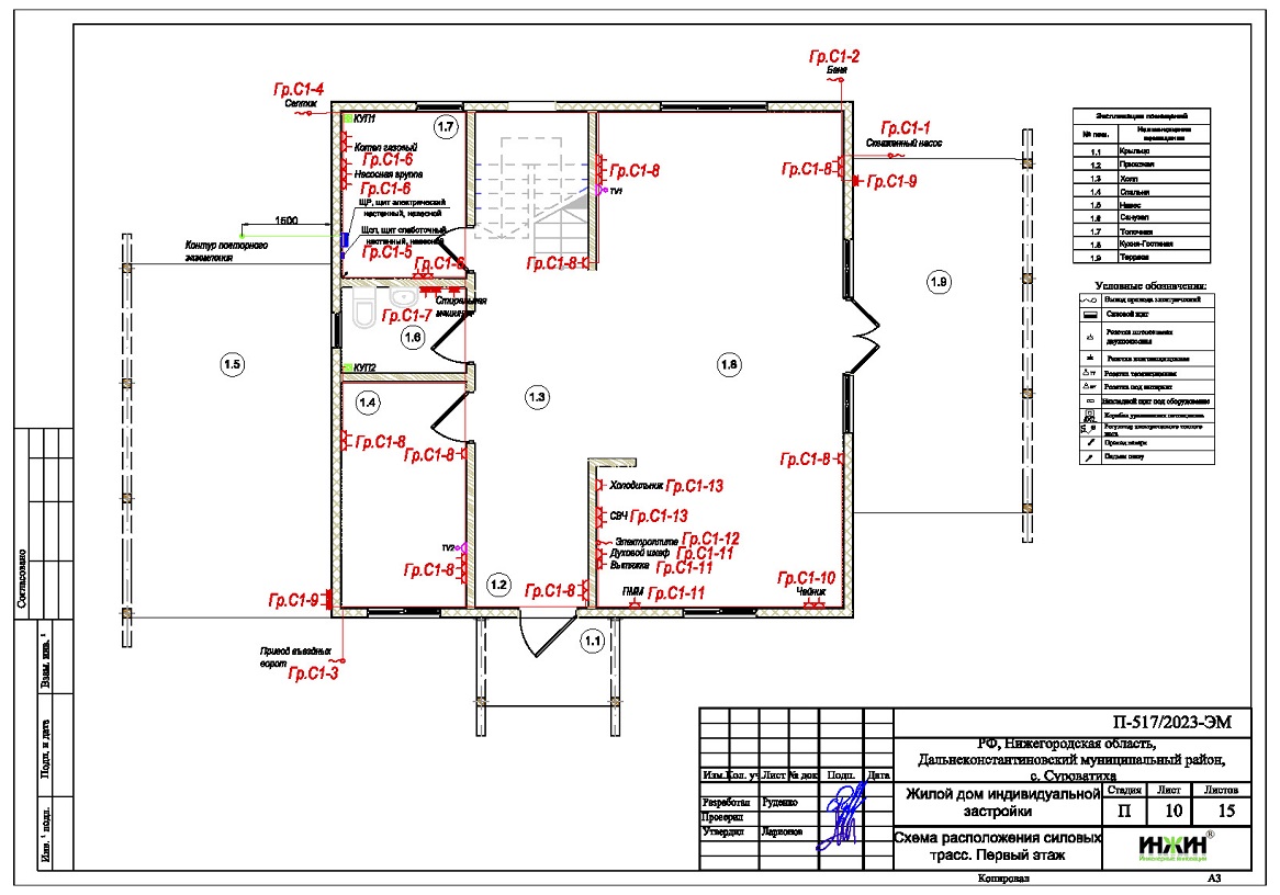
Разработан проект электрики (электропроводки) для дома площадью 147 м.кв., расположенного в с. Суроватиха Нижегородской области.
Проект электрики дома в с. Суроватиха Нижегородской области содержит следующие технические решения:
- Выполнен расчет схемы электроснабжения, электрическая мощность дома составила 10,35 кВт, с учетом коэффициента спроса 0,5, принятого согласно СП 256.1325800.2016;
- Автоматические выключатели (УЗО) в количестве 22 шт., которые размещены в распределительном щите ABB;
- Электропроводка предусмотрена скрытым способом в стенах и полу помещений дома;
- Общая протяженность скрытой электропроводки 575 метров, слаботочных линий - 70 метров.
Цена проекта электрики – 17 596 руб. со скидкой 10%, объем проекта – 15 листов.
Подробное описание выполненного проекта электрики дома в с. Суроватиха Нижегородской области.
Заказать проект электрики частного дома в Нижегородской области дистанционно.
15 сентября 2023 года
- Информация о материале
- Просмотров: 4646















