Новости компании
Выполнен проект отопления для дома 180 м.кв. в Пушкино
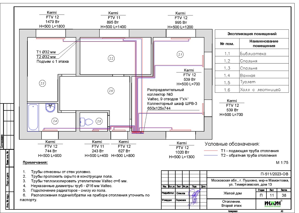
Для загородного дома со стенами из кирпича (утеплитель кровли - минеральная вата 100мм), площадью 180 м.кв., расположенного в г. Пушкино (мкр Мамонтовка) Московской области, выполнены проекты отопления, канализации и водоснабжения.
В проекте отопления, канализации и водоснабжения, по заданию Заказчика, предусмотрены следующие основные технические решения:
- Вариант отопления «Комфортный», с контроллером управления котлом ZONT CONNECT со встроенным GSM-модулем для удаленного управления при помощи мобильного приложения;
- Индивидуальная котельная с настенным котлом (газовым) BAXI ECO Life 1.24F, мощностью 24 кВт;
- Контуры теплоснабжения дома – 2 шт. (отопление и горячее водоснабжение);
- Выполнен расчет отопления, расход тепла на отопление составил - 16,11 кВт, удельные теплопотери 87,2 Вт/м.кв.;
- Отопление дома в Московской области предусмотрены по коллекторно-лучевой схеме, с трубопроводами из металлопластика Valtec;
- Приборы для системы отопления дома - стальные панельные радиаторы KERMI с нижним подключением, в вентильном исполнении;
- Водяной теплый пол проектом не предусмотрен;
- Водоснабжение предусмотрено с рециркуляцией горячей воды через тройники и полотенцесушители, выполнен расчет 10-и точек внутреннего водопровода и 8-и точек бытовой канализации.
Стоимость проекта отопления и водоснабжения дома в г. Пушкино (мкр Мамонтовка) Московской области- 28 988 руб. со скидкой 10%, проект котельной бесплатно, объем проекта 38 листов.

11 сентября 2023 года
- Информация о материале
- Просмотров: 4198














