Новости компании
Разработан проект электрики дома в Тульской области
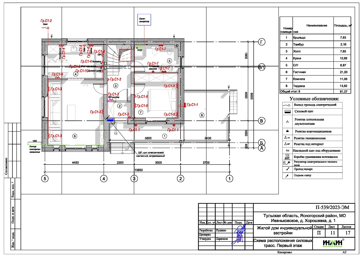
Разработан проект электрики (электропроводки) для дома площадью 126 м.кв., расположенного в д. Хорошевка Тульской области.
Проект электрики дома в д. Хорошевка Тульской области содержит следующие технические решения:
- Выполнен расчет схемы электроснабжения, электрическая мощность дома составила 16,3 кВт, с учетом коэффициента спроса 0,4, принятого согласно СП 256.1325800.2016;
- Автоматические выключатели (УЗО) в количестве 27 шт., которые размещены в распределительном щите ABB;
- Электропроводка предусмотрена скрытым способом в стенах и полу помещений дома;
- Общая протяженность скрытой электропроводки 820 метров, слаботочных линий - 25 метров.
Цена проекта электрики – 15 082 руб. со скидкой 10%, объем проекта – 17 листов.
Подробное описание выполненного проекта электрики дома в д. Хорошевка Тульской области.
Заказать проект электрики частного дома в Тульской области дистанционно.
07 ноября 2023 года
- Информация о материале
- Просмотров: 4551















