Выполненные проекты
Проект электрики дома 126 м.кв. в Тульской области
Объект: газобетонный общей площадью 126 м.кв., расположенный в д. Хорошевка Тульской области
Цена (стоимость) проекта электрики (электропроводки): 15 082 руб. со скидкой 10%, проект слаботочных кабельных линий - бесплатно.
Проект электрики выполнен: 03.11.2023
Состав проекта электрики дома в д. Хорошевка Тульской области:
1. Пояснительная записка. Общие данные по электроснабжению и освещению частного дома в д. Хорошевка Тульской области.
2. Однолинейные схемы вводного распределительного устройства и электрического распределительного щита дома 126 м.кв.
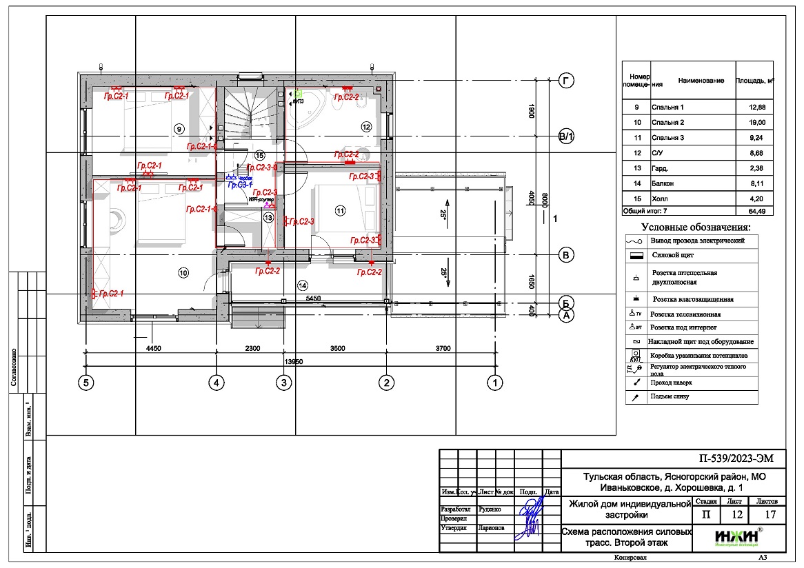
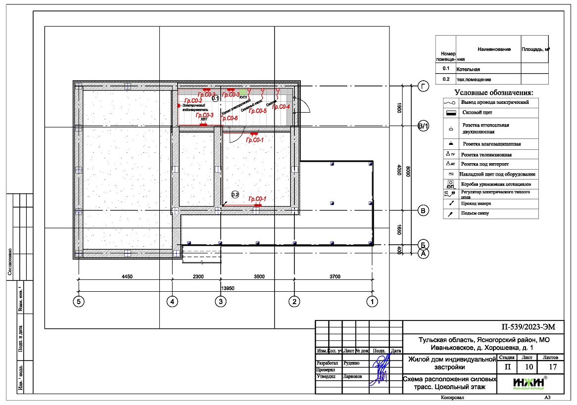
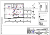
3. Чертежи электропроводки дома в д. Хорошевка Тульской области.
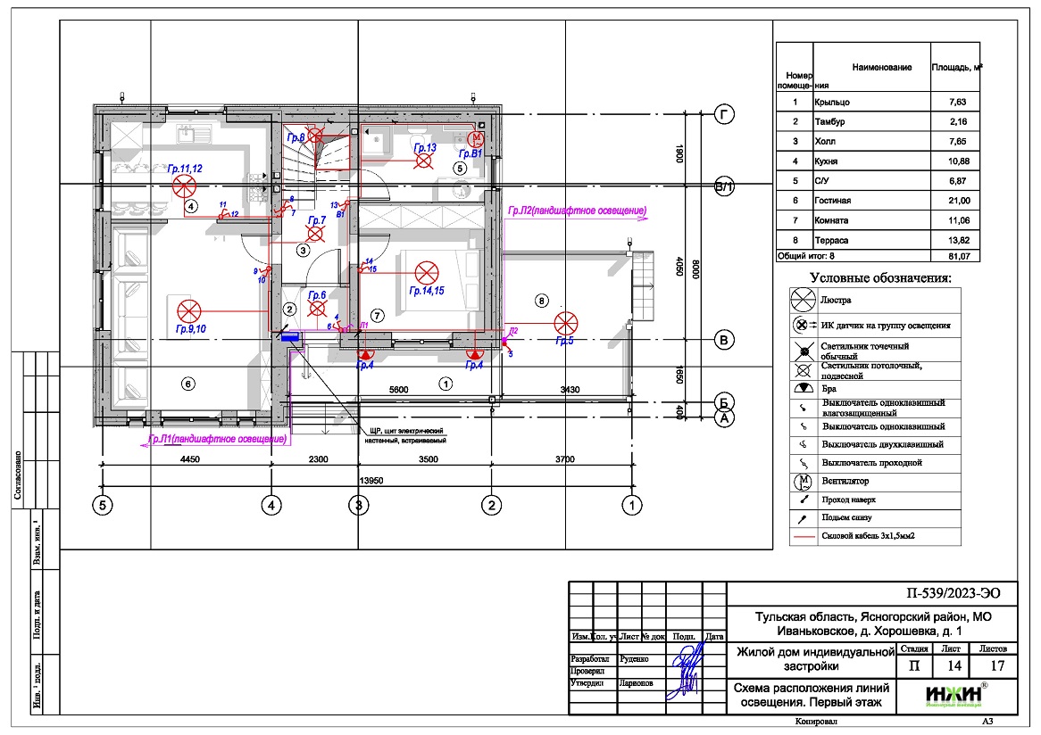
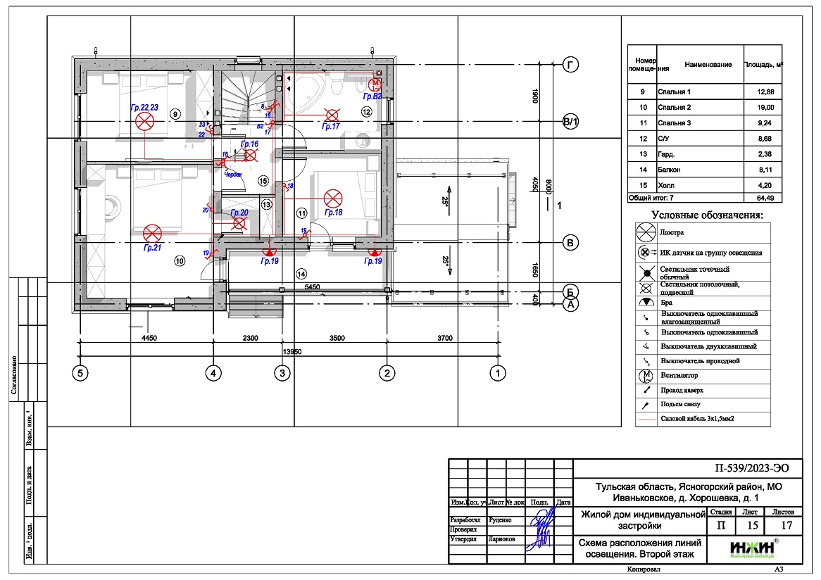
4. Чертежи групповых осветительных сетей дома в д. Хорошевка Тульской области
5. Спецификация материалов и оборудования по электрике и электропроводке дома в д. Хорошевка Тульской области.
Объем проекта электрики дома 126 м.кв.: 17 листов.
Проект электрики дома площадью 126 м.кв. в д. Хорошевка Тульской области- подробное описание.
Расчетные показатели по электроснабжению и освещению дома в д. Хорошевка Тульской области.
o Расчетная электрическая мощность дома составила 16,3 кВт, с учетом коэффициента спроса 0,4, принятого согласно СП 256.1325800.2016;
o При расчете учтено силовое оборудование: септик, газовый котел, скважинный насос, электроплита, электрический котел.
Распределительные электрические щиты дома площадью 126 м.кв.
o Проектом предусмотрен один распределительный электрический щит, расположенный в техническом помещении;
o Автоматические выключатели, дифференциальные автоматы, рубильники и УЗО в щитах – ABB, в количестве 27 шт. размещены во встраиваемом корпусе.
Силовая кабельная сеть (электропроводка) дома в д. Хорошевка Тульской области.
o Электропроводка дома предусмотрена с использованием кабелей ВВГ нг -LS с медными жилами в ПВХ-оболочке (не поддерживает горение);
o Общая протяженность линий электроснабжения и освещения – 820 метров, вводная кабельная линия - бронированный кабель 50 метров;
o Электропроводка предусмотрена скрытым способом, в конструкции пола и стен помещений;
o Запроектировано 97 точек подключения розеток и выключателей освещения в доме;
o Предусмотрены слаботочные линии ЛВС, общая протяженность - 25 метров.
Система резервного электропитания не предусмотрена.
Запроектировано применения технологии удобства - дистанционного открывания въездных ворот, калитки и включения освещения входной группы при помощи одного радиобрелка.



















