Новости компании
Выполнен проект электрики для дома в Ярославской области
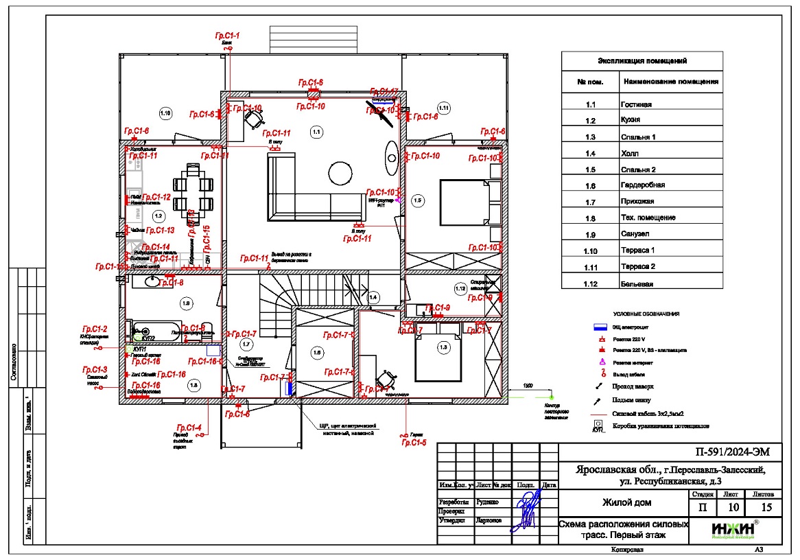
Разработан проект электрики (электропроводки) для деревянного дома площадью 201 м.кв., расположенного в г. Переславль-Залесский Ярославской области.
Проект электрики брусового дома в Переславле-Залесскомсодержит следующие технические решения:
- Выполнен расчет схемы электроснабжения, электрическая мощность дома составила 15,34 кВт, с учетом коэффициента спроса 0,43, принятого согласно СП 256.1325800.2016;
- Автоматические выключатели (УЗО) в количестве 33 шт., которые размещены в распределительном щите ABB;
- Электропроводка предусмотрена открытым способом на стенах помещений дома;
- Общая протяженность электропроводки 1520 метров, слаботочных линий - 40 метров.
Цена проекта электрики – 26 331 руб. со скидкой 10%, объем проекта – 15 листов.
Подробное описание выполненного проекта электрики дома в г. Переславль-Залесский Ярославской области.
Заказать проект электрики частного дома дистанционно.
13 сентября 2024 года
- Информация о материале
- Просмотров: 4006
Поделиться :















