Выполненные проекты
Проект электрики дома 201 м.кв. в Переславле-Залесском
Объект: деревянный дом (брус) общей площадью 201 м.кв., расположенный в г. Переславль-Залесский Ярославской области
Цена (стоимость) проекта электрики (электропроводки): 26 331 руб. со скидкой 10%, проект слаботочных кабельных линий - бесплатно.
Проект электрики выполнен: 12.09.2024
Состав проекта электрики дома в г. Переславль-Залесский Ярославской области:
1. Пояснительная записка. Общие данные по электроснабжению и освещению частного дома в Переславле-Залесском.
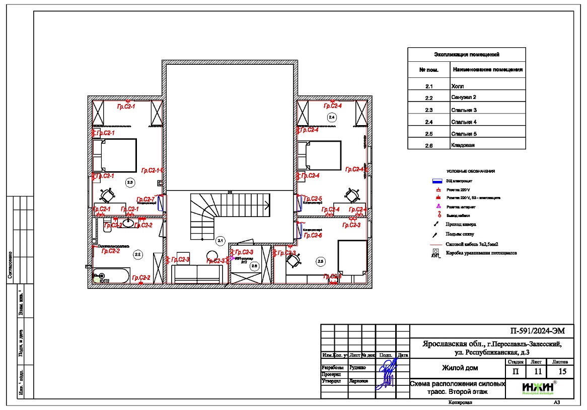
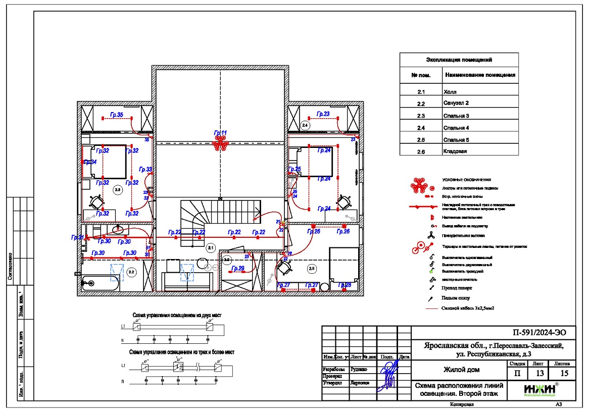
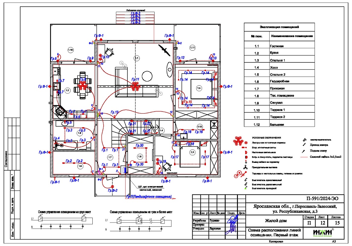
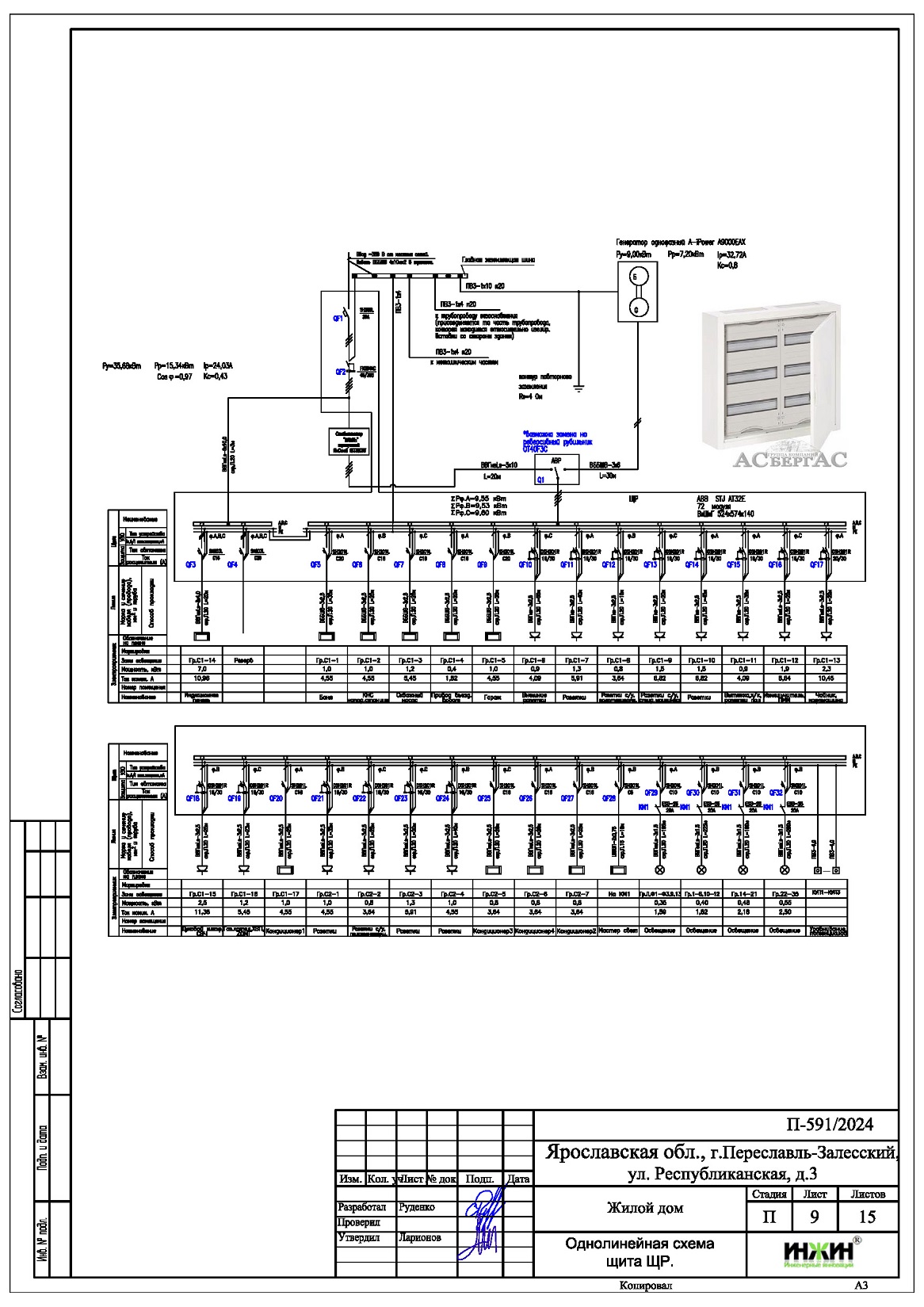
2. Однолинейные схемы вводного распределительного устройства и электрического распределительного щита дома 201 м.кв.
3. Чертежи электропроводки дома в Переславле-Залесском.
4. Чертежи групповых осветительных сетей дома в Переславле-Залесском.
5. Спецификация материалов и оборудования по электрике и электропроводке дома в Переславле-Залесском.
Объем проекта электрики дома 201 м.кв.: 15 листов.
Проект электрики дома площадью 201 м.кв. в Переславле-Залесском- подробное описание.
Расчетные показатели по электроснабжению и освещению дома в Переславле-Залесском.
o Расчетная электрическая мощность дома составила 15,34 кВт, с учетом коэффициента спроса 0,43, принятого согласно СП 256.1325800.2016;
o При расчете учтено силовое оборудование: септик, газовый котел, скважинный насос, кондиционеры и электрические полотенцесушители.
Распределительные электрические щиты дома площадью 201 м.кв.
o Проектом предусмотрен один распределительный электрический щит, расположенный в прихожей;
o Автоматические выключатели, дифференциальные автоматы, рубильники и УЗО в щитах – ABB, в количестве 33 шт. размещены в пристраиваемом корпусе.
Силовая кабельная сеть (электропроводка) дома в Переславле-Залесском.
o Электропроводка дома предусмотрена с использованием кабелей ВВГ нг -LS с медными жилами в ПВХ-оболочке (не поддерживает горение);
o Общая протяженность линий электроснабжения и освещения – 1520 метров, вводная кабельная линия - бронированный кабель 130 метров;
o Электропроводка предусмотрена открытым способом, в гофротрубах;
o Запроектировано 150 точек подключения розеток и выключателей освещения в доме;
o Предусмотрены слаботочные линии ЛВС, общая протяженность - 40 метров.
Предусмотрена система резервного электропитания с использованием однофазного генератора A-iPower.



















