Новости компании
Выполнен проект электрики для дома в Южно-Сахалинске
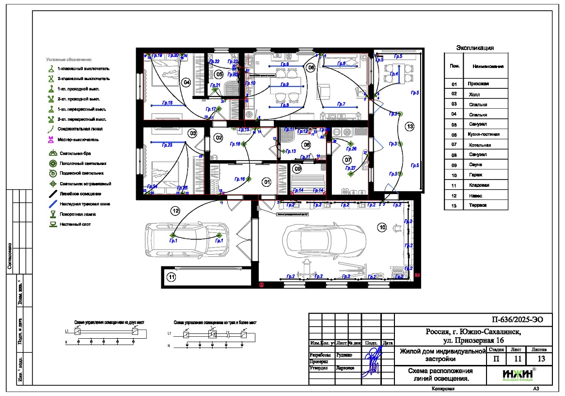
Разработан проект электрики (электропроводки) для газобетонного дома площадью 153м.кв., расположенного в Южно-Сахалинске.
Проект электрики газобетонного дома в Южно-Сахалинскесодержит следующие технические решения:
- Выполнен расчет схемы электроснабжения, электрическая мощность дома составила 15,73 кВт, с учетом коэффициента спроса 0,3 принятого согласно СП 256.1325800.2016;
- Автоматические выключатели (УЗО) в количестве 35 шт., которые размещены в распределительном щите ABB;
- Электропроводка предусмотрена скрытым способом на стенах и стяжке пола;
- Общая протяженность электропроводки 890 метров, слаботочных линий - 150 метров.
Цена проекта электрики – 19 967руб. со скидкой 10%, объем проекта – 13 листов.
Подробное описание выполненного проекта электрики дома в Южно-Сахалинске.
Заказать проект электрики частного дома дистанционно.
26 февраля 2025 года
- Информация о материале
- Просмотров: 3769
Поделиться :















