Выполненные проекты
Проект электрики дома в Южно-Сахалинске (153 м.кв.)
Объект: газобетонный дом общей площадью 153 м.кв., расположенный в г. Южно-Сахалинск
Цена (стоимость) проекта электрики (электропроводки): 19 967 руб. со скидкой 10%, проект слаботочных кабельных линий - бесплатно.
Проект электрики выполнен: 25.02.2025
Состав проекта электрики дома в Южно-Сахалинске:
1. Пояснительная записка. Общие данные по электроснабжению и освещению частного дома в Южно-Сахалинске.
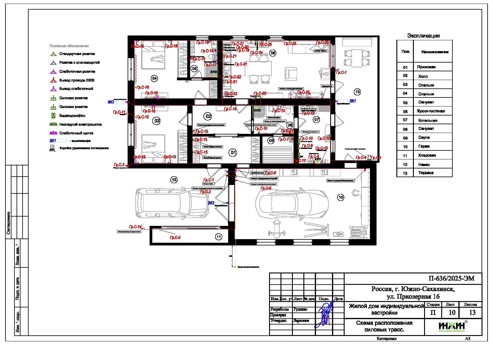
2. Однолинейные схемы вводного распределительного устройства и электрического распределительного щита дома 153 м.кв.
3. Чертежи электропроводки дома в Южно-Сахалинске.
4. Чертежи групповых осветительных сетей дома в Южно-Сахалинске.
5. Спецификация материалов и оборудования по электрике и электропроводке дома в Южно-Сахалинске.
Объем проекта электрики дома 153 м.кв.: 13 листов.
Проект электрики дома площадью 153 м.кв. в Южно-Сахалинске- подробное описание.
Расчетные показатели по электроснабжению и освещению дома в Южно-Сахалинске.
o Расчетная электрическая мощность дома составила 15,73 кВт, с учетом коэффициента спроса 0,3, принятого согласно СП 256.1325800.2016;
o При расчете учтено силовое оборудование: септик, газовый котел, электрический котел, скважинный насос, электрическая варочная поверхность, зарядка электромобиля.
Распределительные электрические щиты дома площадью 153 м.кв.
o Проектом предусмотрен один распределительный электрический щит, расположенный в гараже;
o Автоматические выключатели, дифференциальные автоматы, рубильники и УЗО в щитах – ABB, в количестве 35 шт. размещены во встраиваемом корпусе.
Силовая кабельная сеть (электропроводка) дома в Южно-Сахалинске.
o Электропроводка дома предусмотрена с использованием кабелей ВВГ нг -LS с медными жилами в ПВХ-оболочке (не поддерживает горение);
o Общая протяженность линий электроснабжения и освещения – 890 метров, вводная кабельная линия - бронированный кабель 55 метров;
o Электропроводка предусмотрена скрытым способом, в конструкции пола и стен помещений;
o Запроектировано 110 точек подключения розеток и выключателей освещения в доме;
o Предусмотрены слаботочные линии локальной вычислительной сети (ЛВС), общая протяженность - 150 метров.
Система резервного электропитания - с использованием инвертора CyberPower CPS 3500 PRO с АКБ.
















