Новости компании
Проект электрики выполнен для дома в Богородском г.о.
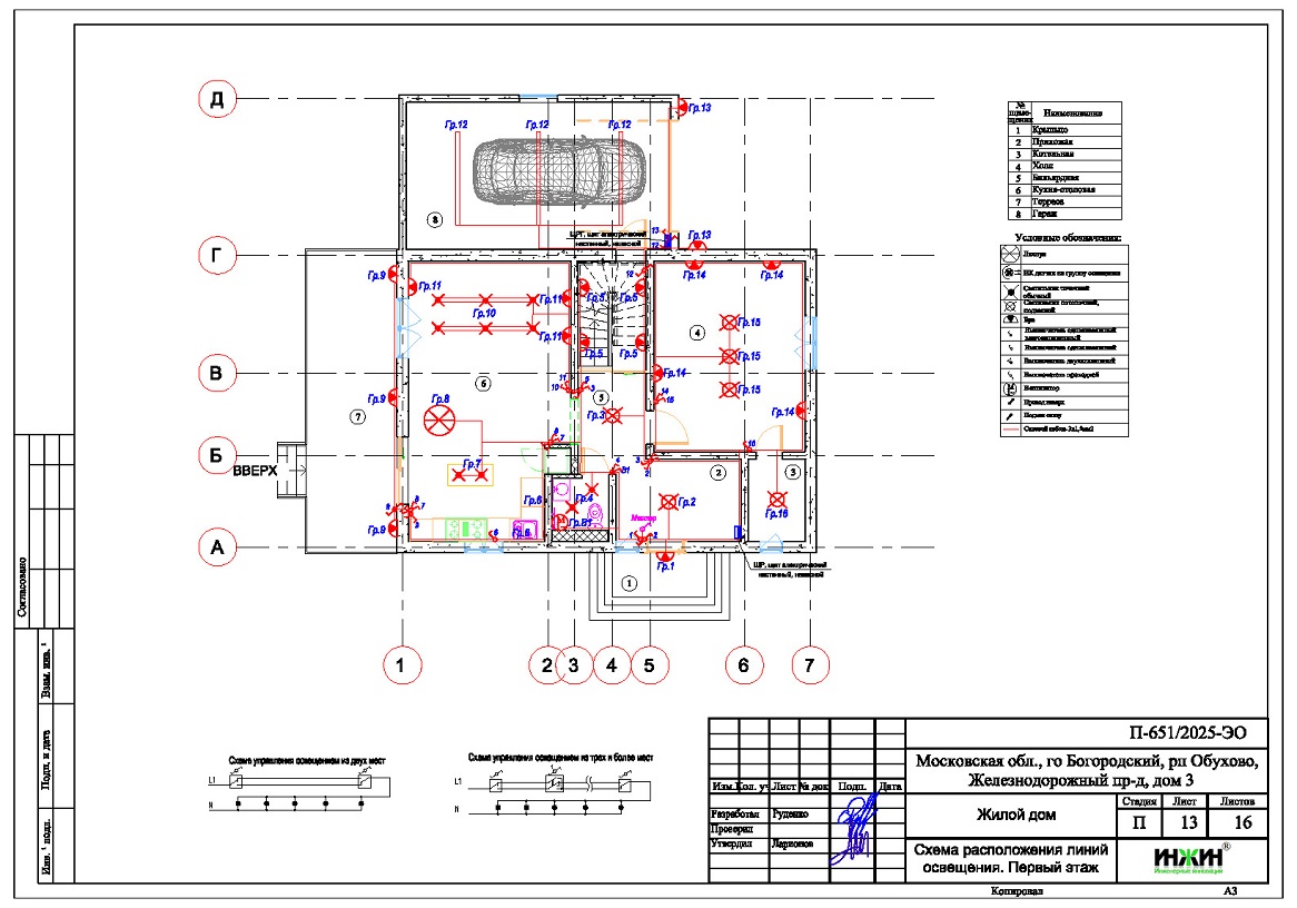
Разработан проект электрики (электропроводки) для газобетонного дома площадью 164м.кв., расположенного в рп Обухово Богородского г.о. Московской областисодержит следующие технические решения:
- Выполнен расчет схемы электроснабжения, электрическая мощность дома составила 19,81 кВт, с учетом коэффициента спроса 0,45 принятого согласно СП 256.1325800.2016;
- Автоматические выключатели (УЗО) в количестве 37 шт., которые размещены в двух распределительных щитах ABB;
- Электропроводка предусмотрена скрытым способом на стенах и стяжке пола;
- Общая протяженность электропроводки 1135 метров, слаботочных линий - 180 метров.
Резервное электропитание предусмотрено с использованием солнечной электростанции «Дом - 4» (Независимость+Экономия) GSS-DOM-4, 6000VA/4200W.
Цена проекта электрики – 21 402руб. со скидкой 10%, объем проекта – 16 листов.
Подробное описание выполненного проекта электрики дома в рп Обухово Богородского г.о.
Заказать проект электрики частного дома дистанционно.
07 ноября 2025 года
- Информация о материале
- Просмотров: 4240















