Выполненные проекты
Электрика газоблочного дома 164 м.кв. в Обухово, проект
Объект: газобетонный дом общей площадью 164 м.кв., расположенный в рп Обухово Богородского г.о. Московской области
Цена (стоимость) проекта электрики (электропроводки): 21 402 руб. со скидкой 10%, проект слаботочных кабельных линий - бесплатно.
Проект электрики выполнен: 06.11.2025
Состав проекта электрики дома в рп Обухово Богородского г.о.:
1. Пояснительная записка. Общие данные по электроснабжению и освещению частного дома в рп Обухово Богородского г.о.
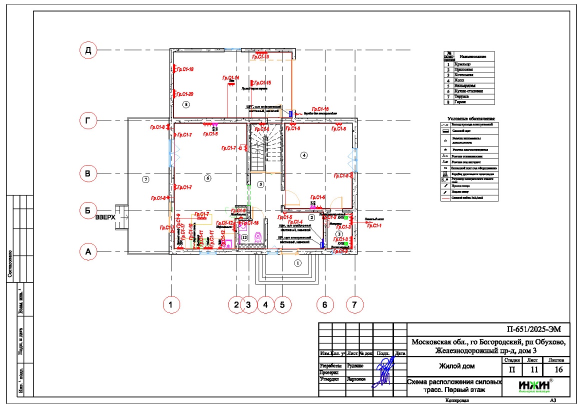
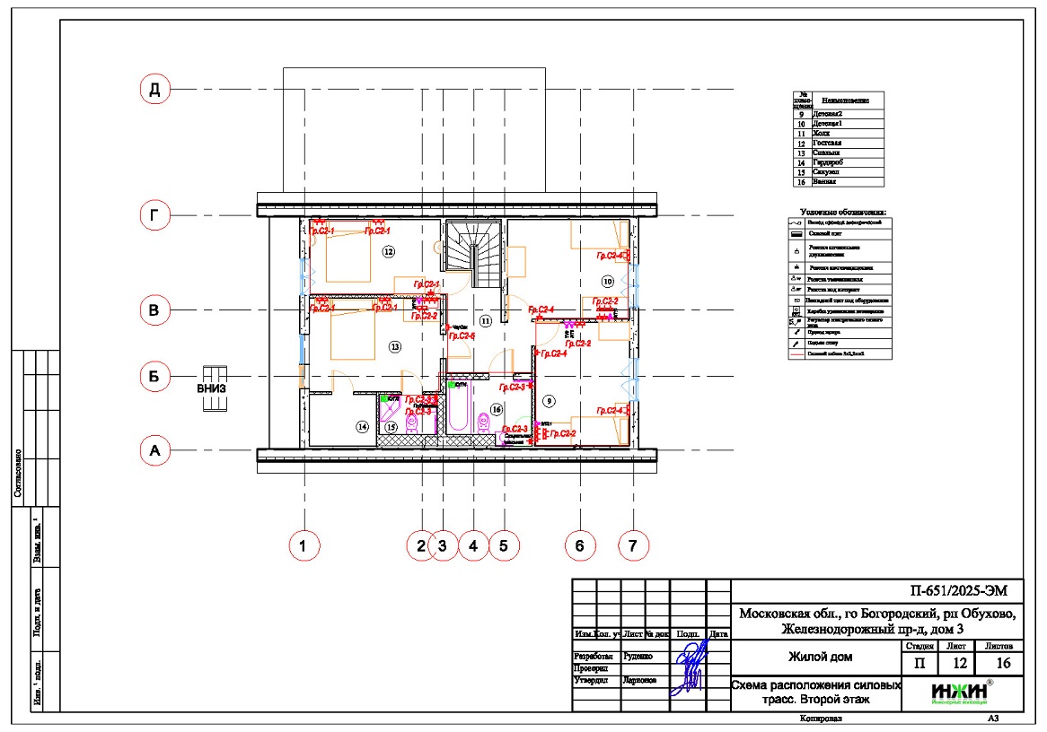
2. Однолинейные схемы вводного распределительного устройства и электрического распределительного щита дома 164.
4. Чертежи групповых осветительных сетей дома в рп Обухово Богородского г.о.
5. Спецификация материалов и оборудования по электрике и электропроводке дома в рп Обухово Богородского г.о.
Объем проекта электрики дома 164 м.кв.: 16 листов.
Проект электрики дома площадью 164 м.кв. в рп Обухово Богородского г.о.- подробное описание.
Расчетные показатели по электроснабжению и освещению дома в рп Обухово Богородского г.о.
o Расчетная электрическая мощность дома составила 19,81 кВт, с учетом коэффициента спроса 0,45, принятого согласно СП 256.1325800.2016;
o При расчете учтено силовое оборудование: септик, газовый котел, скважинный насос, кондиционеры.
Распределительные электрические щиты дома площадью 164 м.кв.
o Проектом предусмотрено два распределительных электрических щита, по одному на этаж;
o Автоматические выключатели, дифференциальные автоматы, рубильники и УЗО в щитах – ABB, в количестве 37 шт. размещены в пристраиваемом корпусе.
Силовая кабельная сеть (электропроводка) дома в рп Обухово Богородского г.о.
o Электропроводка дома предусмотрена с использованием кабелей ВВГ нг -LS с медными жилами в ПВХ-оболочке (не поддерживает горение);
o Общая протяженность линий электроснабжения и освещения – 1135 метров, вводная кабельная линия - бронированный кабель 15 метров;
o Электропроводка предусмотрена скрытым способом, в конструкции пола и стен помещений;
o Запроектировано 136 точек подключения розеток и выключателей освещения в доме;
o Предусмотрены слаботочные линии телевидения и ЛВС, общая протяженность - 180 метров.
Система резервного электропитания предусмотрена с использованием солнечной электростанции «Дом - 4»
(Независимость+Экономия) GSS-DOM-4, 6000VA/4200W.



















