Выполненные проекты
Проект отопления таунхауса площадью 220 м.кв.
Проект отопления, водоснабжения и канализации выполнен: 18.02.2014
Объект: таунхаус площадью 220 м.кв. в КП Сабурово Парк Московской области
Вариант отопления: «Комфортный»
Стоимость проекта отопления: 44 200 руб. (проект котельной бесплатно).
Состав проекта отопления, водоснабжения и канализации:
1. Пояснительная записка. Общие данные по отоплению, водоснабжению и канализации.
2. Тепломеханическая схема котельной с размещением оборудования.
3. Комплект чертежей радиаторного отопления.
4. Комплект чертежей водяного теплого пола.
5. Комплект чертежей внутреннего водопровода и канализации.
6. Теплотехнический расчет отопления.
7. Спецификация оборудования систем отопления, водопровода и канализации.
Объем проекта отопления, водоснабжения и канализации: 44 листа
Основные проектные решения, в соответствие с заданием Заказчика.
Котельная (проект котельной бесплатно).
o Котел – настенный газовый Viessmann Vitopend 111 мощностью 30 кВт (в наличии);
o Контуры котельной – отопление дома, горячее водоснабжение, теплый пол и теплоснабжение вентустановки, предусмотрен коллектор Meibes с насосными группами;
o Приготовление горячей воды обеспечивается при помощи бойлера Reflex, объемом 150 литров;
o Расширительные баки отопления и водоснабжения Reflex;
o Насосное оборудование Grundfos;
o Трубы дымоходные – пластиковые, реализованы на объекте;
o Автоматика котельной – Vaillant calorMATIC 630/3, программируемый пульт дистанционного управления с датчиком комнатной температуры Vaillant VR 90/3.
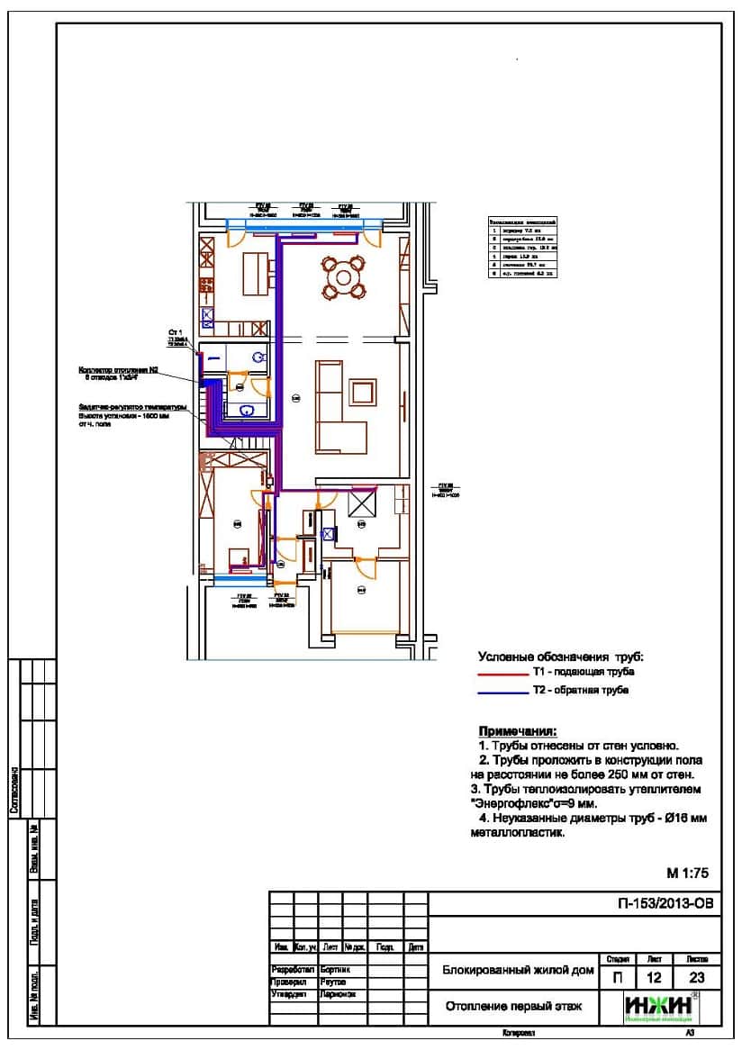
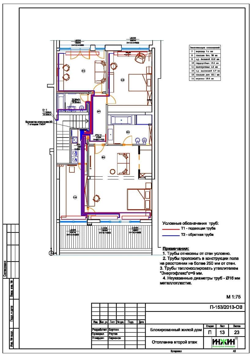
Отопление таунхауса.
o Отопление запроектировано на базе стальных панельных радиаторов Kermi FTVс нижней подводкой и встроенных в пол конвекторов Licon без вентиляторов;
o Схема радиаторного отопления двухтрубная, коллекторная, с принудительной циркуляцией теплоносителя;
o Предусмотрена возможность реализации регулировки температуры воздуха в отдельных помещениях с помощью радиаторных термостатов;
o Запроектирована скрытая прокладка трубопроводов отопления в выравнивающей стяжке пола;
o Температурный график отопления 80/60° С;
o Трубопроводы отопления: магистрали полипропилен Valtec, подводящие металлопластик Valtec.
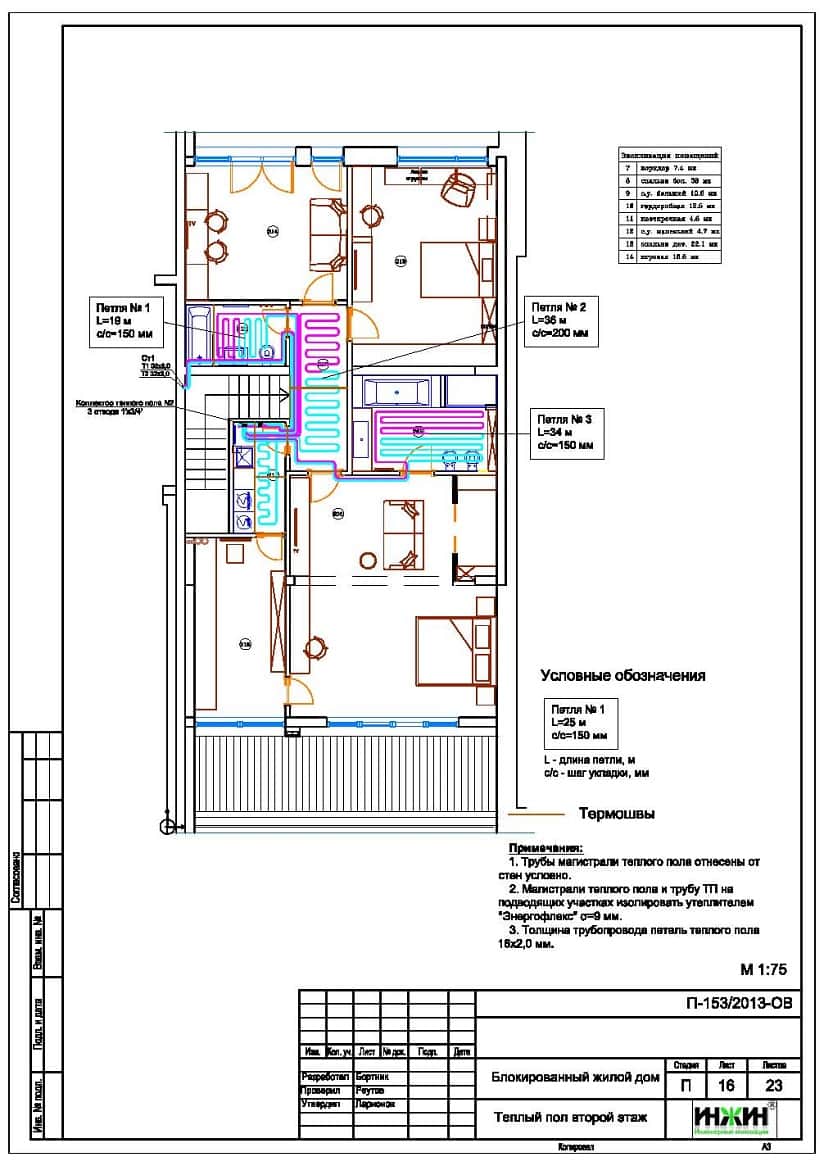
Теплый пол водяной.
o Теплый пол предусмотрен на площади 140 м.кв.;
o Трубопроводы теплого пола – металлопластик Valtec;
o Температурный график теплого пола 40/35ºС.
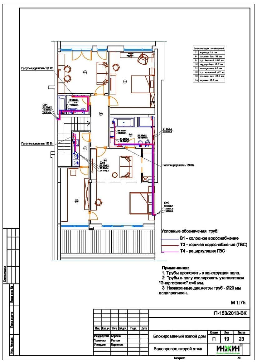
Внутренний водопровод.
o Схема внутреннего водоснабжения – тройниковая;
o Трубопроводы системы водоснабжения – армированный полипропилен Valtec;
o В системе горячего водоснабжения предусмотрена рециркуляция горячей воды.
Внутренняя канализация.
o Предусмотрен безнапорный отвод стоков от санитарно-технических приборов;
o Трубопроводы канализации – полипропилен Синикон (Россия).
|
|



















