Выполненные проекты
Проект электрики таунхауса площадью 220 м.кв.
Проект электрики выполнен: 18.02.2014
Объект: таунхаус площадью 220 м.кв. в Московской области
Цена проекта электрики: 24 200 руб.
Состав проекта электрики частного дома:
Пояснительная записка. Общие данные по электроснабжению и освещению таунхауса.
Однолинейные схемы вводного распределительного устройства и поэтажных распределительных щитов.
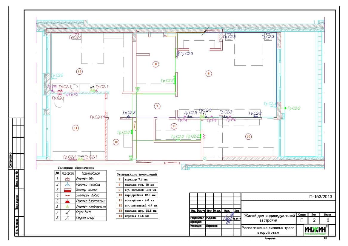
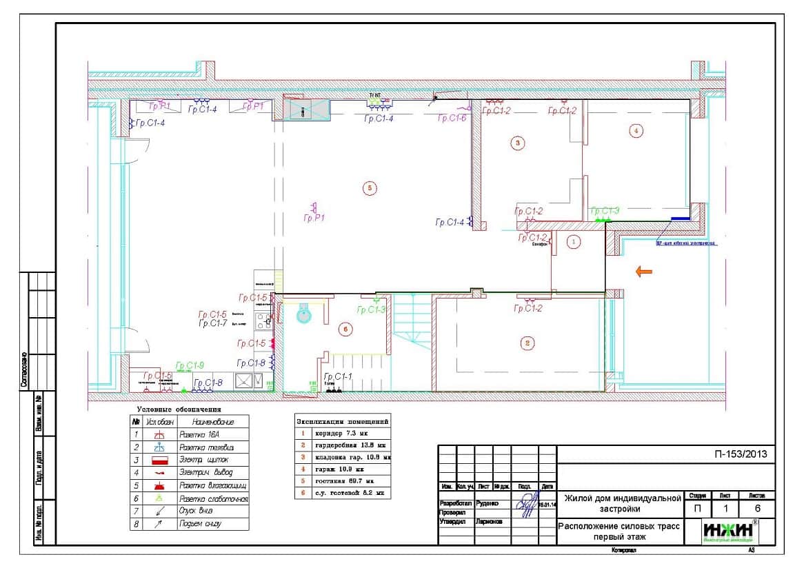
Поэтажные планы силовых электрических сетей.
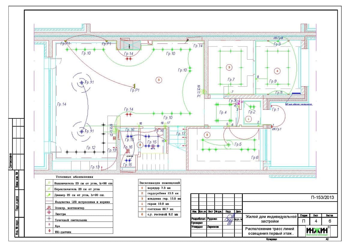
Планы групповых осветительных сетей 1 и 2 этажей.
Схема системы уравнивания потенциалов.
Спецификация материалов и оборудования.
Объем проекта электрики: 16 листов.
Основные технические решения проекта электроснабжения и освещения (электрики), в соответствии с заданием Заказчика.
Электрощит.
o Проектом предусмотрен один щит, оснащенных 29-ю автоматами;
o Автоматические выключатели, дифференциальные автоматы и УЗО в щитах - Hager;
o Корпус щита - ABB.
Электропроводка (проект кабельных силовых сетей).
o Проектом предусмотрено использование кабелей ВВГ нг -LS (Конкорд) с медными жилами в ПВХ-оболочке;
o Общая протяженность линий электроснабжения и освещения – 3 350 метров;
o Прокладка силовых линий предусмотрена скрытым способом, в пластиковой гофротрубе;
o Для системы телевидения предусмотрен кабельные трассы с использованием кабеля SAT 703.
Заказать проект электрики таунхауса.
|
|
Для этого таунхауса разработан проект отопления, водоснабжения и канализации |




















