Выполненные проекты
Проект электрики дома площадью 177 м.кв. в г. Иваново
Проект электрики (электроснабжения и освещения): выполнен 19.03.2014
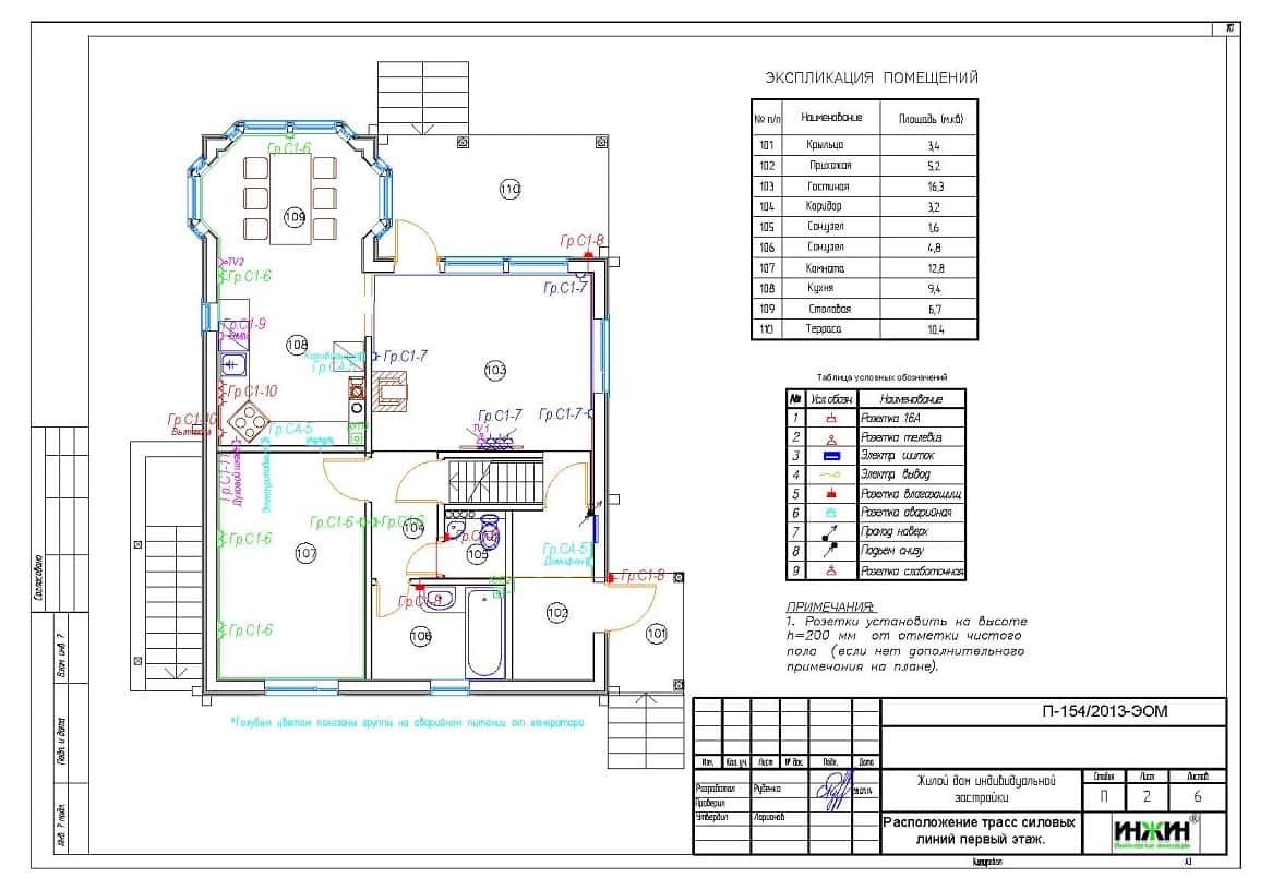
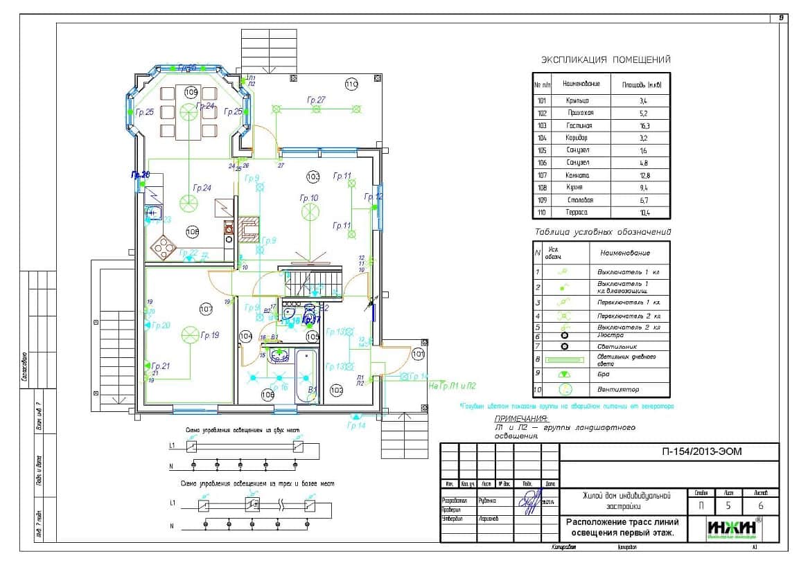
Объект: жилой дом индивидуальной застройки площадью 177 кв.м. в г. Иваново
Цена проекта электрики: 19 470 руб.
Состав проекта электрики:
1. Пояснительная записка. Общие данные по электроснабжению частного дома.
2. Однолинейные схемы вводного распределительного устройства и поэтажных распределительных щитов.
3. Поэтажные планы силовых электрических сетей (электропроводки).
4. Поэтажные планы групповых осветительных сетей.
5. Схема системы уравнивания потенциалов.
6. Молниезащита.
7. Спецификация материалов и оборудования по электрике и слаботочке.
Объем проекта электрики: 17 листов.
Основные технические решения проекта электрики, в соответствии с заданием Заказчика.
Расчетные показатели по электроснабжению.
o Расчетная электрическая мощность дома составила 12,55 кВт, с учетом коэффициента спроса 0,55, принятого согласно СП 256.1325800.2016;
o При расчете учтено силовое оборудование: котельная, резервный электрический котел (9 кВт);
o Мощность потребителей резервного электропитания составила 6 кВт.
Электрический щит.
o Проектом предусмотрен 1 электрический распределительный щит, оснащенный 34-мя автоматами (включая группы аварийного питания);
o Автоматические выключатели, дифференциальные автоматы и УЗО в щитах - Hager;
o Корпус щита - Hager.
Силовая кабельная сеть (проект электропроводки) и слаботочные трассы.
o Проектом предусмотрено использование кабелей ВВГ нг -LS (Конкорд) с медными жилами в ПВХ-оболочке;
o Общая протяженность линий электроснабжения и освещения – 2 068 метров;
o Прокладка силовых линий предусмотрена скрытым способом, в гофротрубе.

Резервное электропитание.
Проектом предусмотрено резервное электропитание, к которому подключены:
o Скважинный насос и септик;
o Домофон и сигнализация;
o Группы дежурного освещения;
o Холодильник;
o Привод въездных ворот;
o Газовый котел и насосное оборудование.
На вводе в здание проектом предусмотрена система уравнивания потенциалов.
Предусмотрена система заземления и молниезащиты. Молниеприемник запроектирован из стальной проволоки диаметром не менее 8мм.
|
|
Для этого дома разработан проект отопления, водоснабжения и канализации |

















