Выполненные проекты
Проект отопления, водоснабжения дома в г. Иваново
Проект отопления, водоснабжения и канализации выполнен: 19.03.2014
Объект: двухэтажный жилой дом площадью 177 кв.м. в г. Иваново
Вариант отопления: «Комфортный»
Стоимость проекта отопления: 28 150 руб. (проект котельной – бесплатно)
Состав проекта отопления, водоснабжения и канализации:
1. Пояснительная записка. Общие данные по отоплению, индивидуальной котельной, водопроводу и канализации.
2. Теплотехнический расчет отопления.
3. Тепломеханическая схема котельной с размещением оборудования.
4. Комплект чертежей радиаторного отопления жилого дома.
5. Комплект чертежей водяного теплого пола.
6. Комплект чертежей внутреннего водопровода и канализации жилого дома.
7. Схема системы канализации (аксонометрия).
8. Спецификация материалов и оборудования по котельной, системам отопления, водоснабжения и канализации.
Объем проекта: 42 листа.
Основные проектные решения, принятые в проекте отопления, водоснабжения и канализации, в соответствие с заданием Заказчика.
Котельная частного дома (проект котельной бесплатно).
o На базе настенного газового котла Vaillant turboTEC plus мощностью 32 кВт с закрытой камерой сгорания;
o Контуры котельной – отопление дома, водяной теплый пол и горячее водоснабжение (бойлер);
o Приготовление горячей воды при помощи бойлера Reflex AF200, объемом 200 литров;
o Расширительные баки отопления и водоснабжения Reflex;
o Насосное оборудование для отопления, теплого пола и водопровода Grundfos;
o Трубы дымоходные Vaillant, пластиковые, коаксиальные, в исполнении «через стену»;
o Распределительная гребенка с насосно-смесительными узлами Meibes;
o Автоматика котельной – основной блок Vaillant calorMATIC 630/3, задатчик-регулятор температуры в помещении Vaillant VR 90/3.
Автоматизация (вариант «Комфортный»).
o Автоматическое регулирование отопления по наружной температуре (погодное регулирование) и температуре в помещении;
o Автоматическое поддержание заданной температуры в контурах отопления, теплого пола и горячего водоснабжения.
Система отопления (проект отопления).
o Отопление дома радиаторное, использованы панельные радиаторы Kermi с нижней подводкой;
o Схема радиаторного отопления коллекторно-лучевая, с принудительной циркуляцией теплоносителя;
o Температурный график отопления 80/60°С;
o Трубопроводы отопления – сшитый полиэтилен Rehau RAUTITAN flex.
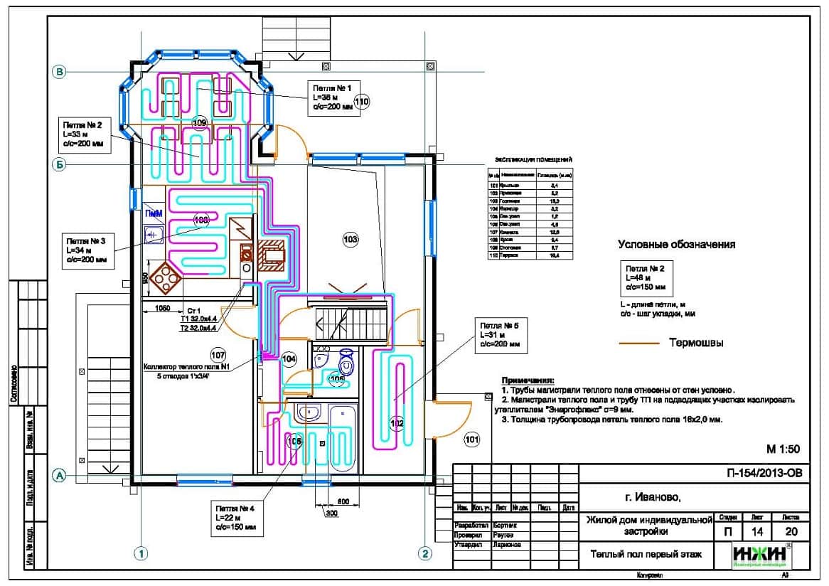
Водяной теплый пол.
Водяной теплый пол спроектирован на площади 32 м.кв.
Теплоснабжение теплого пола запроектировано отдельным контуром котельной. Трубопроводы теплого пола - сшитый полиэтилен Rehau.
Основание теплого пола – маты из ламинированного пенополистирола «Формат FT40/20L».
Регулирование температуры теплого пола – общее, контуром котельной.

Водяные полотенцесушители.
Источником теплоснабжения полотенцесушителей принят контур рециркуляции бытовой горячей воды. Модели полотенцесушителей в проекте не указывались, в тепловом расчете учитывалась теплоотдача 150 Вт от каждого полотенцесушителя.
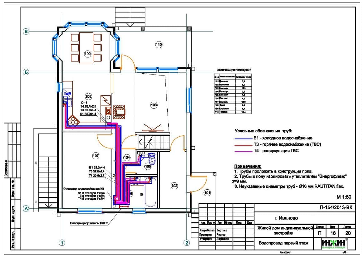
Внутренний водопровод.
o Схема внутреннего водоснабжения коллекторно-лучевая;
o Трубопроводы системы водоснабжения – сшитый полиэтилен Rehau RAUTITAN flex;
o В системе горячего водоснабжения предусмотрена рециркуляция горячей воды.
Внутренняя канализация.
o Предусмотрен безнапорный отвод стоков от санитарно-технических приборов;
o Трубопроводы канализации – полипропилен Синикон (Россия).
|
|
Для этого дома разработан проект электрики |

















