Выполненные проекты
Проект электрики загородного дома площадью 172 м.кв.
Объект: загородный дом индивидуальной застройки площадью 172 кв.м. в Московской области
Цена проекта электрики: 18 920 руб.
Проект электрики и освещения выполнен: 22.04.2014
Состав проекта электрики частного дома в Московской области:
Пояснительная записка. Общие данные по электроснабжению и освещению частного дома
Однолинейные схемы вводного распределительного устройства и поэтажных распределительных щитов.
Поэтажные планы силовых электрических сетей (электропроводка).
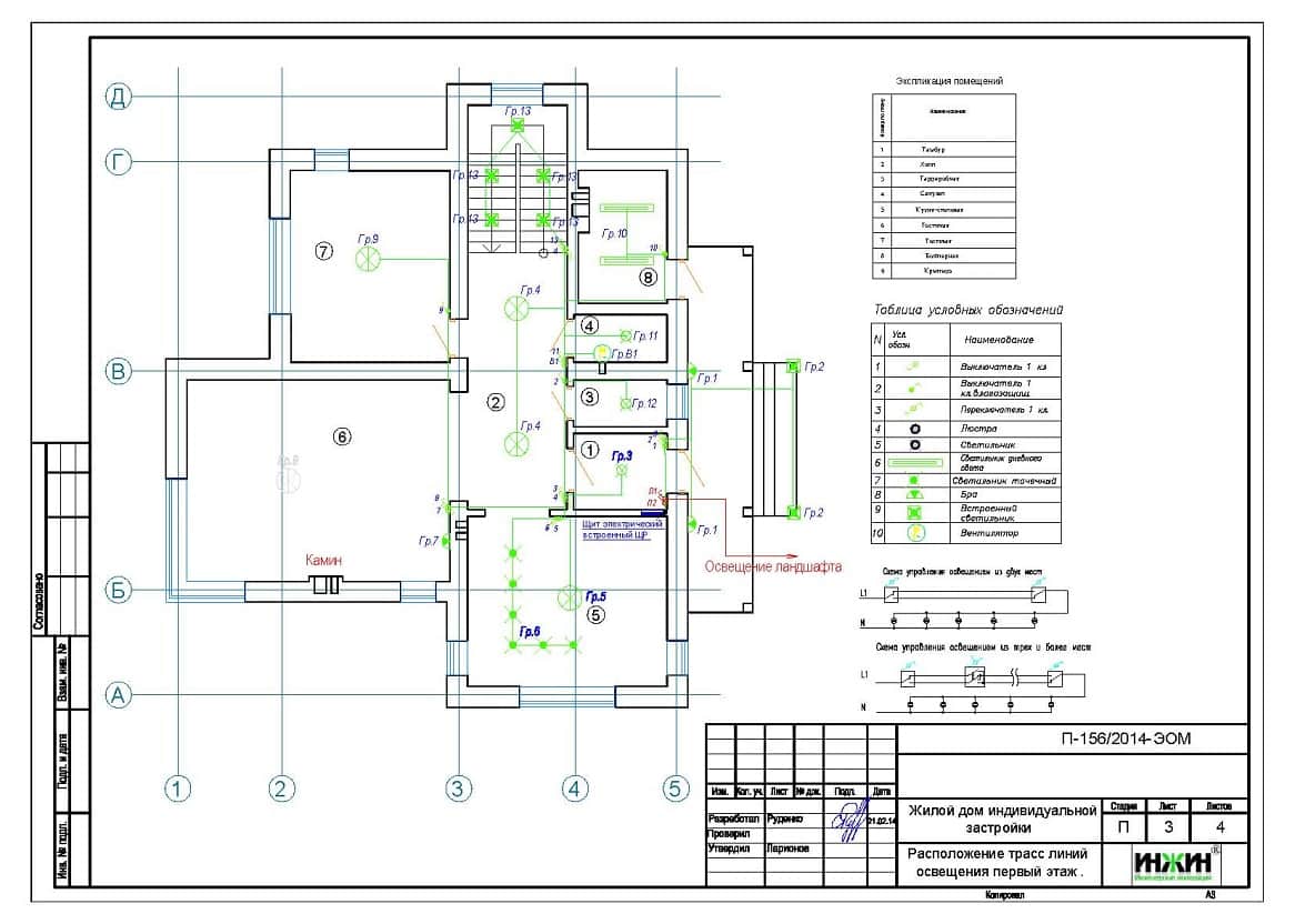
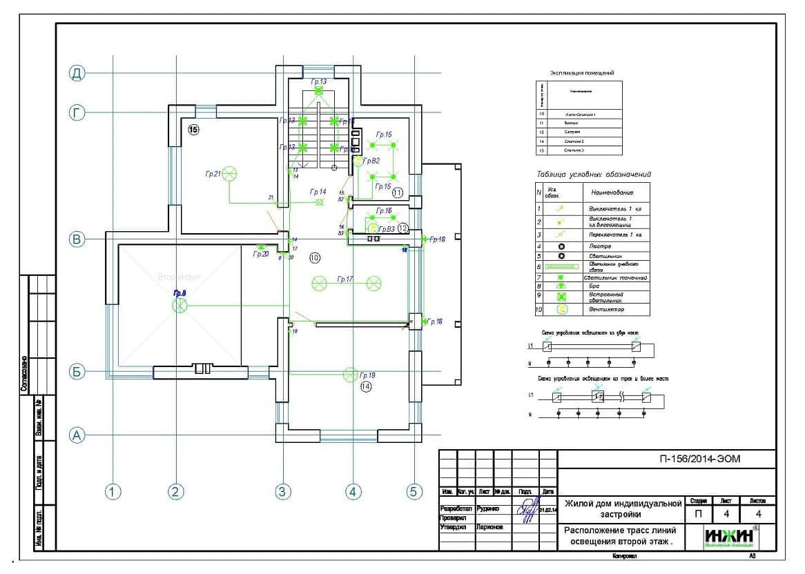
Поэтажные планы групповых осветительных сетей.
Схема системы уравнивания потенциалов.
Спецификация материалов и оборудования по электрике частного дома.
Объем проекта: 15 листов.
Основные технические решения проекта электроснабжения и освещения (электрики), в соответствии с заданием Заказчика.
Щит электрический распределительный.
o Проектом предусмотрен один щит на весь дом, оснащенный 30-ю автоматами (включая группы аварийного питания);
o Автоматические выключатели, дифференциальные автоматы и УЗО в щитах - Hager;
o Корпус щита - АВВ.
Электрические кабельные линии (электропроводка).
o Проектом предусмотрено использование кабелей ВВГ нг -LS (Конкорд) с медными жилами в ПВХ-оболочке;
o Общая протяженность линий электроснабжения и освещения – 2 750 метров;
o Прокладка силовых линий предусмотрена скрытым способом, в гофротрубе.
Резервное электропитание.
Проектом предусмотрено резервное электропитание, к которому подключены:
o Оборудование котельной;
o Сигнализация;
o Септик;
o Холодильник;
o Привод въездных ворот;
На вводе в здание проектом предусмотрена система уравнивания потенциалов.
Предусмотрена система заземления.
|
|
Для этого дома разработан проект отопления, водоснабжения и канализации |














