Выполненные проекты
Проект отопления, водоснабжения и канализации дома площадью 172 м.кв.
Объект: частный дом индивидуальной застройки площадью 172 м.кв. в пос. Октябрьский Московской области
Вариант отопления дома: «Комфортный».
Цена проекта отопления, водоснабжения и канализации: 27 760 руб., проект котельной бесплатно.
Проект отопления дома выполнен: 22.04.2014
Состав проекта отопления, водоснабжения и канализации.
Пояснительная записка. Общие данные по отоплению дома, котельной, водопроводу и канализации.
Теплотехнический расчет отопления дома.
Тепломеханическая схема частной котельной с размещением оборудования.
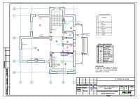
Комплект чертежей радиаторного отопления дома.
Комплект чертежей водяного теплого пола.
Комплект чертежей внутреннего водопровода и канализации.
Спецификация оборудования котельной, систем отопления, водоснабжения и канализации.
Объем проекта: 40 листов.
Основные технические решения проекта отопления, водоснабжения и канализации, принятые в соответствии с заданием Заказчика.
Котельная (проект котельной бесплатно).
o На базе напольного газового котла Buderus Logano G124WS мощностью 32 кВт, работающего на сжиженном газе;
o Контуры котельной – отопление дома, горячее водоснабжение и теплоснабжение гаража ( резерв);
o Приготовление горячей воды при помощи бойлера Reflex, объемом 200 литров;
o Расширительные баки отопления и водоснабжения Reflex;
o Насосы отопления и теплого пола Grundfos;
o Трубы дымоходные из нержавеющей стали Rosinox;
o Распределительная гребенка с насосно-смесительными узлами Meibes;
o Автоматика котельной – основной блок Buderus.
Автоматизация котельной (вариант «Комфортный»).
o Автоматическое регулирование отопления по наружной температуре (погодное регулирование) и температуре в помещении;
o Автоматическое поддержание заданной температуры в контурах отопления, теплого пола и горячего водоснабжения.
Система отопления частного дома.
o Отопление дома радиаторное, использованы стальные панельные конвекторы Kermi FTV с нижним подключением, а также конвекторы, встроенные в пол Kampmann;
o Схема радиаторного отопления коллекторно-лучевая с принудительной циркуляцией теплоносителя;
o Температурный график отопления 80/60° С;
o Трубопроводы отопления – сшитый полиэтилен Rehau RAUTITAN flex.
Водяной теплый пол (проект теплого пола).
Теплые полы проектом предусмотрены на площади 12 м.кв.
Трубопроводы теплого пола - сшитый полиэтилен Rehau RAUTITAN S.
Теплый пол спроектирован на рециркуляции ГВС.
Водяные полотенцесушители.
Источником теплоснабжения полотенцесушителей принят контур рециркуляции бытовой горячей воды.
Внутреннее водоснабжение дома.
o Схема внутреннего водоснабжения – тройниковая тупиковая;
o Трубопроводы системы водоснабжения – сшитый полиэтилен Rehau RAUTITAN flex;
o В системе горячего водоснабжения предусмотрена рециркуляция горячей воды.
Внутренняя канализация частного дома.
o Предусмотрен безнапорный отвод стоков от санитарно-технических приборов;
o Трубопроводы канализации – полипропилен Синикон (Россия).
|
|














