Выполненные проекты
Проект отопления, водоснабжения и канализации таунхауса площадью 486 м.кв.
![]() |
![]() |
![]() |
![]() |
![]() |
![]() |
Объект: таунхаус площадью 486 кв.м. в Московской области
Вариант отопления: «Комфортный»
Стоимость проекта отопления: 86 060 руб. (проект котельной – бесплатно)
Проект отопления, водоснабжения и канализации выполнен: 01.07.2014
Состав проекта отопления, водоснабжения и канализации:
1. Пояснительная записка. Общие данные по отоплению.
2. Теплотехнический расчет отопления таунхауса.
3. Тепломеханическая схема котельной с размещением оборудования.
4. Комплект чертежей радиаторного отопления.
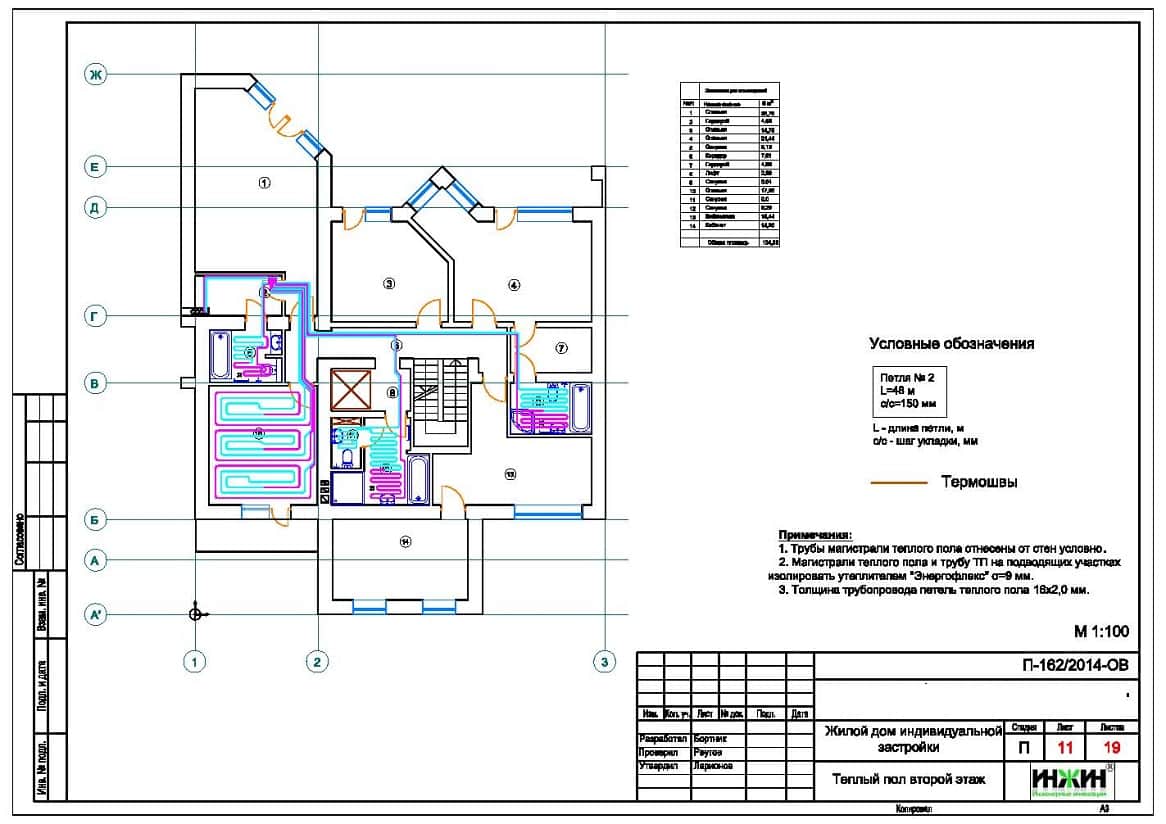
5. Комплект чертежей водяного теплого пола.
6. Комплект чертежей внутреннего водопровода и канализации.
7. Схема системы канализации (аксонометрия).
8. Спецификация материалов и оборудования.
Объем проекта: 56 листов.
Основные проектные решения, в соответствие с заданием Заказчика.
Котельная таунхауса (проект котельной бесплатно).
o На базе напольного газового котла Vaillant мощностью 41 кВ;
o Контуры котельной – отопление дома, водяной теплый пол и горячее водоснабжение (бойлер);
o Приготовление горячей воды при помощи бойлера Reflex SF300, объемом 300 литров;
o Расширительные баки отопления и водоснабжения Reflex;
o Насосы отпления, теплого пола и водоснабжени Grundfos;
o Трубы дымоходные Rosinox, из нержавеющей стали;
o Распределительная гребенка с насосно-смесительными узлами Meibes;
o Автоматика котельной – выносной блок Vaillant calorMATIC 630/3.
Автоматизация (вариант «Комфортный»).
o Автоматическое регулирование отопления по наружной температуре (погодное регулирование);
o Автоматическое поддержание заданной температуры в контурах отопления, теплого пола и горячего водоснабжения.
Отопление таунхауса (проект отопления).
o Отопление таунхауса радиаторное, использованы панельные радиаторы Kermi с нижней подводкой;
o Схема радиаторного отопления двухтрубная, коллекторно-лучевая, с принудительной циркуляцией теплоносителя;
o Температурный график отопления 80/60°С;
o Трубопроводы отопления – сшитый полиэтилен Rehau RAUTITAN flex.
Водяной теплый пол.
Водяной теплый пол в таунхаусе спроектирован на площади 238 м.кв.
Теплоснабжение теплого пола запроектировано отдельным контуром котельной. Трубопроводы теплого пола - сшитый полиэтилен Rehau RAUTHERM S.
Основание теплого пола – маты из ламинированного пенополистирола «Формат FT40/20L».
Регулирование температуры теплого пола – общее, контуром котельной..
Внутренний водопровод.
o Схема внутреннего водоснабжения – коллекторно-лучевая, с рециркуляцией горячей воды у потребителей;
o Трубопроводы системы водоснабжения – сшитый полиэтилен Rehau RAUTITAN flex;
o Коллекторы водоснабжения Valtec.
Внутренняя канализация.
o Предусмотрен безнапорный отвод стоков от санитарно-технических приборов;
o Трубопроводы канализации – полипропилен Синикон (Россия).
|
|
По этому проекту выполнен монтаж отопления, водоснабжения и канализации |
|
|




















