Выполненные проекты
Проект электрики таунхауса площадью 486 м.кв.
![]() |
![]() |
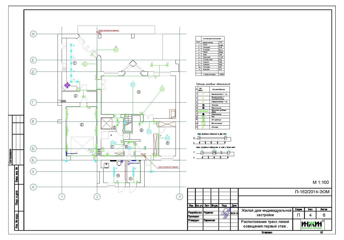
![]() |
![]() |
![]() |
![]() |
Объект: таунхаус площадью 486 кв.м. в КП "Коровино" осковской области
Стоимость проекта электрики: 53 460 руб., проект аварийного питания бесплатно.
Проект электроснабжения и освещения выполнен: 01.07.2014
Состав проекта электрики:
1. Пояснительная записка. Общие данные по электрике
2. Однолинейные схемы вводного распределительного устройства и распределительных щитов таунхауса.
3. Поэтажные планы силовых электрических сетей таунхауса.
4. Поэтажные планы групповых осветительных сетей таунхауса.
5. Схема системы уравнивания потенциалов.
6. Спецификация материалов и оборудования.
Объем проекта: 20 листов.
Основные технические решения проекта электроснабжения и освещения (электрики), в соответствии с заданием Заказчика.
Электрические щиты.
o Проектом предусмотрено ВРУ и распределительный щит, оснащенные 58-ю автоматами;
o Автоматические выключатели, дифференциальные автоматы и УЗО в щитах - Hager;
o Предусмотрены группы аварийного электропитания с 11-ю автоматами, размещенными в ЩР основного дома;
o Корпус щита - Hager.
Электрическая кабельная сеть (электропроводка).
o Проектом предусмотрено использование кабелей ВВГ нг -LS (Конкорд) с медными жилами в тройной изоляции;
o Общая протяженность линий электроснабжения и освещения – 4 850 метров;
o Прокладка силовых линий предусмотрена скрытым способом, в ПВХ-гофротрубе.
Резервное электропитание.
Проектом предусмотрено резервное электропитание (бензогенератор), к которому подключены группы дежурного освещения и розеток.
Стабилизированное электропитание.
К источнику стабилизированного питания подключено котельное оборудование, холодильник, телевизоры и сигнализация.
На вводе в здание проектом предусмотрена система уравнивания потенциалов, а также контур повторного заземления.
|
|
Для этого таунхауса разработан проект отопления, водоснабжения и канализации. |
|
|
По этому проекту выполнен монтаж отопления, водоснабжения и канализации |





















