Выполненные проекты
Проект электрики дома площадью 302 м.кв. в г.Пущино
![]() |
![]() |
![]() |
![]() |
![]() |
![]() |
Объект: частный дом площадью 302 кв.м. в г.Пущино Московской области
Стоимость проекта электрики: 33 220 руб.
Проект электрики выполнен: 23.09.2014
Состав проекта электрики:
Пояснительная записка. Общие данные по электрике.
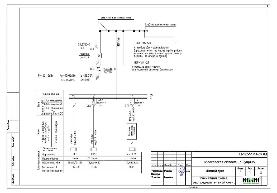
Однолинейные схемы вводного распределительного устройства и поэтажных распределительных щитов.
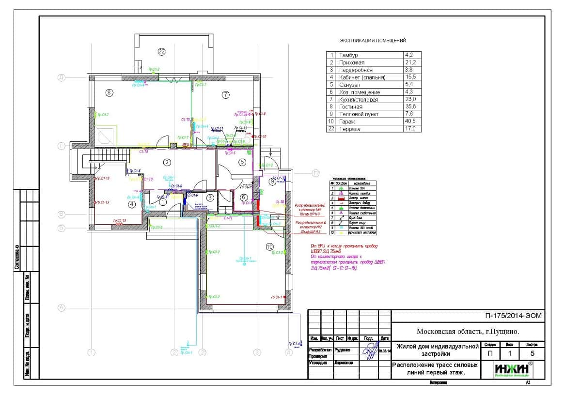
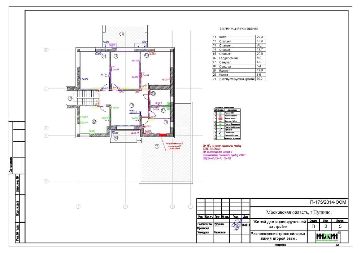
Поэтажные планы силовых электрических сетей.
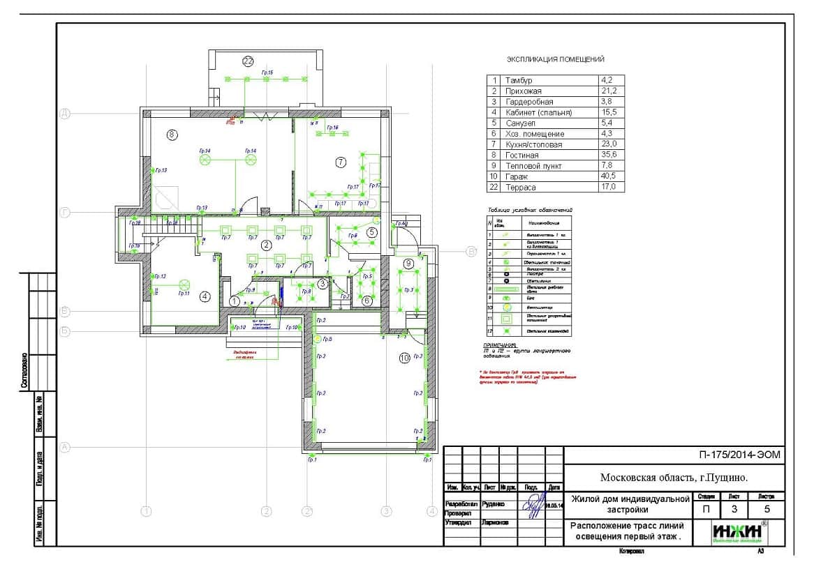
Поэтажные планы групповых осветительных сетей.
Схема системы уравнивания потенциалов.
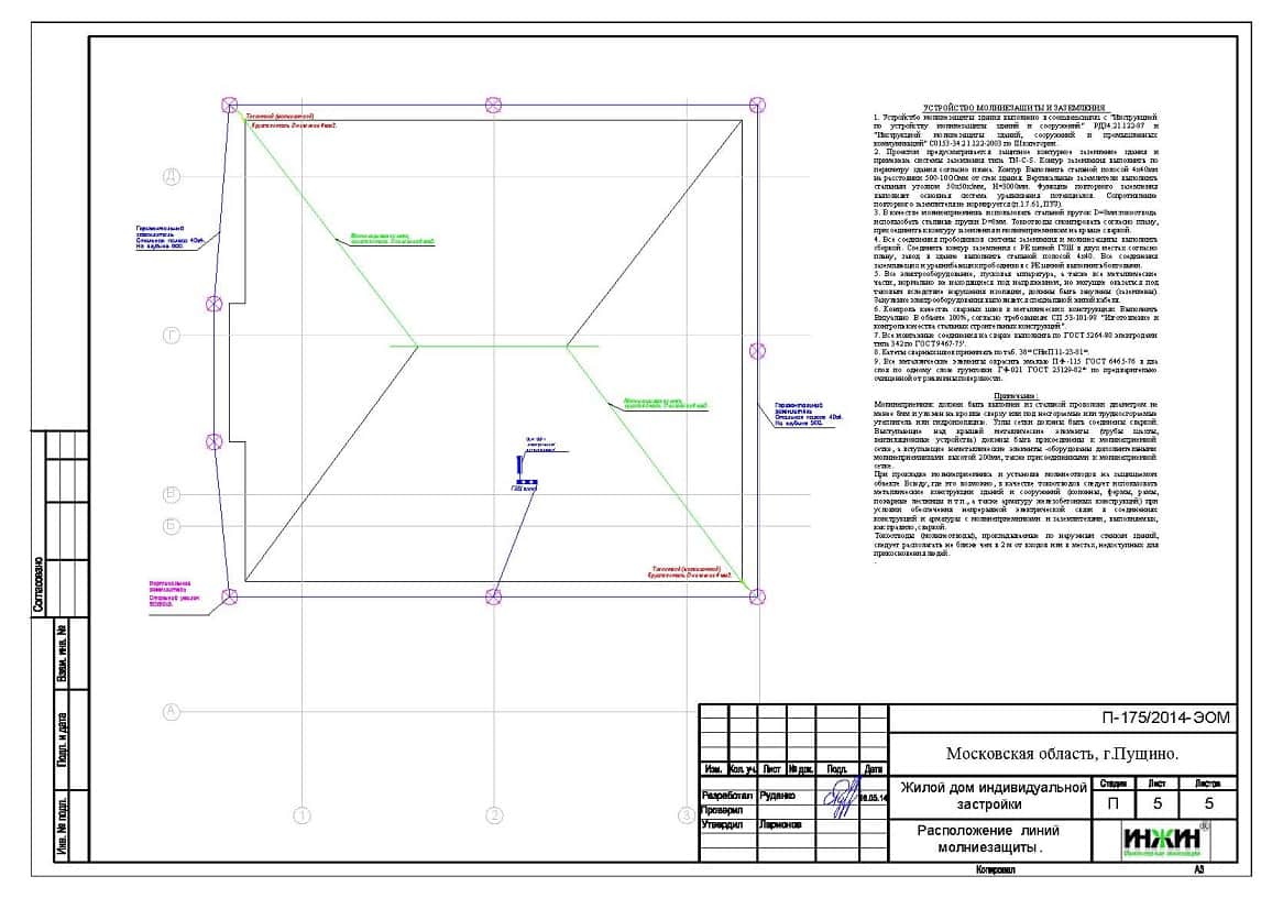
Чертеж молниезащиты.
Спецификация материалов и оборудования.
Объем проекта: 18 листов.
Основные технические решения проекта электрики, в соответствии с заданием Заказчика.
Электрические щиты.
o Проектом предусмотрено 3 щита, оснащенных 47-ю автоматами;
o Автоматические выключатели, дифференциальные автоматы и УЗО в щитах - Siemens;
o Корпуса щитов - Siemens Alpha160 8GK1 и Simbox 63.
Электрические кабельные сети (электропроводка).
o Проектом предусмотрено использование кабелей NYM (Севкабель) с медными жилами в ПВХ-оболочке;
o Телевизионный кабель SAT 703 – 400 метров;
o Общая протяженность линий электроснабжения и освещения – 3 455 метров;
o Прокладка силовых линий предусмотрена скрытым способом, в пластиковой гофротрубе.
Проектом предусмотрена система молниезащиты здания.
|
|
Для этого дома разработан проект отопления, водоснабжения и канализации |




















