Выполненные проекты
Проект отопления, водоснабжения и канализации дома площадью 580 м.кв.
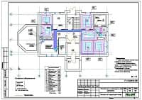
![]() |
![]() |
![]() |
![]() |
![]() |
![]() |
Объект: частный дом площадью 580 кв.м. в Московской области
Вариант отопления: «Комфортный+»
Стоимость проекта отопления: 100 760 руб. (проект котельной – бесплатно).
Проект отопления частного дома выполнен: 15.09.2014
Состав проекта отопления, водоснабжения и канализации частного дома:
Пояснительная записка. Общие данные по отоплению, котельной, водопроводу и кнализации.
Теплотехнический расчет отопления дома.
Тепломеханическая схема котельной с размещением оборудования.
Комплект чертежей радиаторного отопления дома.
Комплект чертежей теплого пола.
Комплект чертежей теплоснабжения полотенцесушителей.
Комплект чертежей внутреннего водопровода и канализации.
Схемы типовых узлов.
Спецификация оборудования.
Объем проекта отопления, водоснабжения и канализации дома: 67 листов.
Основные решения проекта отопления, водоснабжения и канализации, в соответствии с заданием Заказчика.
Котельная частного дома (проект котельной бесплатно).
o Применена двухкотельная установка Buderus GE234 WS, общей мощностью 88 кВт;
o Контуры теплоснабжения – 6 шт.: радиаторного отопления цокольного, первого, второго и третьего этажей, теплого пола, полотенцесушителей, теплоснабжения хаммама, подогрева бойлера (ГВС) и теплоснабжения бани (перспектива);
o Приготовление горячей воды при помощи бойлеров Buderus Logalux, объемом 300 литров;
o Расширительные баки отопления и водоснабжения Reflex;
o Мембранный бак скважинного насоса Reflex DE – 100 литров;
o Мембранная накопительная емкость Reflex DE – 300 литров;
o Насосы отопления, теплого пола и водоснабжения Grundfos;
o Трубы дымоходные из нержавеющей стали Rosinox;
o Распределительные гребенки с насосно-смесительными узлами Meibes, «Поколение 8»;
o Автоматика котельной – Buderus Logamatic 4000-й серии.
Автоматизация (вариант «Комфортный+»).
o Автоматическое регулирование отопления по наружной температуре (погодное регулирование);
o Автоматическое поддержание заданной температуры контуров отопления, теплых полов и горячего водоснабжения;
o Раздельное регулирование температуры по помещениям дома. Покомнатное регулирование температуры отопления запроектировано при помощи пультов управления, размещаемых в помещениях и исполнительных элементов (сервоприводов), устанавливаемых на соответствующих отводах коллекторных шкафов;
o Автоматическое покомнатное регулирование температуры поверхности теплого пола.
Система отопления частного дома.
o Приборы отопления - стальные панельные конвекторы Kermi FKV с подключением снизу из пола, напольные конвекторы Kermi KKV;
o Схема радиаторного отопления двухтрубная, коллекторно-лучевая с принудительной циркуляцией теплоносителя;
o Температурный график отопления 80/60° С;
o Магистральные и подводящие трубопроводы отопления дома – сшитый полиэтилен Rehau.
Водяной теплый пол.
o Трубопроводы теплого пола - сшитый полиэтилен Rehau RAUTHERM S;
o Проектом предусмотрено раздельное регулирование температуры теплого пола по помещениям дома;
o Напольный утеплитель – ячеистый пенополистирол «Формат».
Водяные полотенцесушители.
o Полотенцесушители в санузлах дома подключены к отдельному контуру котельной;
o Предусмотрена возможность индивидуальной ручной регулировки температуры каждого отдельного полотенцесушителя, вплоть до возможности его отключения.
Внутренний водопровод.
o Схема внутреннего водоснабжения – тройниковая тупиковая;
o Трубопроводы системы водоснабжения – сшитый полиэтилен Rehau;
o В системе горячего водоснабжения предусмотрена рециркуляция горячей воды;
Для летнего водопровода использован наружный кран SEPP-Eis (Meibes) с защитой от замерзания;
o Предусмотрено поэтажное перекрытие горячей и холодной воды.
Внутренняя канализация.
o Предусмотрен безнапорный отвод стоков от санитарно-технических приборов 1-го 3-го этажей дома;
o Проектом предусмотрен отвод стоков цокольного этажа дома напорным способом при помощи локальных канализационных напорных станций Grundfos (3 шт.);
o Трубопроводы канализации Синикон - раструбные, из полипропилена.



















