Выполненные проекты
Проект электрики дома площадью 330 м.кв. в Московской области
![]() |
![]() |
![]() |
![]() |
![]() |
![]() |
Объект: загородный дом площадью 330 м.кв. Московской области
Стоимость проекта электрики: 36 300 руб.
Проект электрики загородного дома выполнен: 22.10.2014
Состав проекта электрики загородного дома:
Пояснительная записка. Общие данные по электрике загородного дома.
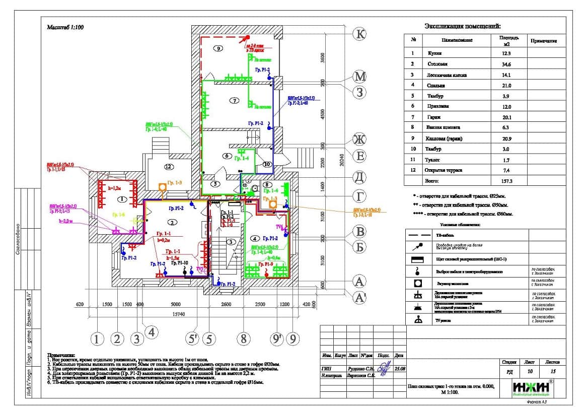
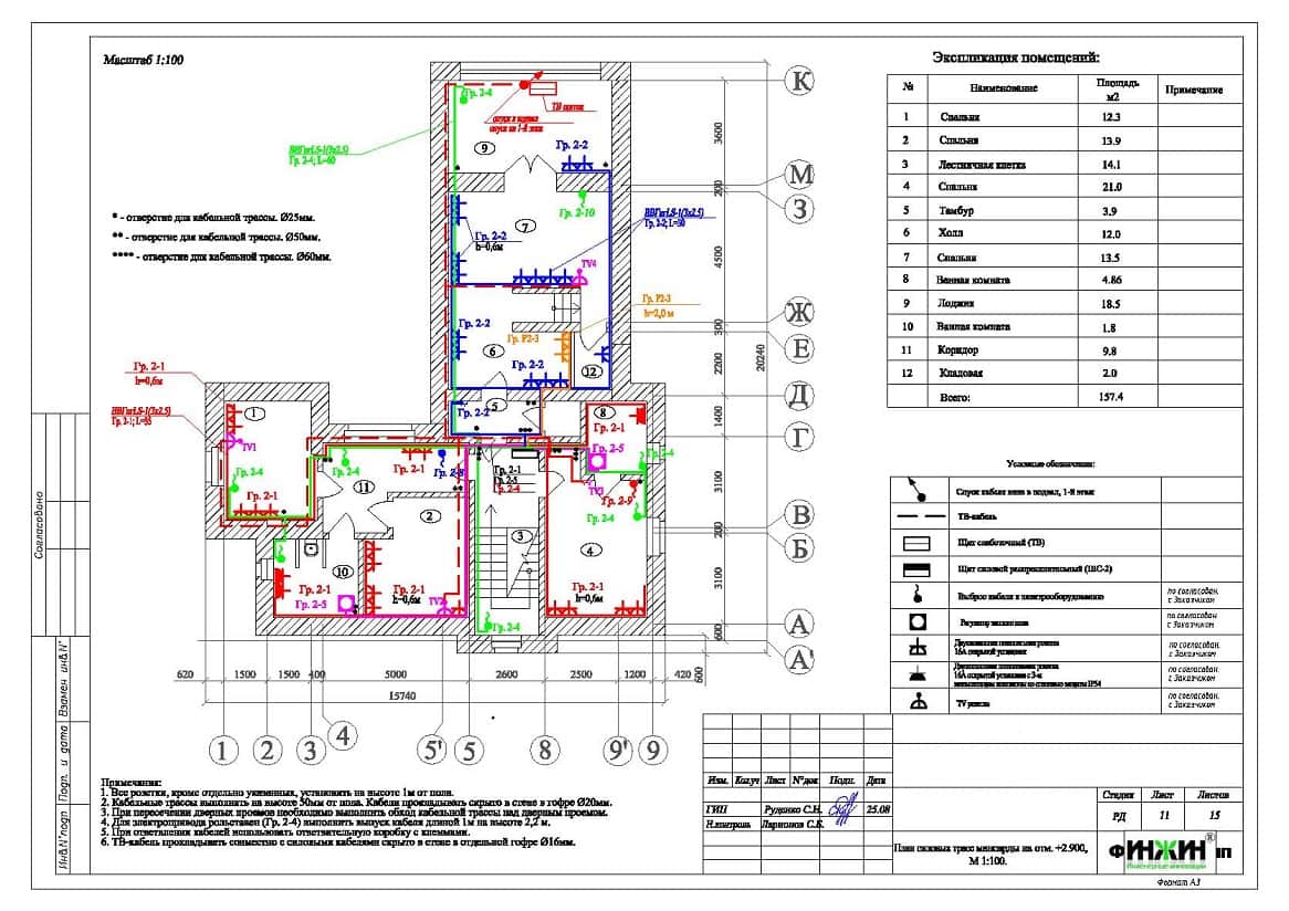
Однолинейные схемы вводного распределительного устройства и поэтажных распределительных щитов.
Поэтажные планы силовых электрических сетей.
Поэтажные планы групповых осветительных сетей.
Схема системы уравнивания потенциалов.
Спецификация материалов и оборудования по электрике загородного дома.
Объем проекта: 31 лист.
Основные технические решения проекта электроснабжения и освещения (электрики) загородного дма, в соответствии с заданием Заказчика.
Электрические распределительные щиты.
o Проектом предусмотрено 4 щита, оснащенных 57-ю автоматами;
o Щит управления, оснащенный 7-ю автоматами;
o Автоматические выключатели, дифференциальные автоматы и УЗО в щитах - ABB;
o Корпуса щитов - ABB.
Электропроводка - электрическая кабельная сеть.
o Проектом предусмотрено использование кабелей ВВГ нг -LS (Конкорд) с медными жилами в ПВХ-оболочке;
o Общая протяженность линий электроснабжения и освещения – 2 935 метров;
o Прокладка силовых линий предусмотрена скрытым способом, в пластиковой гофротрубе.
Заземление.
Для защиты людей от поражения электрическим током при повреждении изоляции проектом предусмотрена реализация контура заземления.
|
|
По этому проекту выполнен монтаж системы электроснабжения и освещения |


















