Выполненные проекты
Проект электрики дома площадью 400 м.кв. в КП "Бунин Парк"
![]() |
![]() |
![]() |
![]() |
![]() |
Объект: частный дом площадью 400 кв.м. с бассейном, в КП "Бунин Парк", г.Москва (Новая Москва)
Стоимость проекта электрики: 44 000 руб.
Проект электрики выполнен: 27.03.2015
Состав проекта электрики:
Пояснительная записка. Общие данные по электрике дома с бассейном.
Однолинейные схемы вводного распределительного устройства распределительного щита.
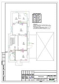
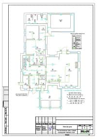
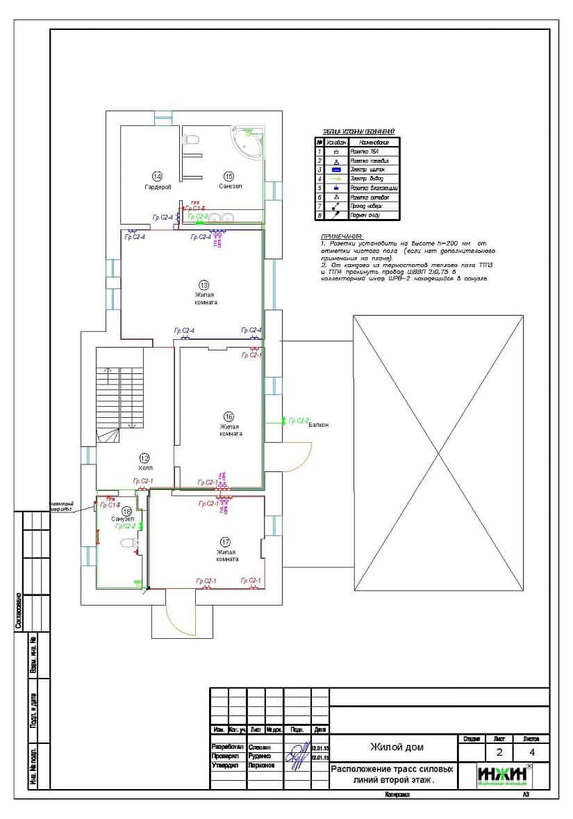
Поэтажные планы силовых электрических сетей.
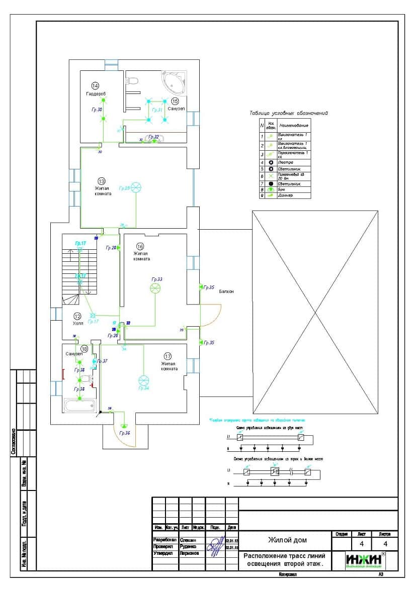
Поэтажные планы групповых осветительных сетей.
Схема системы заземления.
Спецификация материалов и оборудования.
Объем проекта: 14 листов.
Основные технические решения проекта электрики, в соответствии с заданием Заказчика.
Щиты электрические.
o Проектом предусмотрен щит, оснащенный 48-ю автоматами;
o Автоматические выключатели, дифференциальные автоматы и УЗО в щитах - Hager;
o Корпус щита - Hager.
Силовая и слаботочная кабельная сеть (электропроводка).
o Проектом предусмотрено использование кабелей ВВГ нг -LS (Конкорд) с медными жилами в ПВХ-оболочке;
o Телевизионный кабель Cavel SAT 703 – 300 метров;
o Общая протяженность линий электроснабжения и освещения – 4 970 метров;
o Прокладка силовых линий предусмотрена скрытым способом, в пластиковой гофротрубе и металлорукаве (в виниловой изоляции).
o Предусмотрено 146 точек подключения розеток и выключателей.
Проектом предусмотрен комплект заземления Ezetek EZ 25,2.
Для этого дома разработан проект отопления, водоснабжения и канализацииводоснабжения и канализации.
![]() |



















