Выполненные проекты
Проект электрики таунхауса площадью 197 м.кв.
Объект: таунхаус площадью 197 м.кв. в КП "Павлово" Истринского района Московской области
Стоимость проекта: 21 670 руб.
Проект электрики выполнен: 21.05.2015г.
Состав проекта электрики:
1. Пояснительная записка. Общие данные по электроснабжению таунхауса в КП "Павлово".
2. Расчет однолинейных схем вводного распределительного устройства и поэтажных распределительных щитов.
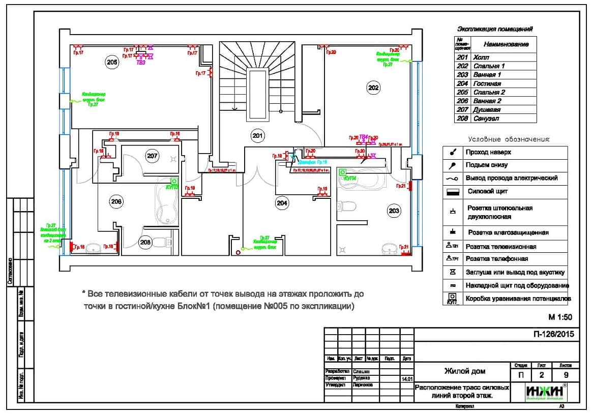
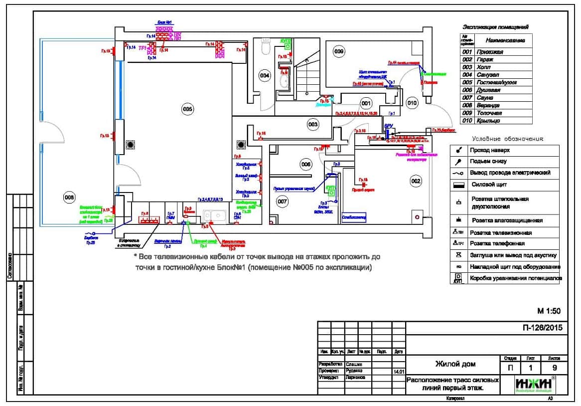
3. Поэтажные планы силовых электрических сетей.
4. Планы групповых осветительных сетей 1 и 2 этажей.
5. Схема системы уравнивания потенциалов.
6. Спецификация материалов и оборудования.
Объем проекта: 22 листа.
Основные технические решения проекта электроснабжения и освещения (электрики), в соответствии с заданием Заказчика.
Распределительные электрические щиты.
o Проектом предусмотрено два щита, оснащенных 54-мя автоматами;
o Автоматические выключатели, дифференциальные автоматы и УЗО в щитах - Hager;
o В щите установлен ограничитель перенапряжений Hager OVR SPN800;
o Корпуса щитов - Hager.
Электрическая и слаботочная кабельная сеть (электропроводка).
o Проектом предусмотрено использование кабелей ВВГ нг -LS (Конкорд) с медными жилами в ПВХ-оболочке;
o Общая протяженность линий электроснабжения и освещения – 2 460 метров;
o Прокладка силовых линий предусмотрена скрытым способом, в пластиковой гофротрубе;
o Для системы телевидения предусмотрены кабельные трассы с использованием кабеля Cavel SAT 703, в количестве 560 метров;
o Предусмотрена локальная сеть с использованием провода NEXANS U TP 4х2х0.51 cat 5e – 610 метров.
|
|
Для этого дома разработан проект отопления, водоснабжения и канализации |




















