Выполненные проекты
Проект отопления, водоснабжения и канализации таунхауса площадью 197 м.кв.
![]() |
![]() |
![]() |
![]() |
![]() |
![]() |
Объект: таунхаус площадью 197 кв.м. в КП "Павлово" Истринского района Московской области
Вариант отопления: «Комфортный»
Стоимость проекта: 32 750 руб. (проект котельной – бесплатно)
Проект отопления выполнен: 21.05.2015
Состав проекта отопления, водоснабжения и канализации таунхауса:
1. Пояснительная записка. Общие данные
2. Теплотехнический расчет отопления таунхауса.
3. Тепломеханическая схема котельной с размещением оборудования.
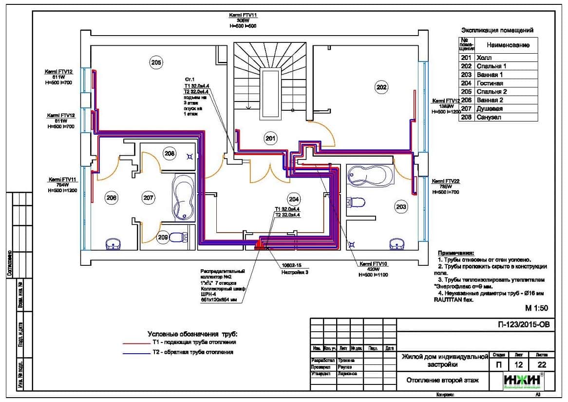
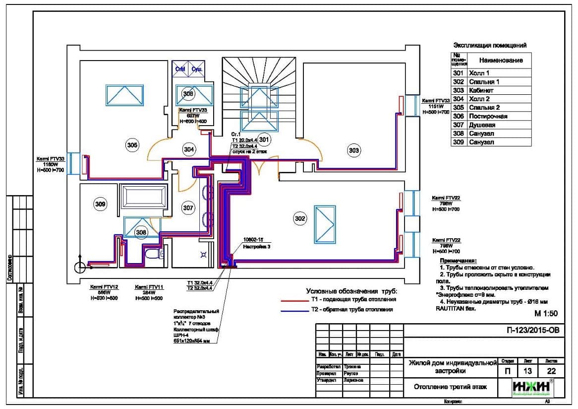
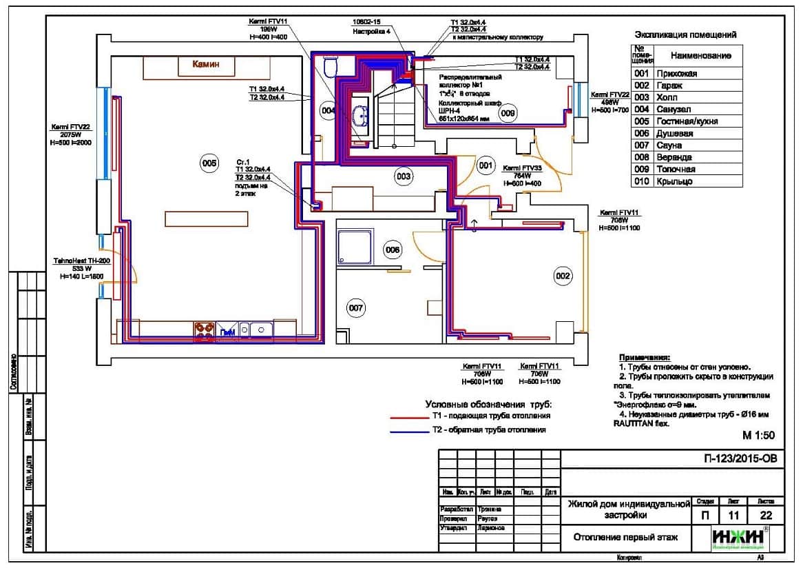
4. Комплект чертежей радиаторного отопления.
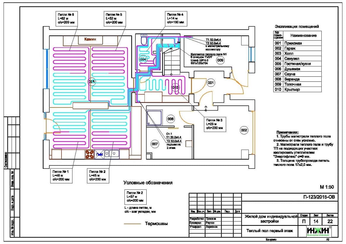
5. Комплект чертежей водяного теплого пола.
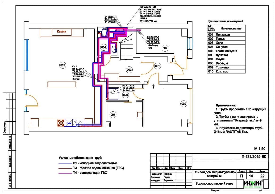
6. Комплект чертежей внутреннего водопровода и канализации.
7. Схема системы канализации (аксонометрия).
8. Спецификация материалов и оборудования.
Объем проекта: 48 листов.
Основные проектные решения, в соответствие с заданием Заказчика.
Котельная таунхауса (проект котельной бесплатно).
o На базе напольного газового котла Buderus Logano G124WS мощностью 32 кВт (в наличии);
o Контуры котельной – отопление дома, водяной теплый пол и горячее водоснабжение (бойлер);
o Приготовление горячей воды при помощи бойлера Buderus Logalux SU200, объемом 200 литров (в наличии);
o Расширительные баки отопления и водоснабжения Reflex;
o Насосное оборудование Grundfos;
o Трубы дымоходные из нержавеющей стали (в наличии);
o Распределительная гребенка с насосно-смесительными узлами Meibes;
o Автоматика котельной – Buderus Logamatic 4211.
Автоматизация (вариант «Комфортный»)
o Автоматическое регулирование отопления по наружной температуре (погодное регулирование);
o Автоматическое регулирование отопления по температуре в доме (выносной пульт);
o Автоматическое поддержание заданной температуры в контурах отопления, теплого пола и горячего водоснабжения.
Система отопления таунхауса.
o Выполнен теплотехнический расчет отопления с подборов отопительных приборов;
o Отопление дома радиаторное, использованы стальные панельные радиаторы Kermi с нижним подключением и встроенный в пол конвектор Технохит с естественной конвекцией;
o Схема радиаторного отопления двухтрубная, коллекторно-лучевая, с принудительной циркуляцией теплоносителя;
o Температурный график отопления 80/60°С;
o Трубопроводы отопления – сшитый полиэтилен Rehau.
Водяной теплый пол.
o Водяной теплый пол в таунхаусе предусмотрен на площади 84 м.кв., 7 петель;
o Предусмотрен отдельный контур теплоснабжения водяного теплого пола;
o Трубопроводы теплого пола - сшитый полиэтилен Rehau RAUTHERM S;
o Основание теплого пола – маты из ламинированного пенополистирола «Формат» FL40/20;
o Регулирование температуры теплого пола – общее, контуром индивидуальной котельной.
Внутренний водопровод.
o Схема внутреннего водоснабжения – коллекторная, с рециркуляцией горячей воды;
o Трубопроводы системы водоснабжения – сшитый полиэтилен Rehau;
o Коллекторы водоснабжения Valtec.
Внутренняя канализация.
o Предусмотрен безнапорный отвод стоков от санитарно-технических приборов;
o Трубопроводы канализации – раструбные трубы из полипропилена Синикон.
|
|



















