Выполненные проекты
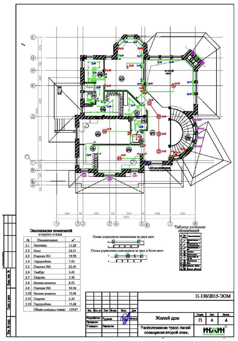
Проект электрики дома площадью 444 м.кв. в Московской области
![]() |
![]() |
![]() |
![]() |
![]() |
![]() |
Объект: жилой дом индивидуальной застройки площадью 444 кв.м. в КП "Покровское" Истринского района Московской области
Стоимость проекта электрики: 48 840 руб., аварийное питание бесплатно
Проект выполнен: 05.08.2015г.
Состав проекта электрики:
1. Пояснительная записка. Общие данные
2. Однолинейные схемы вводного распределительного устройства и распределительного щита.
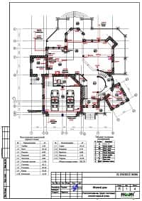
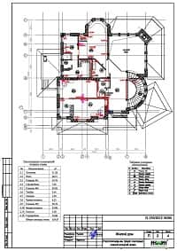
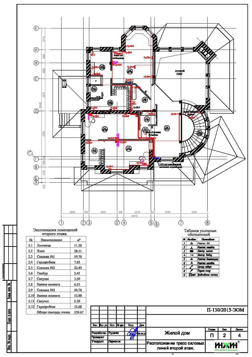
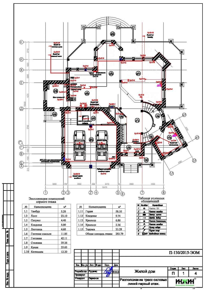
3. Поэтажные планы силовых электрических сетей.
4. Поэтажные планы групповых осветительных сетей.
5. Спецификация материалов и оборудования.
Объем проекта: 16 листов.
Основные технические решения проекта электроснабжения и освещения, в соответствии с заданием Заказчика.
Распределительные электрические щиты.
o Проектом предусмотрены 3 распределительных щита, оснащенный 53-мя автоматами;
o Автоматические выключатели, дифференциальные автоматы и УЗО в щите - Hager;
o Счетчик электрической энергии «Меркурий»;
o Сумеречный выключатель Schneider Electric;
o Корпуса щитов - Hager.
Силовая и слаботочная кабельная сеть (электропроводка).
o Проектом предусмотрено использование кабелей ВВГ нг -LS (Конкорд) с медными жилами в ПВХ-оболочке;
o Телевизионный кабель Cavel SAT 703 – 350 метров;
o Кабель для локальной вычислительной сети - UTP 4х2 cat 5e, NEXANS, 610 метров;
o Общая протяженность линий электроснабжения и освещения – 4 440 метров;
o Прокладка силовых линий предусмотрена скрытым способом, в пластиковой гофротрубе и металлорукаве (в виниловой изоляции).
o Предусмотрено 172 точки подключения розеток и выключателей.
К источнику резервного питания предусмотрено подключение освещение на лестнице и в холлах, котельного оборудования, холодильника, домофона и сигнализации.



















