Выполненные проекты
Проект котельной и отопления дома площадью 306 м.кв.
![]() |
![]() |
![]() |
Объект: жилой дом индивидуальной застройки площадью 306 кв.м., в г. Балашихе Московской области
Вариант отопления: «Комфортный»
Стоимость проекта: 27 830 руб. (проект котельной – бесплатно)
Проект выполнен: 30.07.2015г.
Состав проекта отопления, водоснабжения и канализации частного дома:
1. Пояснительная записка. Общие данные
2. Теплотехнический расчет (расчет отопления).
3. Тепломеханическая схема котельной с размещением оборудования.
4. Комплект чертежей радиаторного отопления жилого дома.
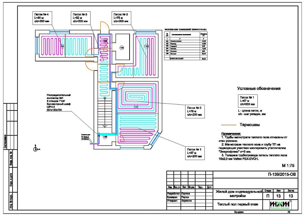
5. Комплект чертежей напольного отопления (теплого пола) жилого дома.
6. Спецификация материалов и оборудования.
Объем проекта: 30 листов.
Основные проектные решения, в соответствии с заданием Заказчика.
Котельная частного дома (проект бесплатно).
o На базе настенного газового котла Vaillant turboTEC plus мощностью 32 кВт;
o Контуры котельной: отопление дома, горячее водоснабжение и водяной теплый пол;
o Расширительный бак отопления Reflex объемом 35 литров;
o Насосное оборудование Grundfos;
o Трубы дымоходные коаксиальные, Vaillant;
o Распределительная гребенка с насосно-смесительными узлами Meibes, Поколение 8;
o Автоматика котельной – основной блок Vaillant calorMATIC 630/3, задатчик-регулятор температуры в помещении Vaillant VR90/3.
Автоматизация (вариант «Комфортный»).
o Автоматическое регулирование отопления по наружной температуре (погодное регулирование);
o Автоматическое регулирование работы котла в зависимости от температуры в доме;
o Автоматическое поддержание заданной температуры в контурах отопления, теплого пола и горячего водоснабжения.
Система отопления.
o Отопление дома радиаторное, использованы стальные панельные радиаторы Kermi с нижним подключением (22 шт.);
o Схема радиаторного отопления коллекторно-лучевая с принудительной циркуляцией теплоносителя;
o Температурный график отопления 80/60° С;
o Трубопроводы отопления металлопластик Valtec.
Проект водяного теплого пола.
o Теплые полы проектом предусмотрены на площади 90 м.кв.;
o Трубопроводы теплого пола - сшитый полиэтилен Valtec;
o Управление теплым полом – общее, контуром котельной.
Заказать проект котельной и отопления частного дома в нашей компании со скидкой.
![]() |

















